她坚持在卫生间做鞋柜,客厅不要电视墙,入户后发现很实用
甜茶的极简生活
2021-11-28
老房潜力有多大,看完她家我直呼羡慕!
有钱的话,谁都想买新房,但奈何预算有限,本期女主一家也只能转向二手房。房龄超二十年、装修老旧,在看房时女主差点被劝退,但好在房子的地段不错,公摊又小,于是还是咬牙买下了它。

▲装修实拍图
//户型分析//
95㎡的房子,面积并不算小,但原始装修比较差,面临着动线凌乱、无收纳功能、照明昏暗等问题。想要提升居住的舒适度,就需要重新布局改造。此外,老房子承重墙较多,不能做太大改动,这无疑增加了装修难度。

▲改造前实拍图
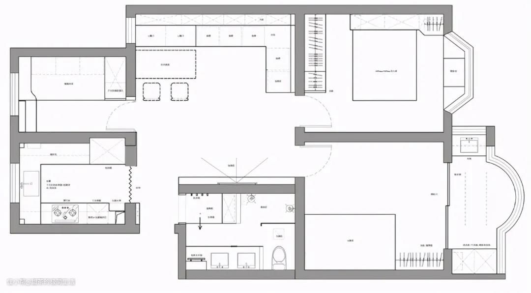
从户型上看,整屋格局还不错,拥有南北两侧采光。缺陷也比较明显:①入户空间狭窄,很难设置玄关;②与厨房相邻的次卧面积非常小;③客餐厅趋近正方形,不易摆放成品家具,空间浪费比较大。

▲改造前平面图
//设计亮点//
①入户左侧定制超薄鞋柜,并借用部分卫生间的面积做收纳柜,以提升玄关区域的收纳能力;
②客餐厅做一体式设计,沿着其中一侧墙面规划“卡座+储物柜”,增加功能性;
③两间次卧分别定制高低床和榻榻米,以提升空间利用率。

▲装修平面图
玄关
入户的面积有限,根本放不下成品鞋柜。于是,设计师沿着墙面定制了一个超薄鞋柜,深度只有17cm,采用了侧翻式柜门,大人的鞋子需要与柜门保持一定的倾斜角度后,方可放进鞋柜内。

▲玄关实拍图
鞋柜的底部悬空,第二层做开放式柜格,这两部分空间用来放孩子常穿的鞋子,有效提高鞋柜的空间利用率。考虑到玄关区域属于落尘区,设计师特意在地面铺了六边形地砖,并与客餐厅的木地板自然衔接,方便屋主日常清理卫生。

▲玄关实拍图
卫生间
玄关的右侧是卫生间,它面积还挺充裕的,原本设计师想缩小卫生间、扩大玄关,但是实地考察后发现卫生间的周围都是承重墙,不能改动格局。在女主的建议下,设计师在卫生间内增加了一面顶天立地的收纳柜,以分担玄关区域的储物压力。

▲客厅实拍图
这个储物柜正对着卫生间的入口,可以起到遮挡视线的作用,直接把卫生间的室内门都省去了。设计师根据女主一家人的需求,把柜子划分成了几个大小不一的柜格,轻松收纳鞋子、清洁工具和生活杂物。柜子侧面的墙壁上,安装了一字型挂钩,可随手悬挂包包、雨伞和钥匙。

▲客厅实拍图
由于家里只有一个卫生间,为了缓解早高峰期的使用压力,设计师特意做了双洗手台,右侧还预留出一部分台面空间,方便女主摆放化妆品和护肤品。

▲客厅实拍图
卫生间做了三分离式设计,洗手台、马桶间和淋浴间各自独立,使用时互不打扰。马桶间和淋浴间的入口处,都安装了长虹玻璃门,以确保私密性。

▲客厅实拍图
淋浴间和马桶间的配色相同,均以灰色系为主,也都做了壁龛设计,简洁干练且实用性强。

▲客厅实拍图
客餐厅
前文我们有提到过,客餐厅的进深窄,且中间有走道区域,空间浪费比较大。为了提升空间利用率,设计师沿着客餐厅其中一面墙,做了“卡座+收纳柜”的组合,也丰富了客餐厅的功能性。

▲客餐厅实拍图
卡座是L型布局,占据了两面墙,既替代了沙发,也能当餐椅使用;卡座下方以抽屉的形式做收纳,方便存放小朋友的玩具,以保证空间的整洁性。储物柜“有藏有露”,搭配洞洞板和收纳盒,轻松搞定书籍、玩具和杂物的收纳!

▲客餐厅实拍图
卡座的尽头处,特意留出一部分空间,用作狗狗的“卧室”。

▲客餐厅实拍图
电视墙不做任何造型,直接刷白漆,简洁耐看。设计师用原木隔板代替电视柜,并在底部安装隐藏式灯带,为简约的空间增加了一份层次感。

▲客餐厅实拍图
厨房
改造后的厨房,视觉感整洁明亮,储物空间也很充足。内部是U型布局,并按照“洗切炒”动线,规划了收纳区,日常使用更加方便。值得一提的是,厨房台面采用高低台设计,烹饪区高度在80cm,其它区域则为85cm,更符合人体工学结构。

▲厨房实拍图
冰箱和洗碗机都规划在了厨房的入口处,整体感更强,不浪费一寸空间。

▲厨房实拍图
主卧
主卧是屋主二人的休憩空间,以舒适性为主。配色围绕着白色和原木色进行展开,搭配无主灯设计,给人一种惬意的放松感。侧面的衣柜空间有限,满足不了女主的储物需求,于是设计师便在床头增加了一组吊柜,强化了卧室的收纳能力。

▲主卧实拍图
设计师拆除了主卧飘窗,根据墙面形状,定制了一个工作台,同时兼顾了梳妆台的功能。这个区域享受三面采光,平时女主在这里工作累了,也能望向窗外缓解疲惫。

▲主卧实拍图
儿童房
考虑到孩子年纪较小,设计师特意在儿童房内定制了高低床,工作日的时候爷爷奶奶会过来带孩子,睡在儿童房也比较方便。后期,儿童房的内部格局会根据需求进行调整,所以室内家具也没有摆得太满。

▲儿童房实拍图
高低床靠墙做了楼梯,上铺还增加了扶手的设计,以保证安全性。

▲儿童房实拍图
床尾处是儿童房的衣柜,不同于主卧的样式,设计师在底部增加了两个抽屉,方便小朋友自己存取衣物,有利于屋主从小培养孩子的收纳意识。

▲儿童房实拍图
多功能房
面积最小的一间卧室,被设计师规划成了多功能房,兼顾书房、客房和储物间的功能。房间面积有限,做榻榻米结构最为合适,也大大提升了空间利用率。

▲多功能房实拍图
床头做了一组嵌入式衣柜,上方是通顶的吊柜,一寸空间也不浪费!

▲多功能房实拍图
阳台
阳台有一个弧面造型,虽然好看,但非常考验贴砖师傅的技术,就连玻璃也只能定做的。原来阳台的主色调是红色,略显土气,现在改用白色瓷砖做装饰,阳台瞬间变得简约敞亮。

▲阳台实拍图
阳台的两侧分别规划了洗衣机、烘干机和洗手台,顶部是升降式晾衣架,洗衣、晾衣、烘干一步到位!

【本期总结】
回顾本案,整屋设计简约实用,功能性很强,尤其是客餐厅和卫生间的设计,非常适合小户型借鉴!如果你也喜欢本期内容,欢迎点赞收藏!