精装改造 | 绿地光谷中心城 180㎡
武汉咫尺设计
2021-11-28
ZHI CHI & DESIGN
你要的家、尽在咫尺设计!

——
设计师是一个替别人做梦的职业。
Designer is a profession that dreams for others。
项目信息
项目地址 | 绿地光谷中心城
项目面积 | 180㎡
项目设计 | 武汉咫尺设计


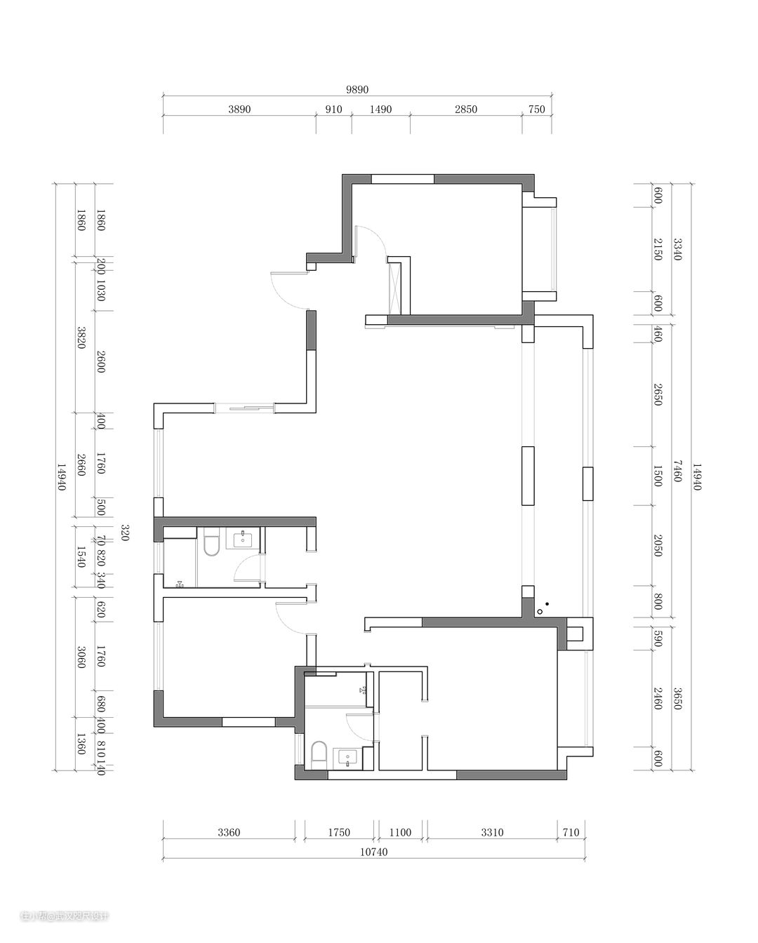
户型优化
1、考虑到居住者进出的收纳与便捷,增加入门处的柜深、给生活带来更多便利与舒适;父母房的床尾整排衣柜给与充足收纳空间。
2、客厅一分为二,隔出主人需要的书房,满足在家办公的需求、给小朋友提供充足的活动空间;
同时以沙发处为中轴线,依附原有墙体设计大理石造型搁板,内藏温馨灯带、营造精致又充满暖意的家居氛围。
3、阳台同样用柜体一分为二,一边作为客厅处的休闲阳台、一边作为书房处的生活阳台,通过通透的落地窗,可以大面积打通室外的视野、光线。
4、餐厅一旁设置岛台,较适用于家居环境、让空间利用更加灵活。
5、主卧室的卫生间全部打通,在保证卫生间尺寸舒适的情况下,解放床头、将收纳衣柜都安置在床尾,并于进门处设计包类展示柜、用于放置主人的衣物等。
6、儿童房沿窗设计了地台、让采光效果更加好,床尾衣柜+床头书桌的设计,满足小朋友休息、收纳、学习的需求,还有充足的活动空间。



▶将朴质素雅的氛围作为室内的主格调,通过完美的比例与现代化的设计,展现一个安静、永恒的艺术之家;
以纯粹的材质、利落的线条、温柔的基调,赋予现代雅致的居家格调!


▶白、是空间设计的最简形态,给人以素雅与质朴的自然感,墙面的暖木色便是诉说着生活本有的温情与安心;
温柔细腻的空间质感,在每个人的心中都会产生不同的记忆与情感的共鸣。


▶书房紧邻客厅、与客厅并无墙面的阻挡,仅以沙发作为两者的关系界定;
通过落地窗引光入室、与光的穿透形成空间的互动,取消多余的修饰,营造出知性简约的场域氛围。


▶作为客厅主体延伸的西厨与餐厅,也继承了空间设计的开放,艺术格调的黑白灰铺展开来,在简约的空间中相得益彰,为居住者提供充满仪式感的用餐氛围。