厨房和生活阳台连在一起的户型应该怎么设计
重庆俏业家装饰
2021-12-01
厨房连着生活阳台的户型结构在两居室或小三居室里面十分常见,但是很多开发商的原始规划十分鸡肋,无论是通风采光还是空间规划都不方便,所以许多朋友在装修时会考虑把厨房和阳台连通,以此来改善使用体验。

作为居家空间的重要功能区,三餐烹饪需要便捷好用的大厨房,洗衣晾晒的生活阳台也不可或缺,如何从纠结中解脱出来?今天小编选取了几个比较具有代表性的案例,给有相同“烦恼”的你提供一些设计思路。
方法1:“兼容合并”打造开阔厨房
适合人群:喜欢大厨房的朋友
对于梦寐以求宽敞厨房的朋友来说,可以考虑将生活阳台直接并入厨房空间。
例如这套案例,原户型厨房狭小,只能做一字型操作台,行动范围有限(两个人错身都拥挤),设计师为热爱烹饪的小俩口打造了一个开放式厨房:超长操作台搭配中岛,打造出梦想中的厨房。原本的餐厅空间和生活阳台一起并入厨房,把新餐厅挪到更合适的位置,无论是厨房的使用感还是整个家里的区域划分都更加合理。

如果经常炒菜,不想要封闭式厨房也是OK——在这套案例中,业主家的烹饪习惯比较传统,所以选择直接将厨房扩展出去整体“内推”,并设置一扇门阻挡油烟。这样改动之后不仅改善了原始厨房采光差、通风差的问题,还解决了冰箱电器的摆放问题。


方法2:“端水大师”平衡空间功能
适合人群:以厨房功能为主,但仍想保留部分生活阳台功能
在有些户型结构里面,厨房除了和生活阳台相连,可能还背靠着卫生间。像这种情况,就需要进行统筹考虑了。
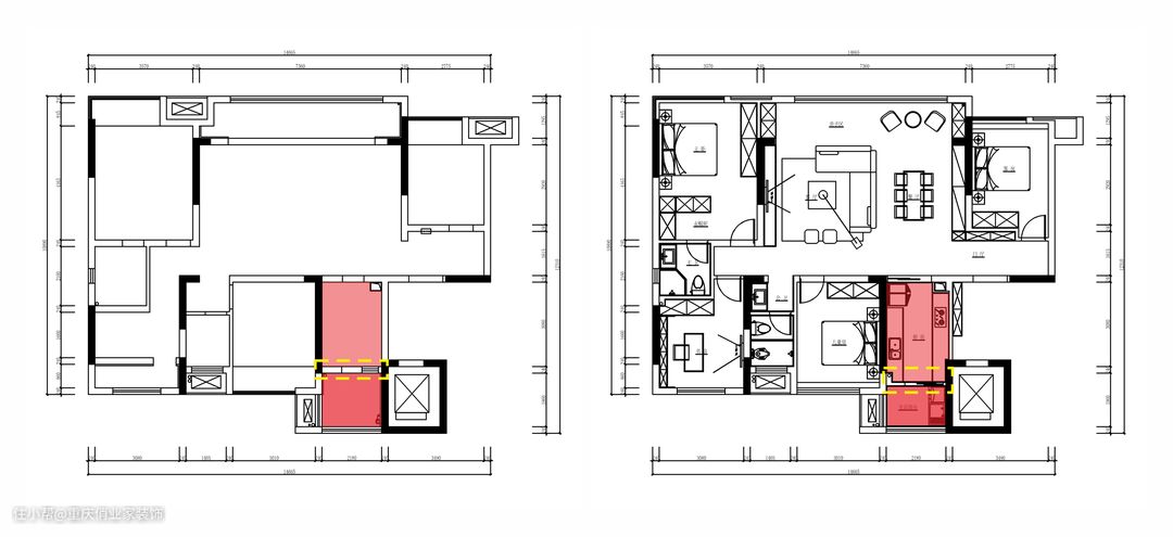
在这两套案例中,设计师采取了相似的思路:在优先保证厨房功能的同时,也不影响相邻功能区的使用,在厨房的端头保留一个洗衣槽,满足生活必要。


方法3:“两者兼顾”保留独立区间
适合人群:想要保留生活阳台的朋友
以上两种改法的出发点是优先提升厨房的使用,但是对于想要保留独立生活阳台的朋友而言,更好的改动是两者都得到兼顾。
在这套案例中,业主明确提出需要独立的晾晒区,所以设计师采取的方式是面积重新分配,在保留两个功能区域的前提下既增加了厨房的使用空间,也保留了生活阳台,契合业主的需要。

总的来说,空间改动的前提和基础是你和家人的生活习惯与居住需求,改动的终极目的是提高生活的品质,今天分享的案例有你喜欢的吗?欢迎与我们交流!