占地23 x 28m三层苏式合院,有水有景的生活,一切显得宁静与和谐
江苏玛利雅建筑设计
2021-12-09
时至今日,自建房四合院成为了一种新潮流,高大上。在自家宅基地上,建上这么一栋白墙黛瓦、庭院曲径幽深的四合院,简直是让人陶醉不已。
【设计单位】:苏州岚林阁设计
【项 目 地】:四川
【楼 层】:3层
【建筑风格】:苏式建筑
【建筑占地】:23m x 28m
【结构形式】:框架结构
【设 计 师】:张工、陶工、章工、李工、翁工、黄工
【建筑布局】:正房一层:客厅、过厅、中堂、茶室、棋牌、楼梯、公卫、洗衣房。
正房二层:套房1(卧室+私卫+衣帽间)、次卧(卧室+私卫+衣帽间)、休闲区、儿童房、公卫、 楼梯、阳台。
正房三层:套房1(卧室+私卫+衣帽间)、客房、多功能厅、公卫、 楼梯、露台。
厢房一层:土灶厨房,餐厅。
庭院:门楼、连廊、水榭、鱼池、草地、铺石小道、硬化平台休息区、侧花园。
1.提前两周预约岚林阁设计师

苏式园林别墅中式合院方案——岚林阁建筑设计原创

苏式园林别墅中式合院方案——岚林阁建筑设计原创
2.踏勘风水宝地

苏式园林别墅中式合院方案——岚林阁建筑设计原创

苏式园林别墅中式合院方案——岚林阁建筑设计原创

苏式园林别墅中式合院方案——岚林阁建筑设计原创
3.现场勘查 航拍 测量 规划布局

苏式园林别墅中式合院方案——岚林阁建筑设计原创
亲临现场通过和业主沟通整体方案后,来自岚林阁大师,现场发挥的手绘图,业主非常满意,不错吧!
4.外观三维方案

苏式园林别墅中式合院方案——岚林阁建筑设计原创

苏式园林别墅中式合院方案——岚林阁建筑设计原创

苏式园林别墅中式合院方案——岚林阁建筑设计原创

苏式园林别墅中式合院方案——岚林阁建筑设计原创

苏式园林别墅中式合院方案——岚林阁建筑设计原创

苏式园林别墅中式合院方案——岚林阁建筑设计原创

苏式园林别墅中式合院方案——岚林阁建筑设计原创

苏式园林别墅中式合院方案——岚林阁建筑设计原创

苏式园林别墅中式合院方案——岚林阁建筑设计原创

苏式园林别墅中式合院方案——岚林阁建筑设计原创

苏式园林别墅中式合院方案——岚林阁建筑设计原创

苏式园林别墅中式合院方案——岚林阁建筑设计原创

苏式园林别墅中式合院方案——岚林阁建筑设计原创
5.建筑庭院效果方案

苏式园林别墅中式合院方案——岚林阁建筑设计原创
业主偏爱苏派别墅,除了建筑造型,当地风俗以及风水的要求需要在平面设计时予以考虑。建筑整体为中式风格,品质极佳的真石漆与仿古青瓦搭配,让粉墙黛瓦的建筑在庭院掩映中,展现出苏派别墅的独特韵味。

苏式园林别墅中式合院方案——岚林阁建筑设计原创
古色古香的建筑视觉上清雅娴静,正房三层的高度使得建筑之间主次分明,错落有致。建筑庭院极有层次,廊道回转间一览水景和葱郁植物。庭院内以碎石铺就交通区域,厚重的石材搭配石桌石椅十分和谐。夏季花开,于石椅上赏景看花,实是惬意享受。

苏式园林别墅中式合院方案——岚林阁建筑设计原创
一层朝南采光效果非常好,大量采用落地窗,室内空间也多处开门互通,客厅通过茶室可出室外的硬化平台和石桥花园;
二层设置了主人套房,有单独的卫生间,此外还有很大的衣帽间,足够大的客厅和阳台,休闲区活动。
三层设置了子女套房,客厅,多功能厅,齐全的设备,再有就是超大的西露台,傍晚嗑嗑瓜子,看看夕阳落山的美景。真是人们向往的惬意啊!

苏式园林别墅中式合院方案——岚林阁建筑设计原创
走廊配上几盏高大上的南瓜灯来点缀一下,让夜晚不在黑暗,灯火辉煌的感觉,加深体现了家庭和睦,给人一种家的温暖的感觉。

苏式园林别墅中式合院方案——岚林阁建筑设计原创
玄关走长廊通过中式石洞门亦可到硬化平台和石桥花园;石桥花园给茶室和二层书房造景,花园虽小该有的尽有,硬化平台、草地石景、鱼池石桥。 水景附近石材栏杆,低矮奇石映于水中,展现假山之感。方寸之间,山水相间。东侧靠近院墙部分连廊水榭衬托,约上好友来家里,坐在连廊里面钓钓鱼,喝喝茶,其乐融融!院子通过绿化让庭院更具活力。

苏式园林别墅中式合院方案——岚林阁建筑设计原创
大门设计为传统的中式样式,具有强烈的庄重之感,入院后,映入眼帘的就是小桥流水,亭台楼阁,用格栅隔断来弱化层次感,若隐若现,增强了整体建筑的立体感。
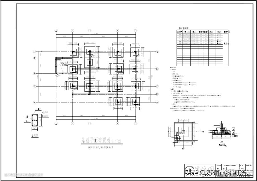
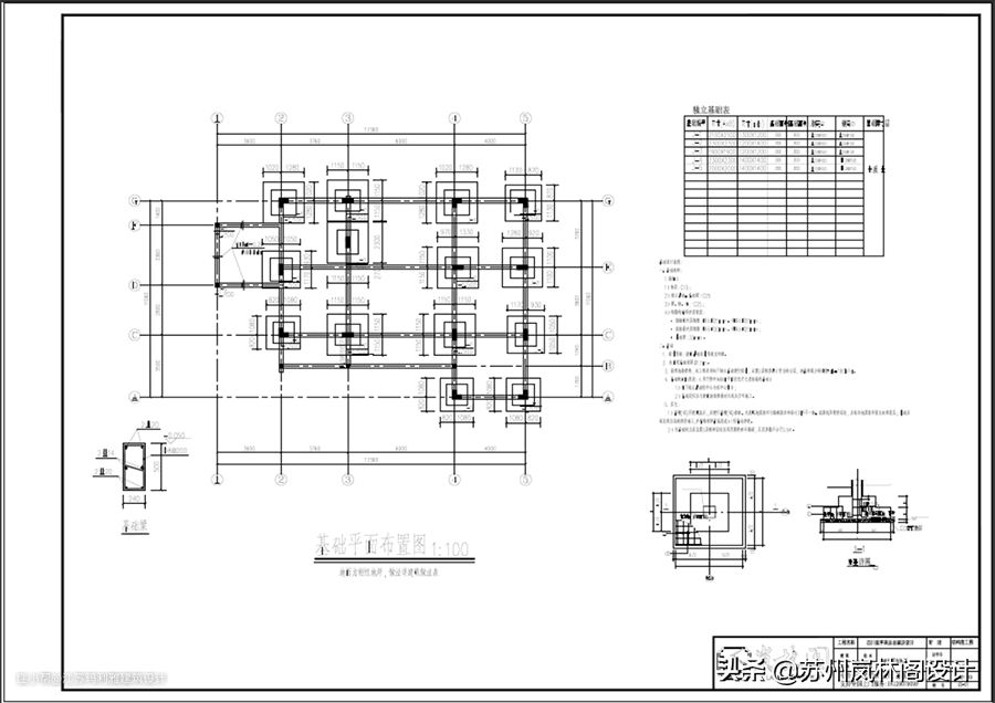
6.建筑、结构、水电施工图

苏式园林别墅中式合院方案——岚林阁建筑设计原创

苏式园林别墅中式合院方案——岚林阁建筑设计原创

苏式园林别墅中式合院方案——岚林阁建筑设计原创
一套完整的施工图纸,客户和施工队拿到手即可开工啦, 让我们期待不久的作品完美落地吧。
7.施工现场花絮

苏式园林别墅中式合院方案——岚林阁建筑设计原创
施工过程中,有不清楚的工艺,我们都有施工指导员上门为您现场指导。
让每个方案作品,在全国各地能够完美落地,是客户的意愿,也是设计师的梦想!感谢业主选择苏州岚林阁。
(期待呈现,预计2022年8月份前完成)