180平现代轻奢风,秋冬意蕴色彩搭配,符合成年人审美
华浔品味装饰集团
2021-12-14
本案例是一款以现代轻奢风为设计主线的家装案例,建筑面积较大,设计师前期和业主做了充足的沟通交流,业主提出的要求便是要在新家的装饰中融入多种现代元素,让新家看起来时尚而又潮流,并且明确了要使用现代轻奢的设计风格,第二点要求便是要在细节处做到细致的处理。设计师根据业主要求,采用现代轻奢风为设计主线,搭配了多种冷暖色调,营造出潮流时尚而又符合当下年轻人审美的家居效果。
基础信息
设计面积:180平方米
设计风格:现代轻奢风
所用材料:浅色墙布,石膏板,极窄金属边条,木地板,大理石瓷砖,线型装饰吊灯等
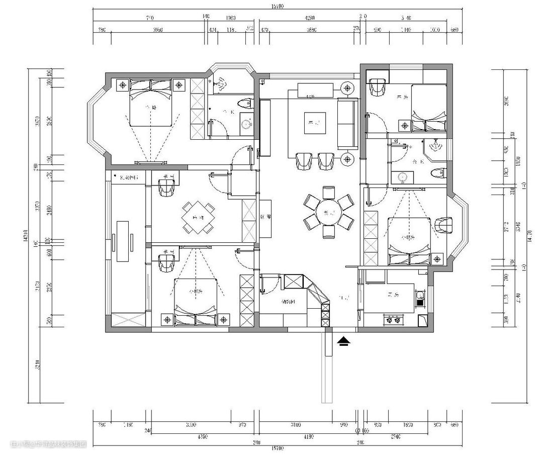
01平面布置图

从平面布置图中可以看出,建筑整体呈现南北三段式,两侧为休息区和各个功能区,中间则为客厅和餐厅等公共区域, 这种设计的手法能够让建筑内部南北通透,采光性能和通风性能达到最大水平。
02客厅
客厅和餐厅两大功能区在上方吊顶处没有做细致的划分, 二者合二为一,做了南北方向大面积的吊顶,让整个房间在视觉效果上达到统一,面积更显辽阔宽广。吊顶中央配备了金属黑色泽的主灯补光。

客厅沙发背景墙采用两种材质拼装而成 一侧为黑色底纹 带有白色线条勾勒的瓷砖进行通铺,色彩光泽度度饱满,另一侧为浅灰色饰面板通铺而成,起到温馨简单的装饰效果, 墙面上配置了一幅现代轻奢风的挂画,红色色调运用让客厅看起来更加潮流时尚。主沙发选用一款布艺材质,上方以铆钉做出一个个凹陷区域,配备了多个抱枕,非常实用。
茶几也没有选用传统的样式,而是采用一款高低不同层次分明的新型款式,圆形的桌面也显得灵活光滑,卫生更好打理。主沙发一侧的沙发犹如刚出烤箱的面包一般,蓬松感十足, 砖红色的色调和挂画如出一辙,色调饱满清新。

电视背景墙做了悬空式的处理,设计手法时尚前沿。后面以深棕色条形木格栅进行背景铺垫,中间悬空打造了白色花纹 大理石瓷砖作为电视背景墙,电视剧中放置,并再次向外凸出,整体呈现三层感的电视背景,让观影区域层次感分明, 立体效果明显。下方打造了黑色的落地式电视柜,瓷砖的材质易于卫生打扫。电视背景墙一角还配备了大型绿植和玩偶用于装饰。

03餐厅
餐厅位于客厅一侧,也是入户玄关所在的地方,这里做了一个精巧的设计,为了让入户玄关处空间更显宽广,光线更加充足,墙角做了45度的倾斜设计,扩大了玄关处的面积,并且墙体上还做了较多的收纳柜,同样起到增加收纳空间的作用。

一侧墙面打造了满墙的酒柜,内部设置了上下多层储物格,能够收藏多种美酒,酒柜柜门采用玻璃质感的材质构成, 柜门上做了竖向条纹的磨砂处理,让内部的美酒能大体看到轮廓,激起了人们想打开柜子去一窥美貌的冲动。
餐桌选用酒红色的色调,这和客厅的搭配色调形成整体,上方打造了一处现代极简风格的主灯,看起来弯曲随意样式 的主灯造型也是轻奢感十足。
04厨房

厨房的墙面全部采用白色大理石瓷砖进行通铺,上面具有浅灰色波浪感的花纹进行勾勒,大理石材质易于油污的打理。厨房上方打造了收纳柜增加储物空间,下方是烹饪区,配备了煤气灶、天然气等必备用品,让房间内烟火气十足。
05次卧

次卧床头背景墙采用浅灰色饰面板铺装而成,主床体的床头选用半包围式的结构,浅棕色的色调让人能够放松,床头一侧配备了一处床头柜,设置了多个插线板,并且配备了一处鎏金色彩的床头灯,整体搭配细节处理非常到位。
06女孩房

女儿房的设计以简约整洁和温馨为主线,整面床头背景墙以粉色色调搭配而成,采用粉色的墙布进行通铺,在床头部分还做了椭圆形的区域划分,这块区域采用米色色调进行搭配,两种具有少女代表性的色彩让房间温馨感十足。
在背景墙上还做了白云、月亮、星星等装饰品,让房间看起来更显可爱。床头两侧配备了悬空式的床头柜,简简单单的设计反而更得孩子的喜欢。女儿房向阳侧留有大面积的窗户和飘窗,能够充分享受阳光,孩子也可以在飘窗上玩耍。