60㎡现代简约,公寓这样设计,再小也住得舒适
佛山御雕装饰
2021-12-14
这是一套60平米的双钥匙公寓,上下两层单独设计,以满足同时租住两户的需要;在面积有限的基础,通过巧妙的空间利用设计,实现了实用舒适的居住体验,整体以现代风的空间设计,通过布置简雅温馨的软装家具,也让空间充满现代自然的舒适感。
效果图&平面布置图

▲双钥匙的公寓,两层的大致功能一致,客餐厨与卧室设在同一个空间内,以单身或两小口租住为主。

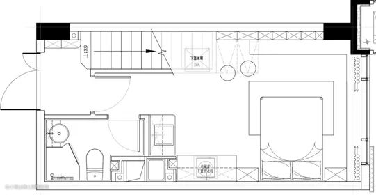
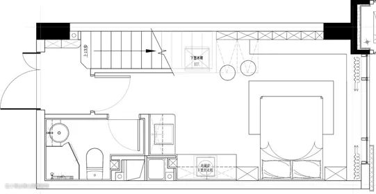
▲一楼设置卧室与厨房功能。

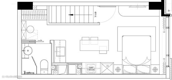
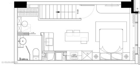
▲二楼与一楼布局类似,多了一个餐厅与衣帽间。
二楼

▲在靠窗为主摆放床铺,床头墙以木饰面与长城板的背景基础,床上铺设朴素优雅的床单,天花以无主灯的设计,床旁边就是餐厅与厨房区域,小小的空间却也功能齐全。

▲木饰面的床头墙上,挂上一幅黑白装饰画,床上布置朴素的床单、枕头,床侧边布置一个简约优雅的床头柜,整个卧室都显得格外的温馨舒适。

▲床头柜上布置花瓶、台灯与装饰画,旁边墙面是长城板与木饰面的材质,整个空间质感现代优雅而高端。

▲床尾位置布置一个小矮柜+空调柜机,布置绿植与装饰画,而在餐桌后的空墙上也是挂了两个圆形的装饰,让这个公寓空间充满简雅温馨的文艺气息。

▲大理石台面的餐桌,后方小小的厨房操作台只有一个水槽,在小公寓里没有太复杂的烹饪,冲冲泡面、吃点水果、点个快餐之类的,倒也是有一个方便的用餐位置。

▲卫生间以灰色的地砖,墙面铺上白色面包砖,钻石型的淋浴房两侧布置马桶与洗手盆,台上盆的下方也加入了木质的浴室柜,整个卫浴空间显得文艺舒适而实用。
一楼

▲一楼与二楼的大体布局一致,床头两侧加入了定制柜式的床头柜设计,结合黑白格纹的床单、灰色条纹的地毯,也让卧室显得更现代自然。


▲床头旁边的操作台做成L字形设计,墙面贴上白色小格砖,让小公寓也有文艺优雅的烹饪环境,侧边墙面的壁龛,也让空间更加实用方便。


▲操作台上方的吊柜加入实用的开放格,常用的用品可以放在上边,取用更加方便。

▲楼梯间利用起来装上收纳柜,为小公寓提供了实用的储物位置,墙上挂上多种颜色碰撞的装饰画,也显得更加文艺优雅。


▲床尾装上卡座+吊柜组合,也提供了一个情趣而实用的收纳与休闲角落。


▲小小的公寓空间,在细节处充满细腻的考虑,让小户型的生活空间也充满情趣优雅的舒适感。