掌握这几点,小白也能看懂设计图纸
爱空间武汉体验店
2021-12-23
设计师习惯用一张设计平面图和你沟通细节。
但精确、直观的设计图,小白看了都一头雾水。我们为你翻译了设计图中常用的图标,花5分钟就能学会!
1

提示:建筑类及常规的图标,作用主要体现在图纸的引导上,买房看户型的时候,也能用到哦。
2

提示:门窗类图标是门窗的俯视效果的平面,在设计图纸上是这样的(门的扇形可以指示开门方向):

3

提示:电路类的图标要和灯具顶棚类的图标出现在一张图纸上,看起来会更方便。
4

提示:电路类和灯具顶棚类图标,在设计图纸上是这样的(每盏灯和它的开关都连接起来了)

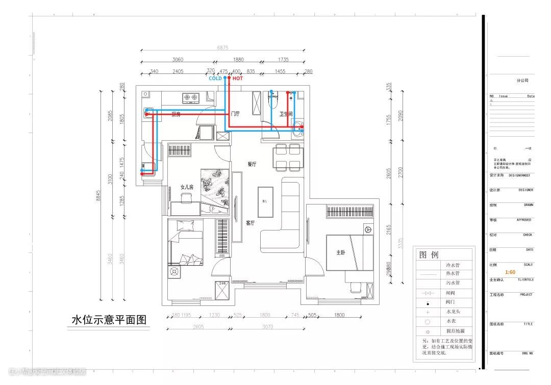
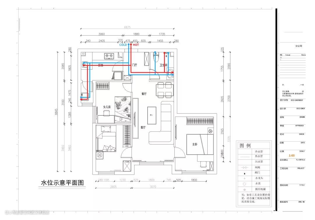
5

提示:水路类的图标在设计图纸上是这样的:
