【半墙】的妙,没了解过的人真不知道!
合肥生活家装饰旗舰店
2021-12-29
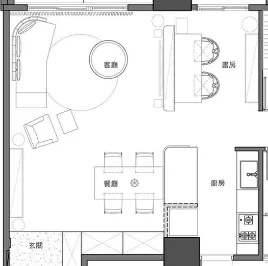
106㎡三居,客厅和餐厅连通的公共区域,半高电视墙做区域分割。

若要在电视墙收纳影音设备,需将宽度增厚50~60公分,过于厚重,因此将电视机柜独立出来。于是这面半高电视墙,把餐厨空间与客厅空间一分为二。

电视墙上方还预留了凹槽,便于藏匿凌乱的电线们,半高也好用。

这套房子里,把客餐厅和厨房都打通,建立整个公共核心区,给家人更多可以相互交流的空间,还加了一处书房,就此形成了正好方正的公共区域。
但与之而来的问题是,如何区分各个空间?

于是很聪明地做了半墙。

既是半墙,又是电视背景墙,又是书房隔断。

这样的分隔,相当于光线不分隔,畅通无阻;
但地面部分就自然地划分除了区域感。
通透、自然。

如果你仔细观察,就会发现,这样设计还有一个好处就是:
与上方梁的部分相互呼应。
如果没有下面这种半墙,就会显得梁的位置特别突兀。而呼应一下,在视觉上就形成一个闭环了,反而让人的视觉焦点不会集中在梁上。

而且半墙设计也很讲究。灰咖色大理石,显得很高级。左右两侧还用了半圆弧的设计,不拘一格,拒绝棱角的板正。

厨房用半墙
开阔的同时还能有效隔绝油烟
厨房的流行操作——矮墙加装玻璃窗。
好处有三:
1、透过开放的半墙分隔厨房,能让空间保有一定的连贯性,使两区域都能有更广阔的视觉体验。
2、半墙设计所给予的开放性,又能增进家人间的交流。
3、在半墙以上加装玻璃窗,更能达到阻绝油烟的效果。
半开放式的厨房,为了采光,做了半墙+玻璃。
不仅使得厨房更具通透性,也能一定程度上缓解做饭油烟外泄的问题。
卫生间用半墙
兼具隐私感与解压感
居家格局大多为浴厕合并设计,但要在狭小的浴室中,将浴厕两空间做分隔,容易使空间因狭小,或无采光而压力倍增,这时半墙设计就是绝佳的选择。
使用矮墙让空间有不受切割的错觉,保留视觉上的舒适感及光线的流动性,却同时达到划分浴厕、保护隐私的效果,在上半部加装玻璃更能强化干湿分离的功能,绝对是浴厕区分的好帮手。
比如这种用玻璃砖打造半墙是一种思路。透光不透人的方式。

半墙...还有无限可能
比如我们经常遇到的难题——玄关不独立。
如今许多户型都是一进门就是客厅,想把玄关独立出来谈何容易。
比如之前也写过的这个案例,进门后玄关和客厅直接相连,通常为了区分两个空间,常规做法会在两者之间砌一堵墙。

左边:常见砌墙方式
右边:这个案例的砌墙方式
但是这样的结果是:玄关不开灯则会显暗,客厅在视觉上变拥挤。
因此,这间房子选择了一个不一样的做法:在进门后的前面砌一面半墙。

或许第一眼你还注意不到这面半墙,再看一眼:

看似简单的半墙,却起到了两个至关重要的作用:
1、隔断作用:在小空间内分隔出了玄关和餐厅位置;
2、视觉作用:半墙形成了视线上的距离感,显得玄关紧凑丰富。

玄关前后对比图
那为什么这里没有使用半墙之上加设玻璃的这种操作呢?
比如这个案例,
一是考虑到房间层高较高,“顶到顶”的玻璃隔断并不美观;
二是分隔后的餐厅和玄关,存在拿取物品的需求,玻璃从中阻断反而不好。

划重点:做半墙时,若是两个被分隔的空间有取用物品之需,或是不需要明确的界线,则可以不加设玻璃。
还有这个例子,如果可以把书房融入客厅,还是有很多年轻人会选择这波操作的。
毕竟,
采光——胜
视野——胜
互动——胜

特别是当这个屋主想要把这个区域,当成健身区+工作区一体的空间。
做运动的时候还要可以看到电视,那么,半开放空间确实是个好选择。

至于选了半墙,还是为了沙发和书桌能有个靠背做依托。
这样看来,效果还不错,保证了视野的统一,但还是留有区域的界限感。
