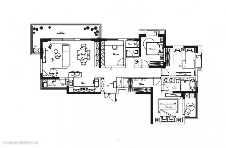
105平两室一厅装修,简约风格优雅时尚
创艺装饰阜阳分公司
2021-12-31
每个人适合的空间,要契合自身独特性。看起来绅士、稳重的王老师,他的宅所一定是既符合当下都市潮流趋势指向,又贴合内心诉求、不失男性品味的。在本次设计之旅的开始,我们在外观上脱离华丽的图案,以简约的白色为基底,打造出现代、高级、自由的潮流品味空间,体现人与生活自然的关系。基于业主的喜好,以简约的白色为空间色基,借助、浅、线条,营造出简约、现代、优雅、精致的空间。从细节打动人心。

玄关
玄关区域以简约为主,摆放着的是充满艺术感的置物架及装饰搭配,凹凸不平的抽象性换鞋凳,展现出业主的高级品味。

客厅
客厅靠着大面积的落地窗,以白色纱帘为主,搭配深灰色布艺沙发和茶几,在木地板与电视柜的搭配下,整体简约的空间显得档次自然。

由于空间面积不大,餐厅和厨房设计成一个整体。餐厅在客厅沙发后面,开放式厨房在餐厅对面。

餐厅
餐厅与客厅只用一张沙发隔开,棕色的餐桌和黑色的餐椅让空间充满层次感。餐厅旁边还有一排柜子。白色的橱柜与白色的墙壁融为一体,使得整个餐厅不拥挤,非常美观。


厨房
橱柜搭配浅黑色和白色,厨房的吧台增强了空间的高级感。

主卧
整体卧室空间以简约为主,浅灰色床头墙搭配粉色床单,简约舒适。卧室的阳台增强了室内的采光效果。


次卧
第二间卧室的亮点是床头背景墙,没有鲜艳的颜色和复杂的装饰,一幅树木墙画清新洁净、舒适自在。


书房
书房采用的是窗边悬挂式书桌设计,整体看上去简洁干净。

越是平凡的装修,越有家的温馨气息。房子不需要多大,够住就行,这样才能活着轻松。
喜欢的朋友建议收藏!