180㎡现代风格,凸显结构的形式美,更有冷暖色彩的碰撞
华浔品味装饰集团
2022-01-27
说起现代风,很多人都会想到它的简洁,也没有太过繁杂的修饰。简约,不代表将就,恰到好处的装饰,也是一种别具一格的精致。
两层180㎡复式住宅,将实用性与创意美学相结合,打造高品质生活空间。
本期介绍一个色彩多元的现代风装修案例,看看简单的线条和高纯的色彩会碰撞出怎样的惊喜。
基础信息
常住人:4口人
户型:复式二层
套内面积:180㎡
所在城市:福建泉州
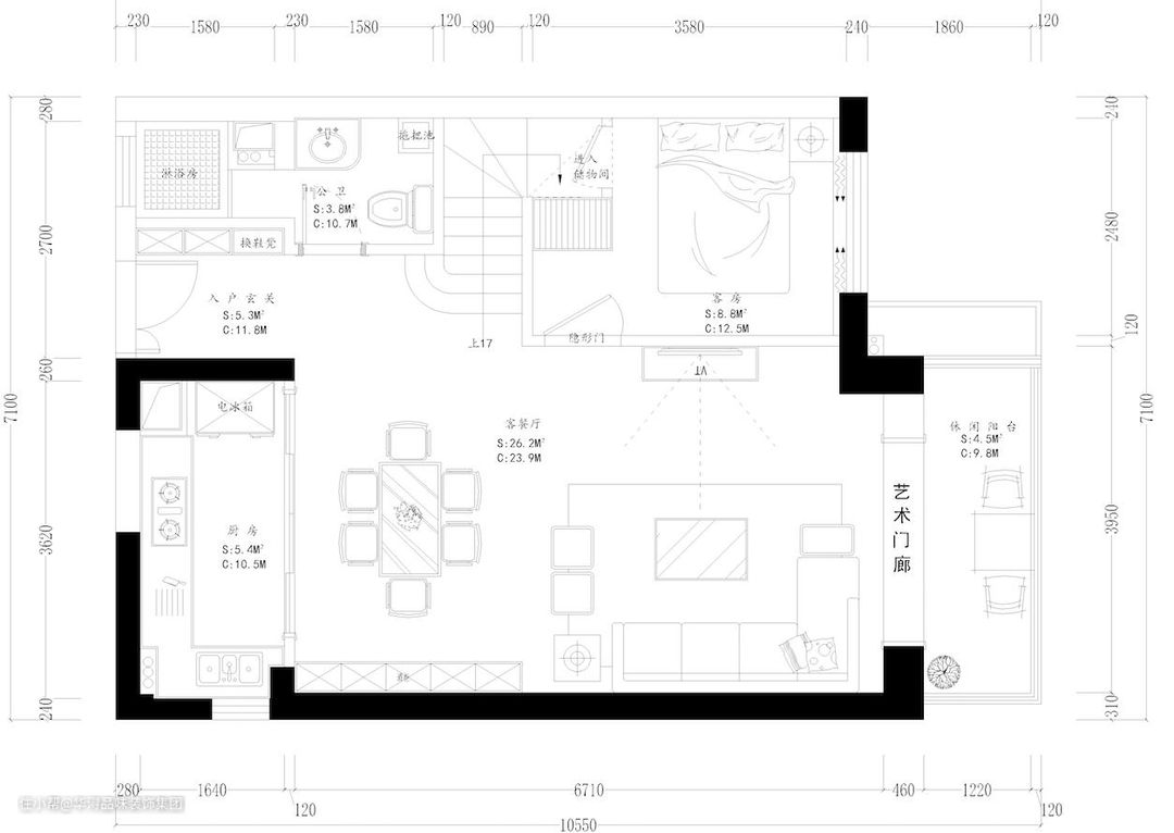
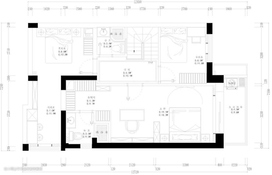
01户型图
一层平面布置图

二层平面布置图

这是一套精装房改造案例,整体设计现代风格,因为房屋的进深偏大,所以导致室内光照不足。
业主需求:
①采光通透明亮,整体宽敞舒适。
②不喜欢饱和度过高、太过亮眼的颜色。
③一家4口人,希望有够多的活动空间。
设计后:
①一楼将阳台和客厅打通,让客厅更大,采光更好;二楼也将生活阳台和主卧打通,使主卧采光及视野更好。
②无论是家具还是背景墙,都以黑白灰为主体色,其他颜色也都是饱和度适中的。
③除了客厅、阳台摆放家具后空间足够宽敞外,二楼男孩房与阅读区打通,活动更加便捷。
02客厅


家居装饰风格展现出来的是这个家的气质,在这个户型中,入门即见的是偌大的客厅。客厅装有落地窗,也会显得格外敞亮,彰显大气感。
沙发墙面使用硬包与竖向的金属线条搭配,结合透视装饰画,打破视线阻隔,丰富层次感的同时,亦加强了各区的材质呼应与联结。
再看前后背景墙,在不同材质与线条的搭配组合中,传递着平衡互补的艺术美感。客厅安装的是嵌入式吸顶灯,看起来简洁大方,清洁起来也比较方便。
全屋主色调是黑白灰,但是时不时会在某一处去点缀这份主体色,使画面不至于显得太闷。比如蓝色的窗帘,橙色的靠枕和椅子,冷暖色调的强烈对比,更加凸显空间的个性与主人的个性。
电视柜采用三种明度差异不大的三种色彩进行拼色,简约中透漏着高雅。另外在客厅用一些绿色植被作为衬托,能营造轻松惬意的氛围。
03客餐厅

增加客厅格调的,当属一个轻奢的展示柜。展示柜可以说是是全屋亮点,本设计中,嵌入式处理的展示柜已经与墙面融为一体,开放式的原木搁板在木格栅与灯带的映衬下,极为精致奢华,加高的玻璃柜与封闭门搭配的酒柜装饰,在客餐厅中开敞互联则传达出微妙的视觉张力。
餐厅和客厅是连接在一起的,无论是配色还是软装,都与客厅装饰相呼应,黑白灰为主体色,暖橙色点缀,大理石为桌面,再加上白色圆球形吊灯,营造出和谐一体又极具个性的空间氛围,简约中透漏着精致与奢华。
04楼梯


作为一个复式户型,我们使用的楼梯是转角楼梯,它能充分利用有限的空间来完成两层楼的连接。楼梯以黑色踢脚线延伸的形态充当踏步的前奏,在娴熟的结构处理中演绎场域的力量与美感。
在楼梯设计中,楼梯的坡度缓,每一级阶梯高度都有适当减小。因为楼梯上部空间较大,所以选用了浮凸式的圆形吊灯,简单大方又雅致。而拐角处的装饰画,大概占据墙面的二分之一,起到了很好的装饰作用。
05卧室

卧室作为休息的空间,应当多采用饱和度不那么高的色彩去装饰,以保证睡眠的质量,所以卧室采用了大面积莫兰迪色系,低饱和度的色系,让空间更显质感,更加高级,而且能给人带来宁静温馨的感觉。
床采用的是实木布艺材质,床的两侧放有床头柜以及一些花草装饰,来丰富视觉的层次感。另外,无论是床、床头柜以及装饰品,还是卧室的踢脚线,都使用了统一的色调,使房间整体在视觉上呈现出一致。
房子不仅是一个空间,它是承载着爱和温暖的港湾,它是万千百姓心中挂念的“家”。这样简洁大气的现代风装修,处处都体现出房子的实用性和恰到好处的精致。
房屋的每一平方米,都有我们设计的用心;每一次色彩的交融,都会带给你未知的惊喜。