小夫妻花310W在上海买下37㎡“老破小”,改造后很温馨,让人向往
家居设计师宅哥
2022-02-02
许多在上海打拼的年轻人最大的心愿就是能够买下一套属于自己的房子,不管面积有多大,最起码那是属于他们自己真正的家,和租房的时候还是大不相同的。
本期家装案例给大家介绍的便是一对从东北来到上海打拼的90后年轻小夫妻的家。

夫妻俩一直想在上海买房子,但是上海高昂的房价和严格的限购政策让夫妻俩很无力。
去年夫妻俩终于获得了买房资格,凭着之前努力工作,省吃俭用,攒下来的钱,再加上父母支持了一部分,在上海花310w买下了一套老旧小区的小户型二手房。
房子虽然是老破小,但地理位置优越,交通便利,而且离夫妻俩上班的地方距离也不是很远。
夫妻俩对这套老旧的二手房进行了翻新改造,重装后的家显得十分的温馨舒适,面积虽小,但夫妻俩还是觉得很满足,在上海,他们也算是有了真正属于自己的家了。
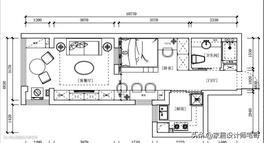
空间布局图

夫妻俩的家套内面积是37㎡,主体结构是偏狭长型的结构,另外有一个独立出来的厨房。
从进门处往里走,依次是右侧的卫生间、卧室,左侧独立的厨房区域以及最里面的客餐厅区域。
整体的空间设计和划分是十分合理的,面积虽然不大,但是足够他们小夫妻两个人居住。
整体家装风格是现代简约型的设计,浅色系的运用也给人一种十分温馨和治愈的感觉。
在设计上注重实用性和美观性,同时也十分注重细节的设计和处理,所以打造出了一个十分温馨和治愈的空间。
虽然在色彩搭配上偏简约风,但是一些家居和物品的摆设,给整个家增添了一种暖暖的家居氛围感。
玄关

整个玄关区域是可以直通内侧的窗户,所以在采光以及开阔度上是足够的,狭长的走廊也给人一种视觉上的开阔感和大气的感觉。
六边形偏棕色的拼接地砖设计显得十分美观,进门处还有一个可爱有创意的地毯和一个玩偶换鞋凳,一进去便超级温馨呀!
左侧的墙壁没有过多的装饰,而是保留了白色的墙壁,右侧则是打造了一个玄关柜,柜子中间还做了镂空式的设计,方便一些香水、包包、钥匙等的放置,上下的柜子则可以放置常用的物品和鞋子,是一种十分实用性的设计。
厨房

厨房完全是现代化的设计,黑白灰色彩的搭配和运用,给人一种整洁干净的即视感。
U型的厨房也十分方便操作,上下的橱柜运用隐藏式的把手,打造出了一种干净、大气的效果。
厨房中整齐放置的各种调料、厨具等等,体现出他们对于生活细节的追求。
冰箱上可爱的冰箱贴盒、储物架以及好看的地毯,也有一种暖暖的家庭温馨感。
厨房是封闭式的中式厨房,可以在很大程度上缓解油烟的问题。
卫生间

卫生间的门是吊柜谷仓门的设计,可以节省开门空间,中间是绿色的磨砂质感的玻璃,加上原木色的边框,有一种自然怀旧和复古的效果。

浴室柜很大气,黑白配色经典耐看。镜柜、浴室柜加上旁边的立式壁柜,小小的卫生间里收纳能力非常强,放置一些化妆品、洗漱用品都是十分方便的。
整齐地放置着刷牙杯和一些绿植作为点缀,满满的生活气息。
浴室柜和淋浴区之间有玻璃推拉门隔断,做到干湿分离。

墙壁上也设计了很多的挂钩和置物架,方便一些毛巾和浴巾等的收纳和放置。
卧室

卧室设计在中间的位置,家里的访客很少,宽敞带阳台的客厅对于夫妻俩来说更加重要,所以大胆地将卧室和客厅空间进行了互换。
卧室区域打造得温馨又浪漫,左侧是靠墙放置了桌子,可以当做女主人的梳妆台,也可以当做他们平常的工作区,方便又实用。

右侧靠墙处则就是他们的小窝了,为了增加储物空间,整体上运用抬高式的榻榻米设计,并且加了楼梯,巧妙美观又能够增加储物空间。
床上用品选择的是橘色的可爱风格的床上用品,看起来格外的舒服和温馨,墙壁上还放置着他们的结婚照,这也是他们最喜欢的一个小角落了,满满的幸福感和温馨感呀!

床尾处还有一个简易的工作桌,放置着台式电脑,这是老公最喜欢的空间。
靠近卫生间隔墙处还有一组通顶大衣柜,柜门是百叶窗设计,更加透气。
客厅

卧室与客厅之间设计了一个小窗户,既可以保障卧室的采光,又能保障空间的通透性。

客厅整体上看起来特别敞亮和舒服,柔和的光打在客厅去给人一种十分温暖的感觉。

沙发、茶几均是浅色系的,再加上一些可爱的装饰品做点缀,有一种自然清新又温暖治愈的感觉。

电视背景墙打造成了一体化的柜子,中间做了镂空式的设计,放置电视机,而下面还有一个壁炉,创意又美观。
除了放置电视的空间,其余空间全是柜子,可以放置平时的杂物和衣物等等。
旁边还专门设计了玩具展示柜,因为男主人平时特别喜欢这些手办,所以在家装设计时专门设计了这样的一个展示区域。

客厅还安装了投影仪,直接投放到白色的沙发背景墙上,瞬间变成家庭影院,两人一猫一起看着喜欢的电影,幸福感爆棚。
阳台

阳台区域也超级温馨和治愈,收纳柜带小卡座的设计,搭配一张小圆桌铺着可爱的桌布,旁边还设计了可以坐着的小柜子,加一些玩偶,超级温馨。

阳台区域另一侧还放置着洗衣机和一些杂物,整体上是十分有生活气息的。
他们还养了一只猫,在窗户上给小猫咪做了一个吊床,非常惬意。
一屋两人一猫,也是超级温馨了吧!
结语:这一对在上海定居的沪漂小夫妻的家,是不是格外的温馨和治愈呢?和自己相爱的人住在一个亲手打造和设计的浪漫小空间里,舒服自在地生活着,这便是人生最大的幸福了吧~