307㎡斜顶复式实景分享——俊发.滇池俊府
胡桃善锦原创全案设计
2022-02-15

滇池俊府
● 这套案例位于官渡区俊发.滇池俊府,属于精装复式。但是精装房有一大弊端是改造空间小,设计不合理。因此业主找到我们帮他进行二楼全改,一楼半改服务。
房屋状况:
1、由于是斜顶构造,层高较矮、部分空间难以利用 2、精装房风格搭配不美观 ,房屋光线不足 3、没有地暖、空调,不满足业主入住需求
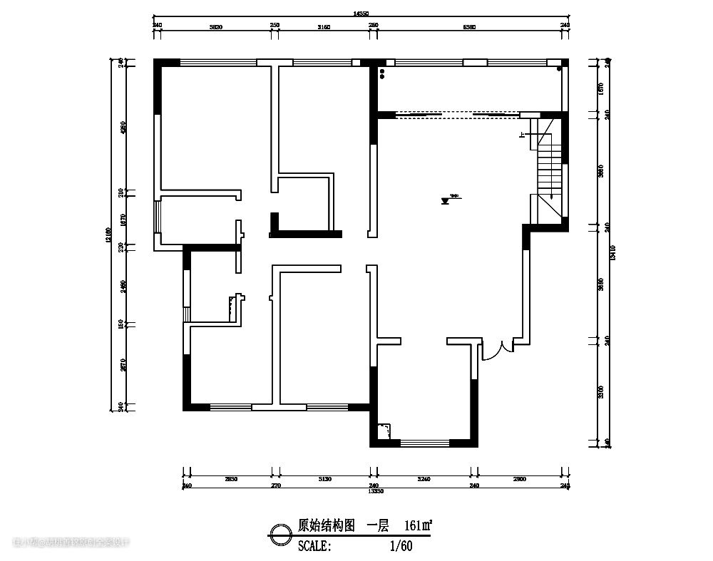
一层原始结构vs布置后cad


客户需求:女主人需要一个独立衣帽间,喜欢烘焙,需要烤箱台面。
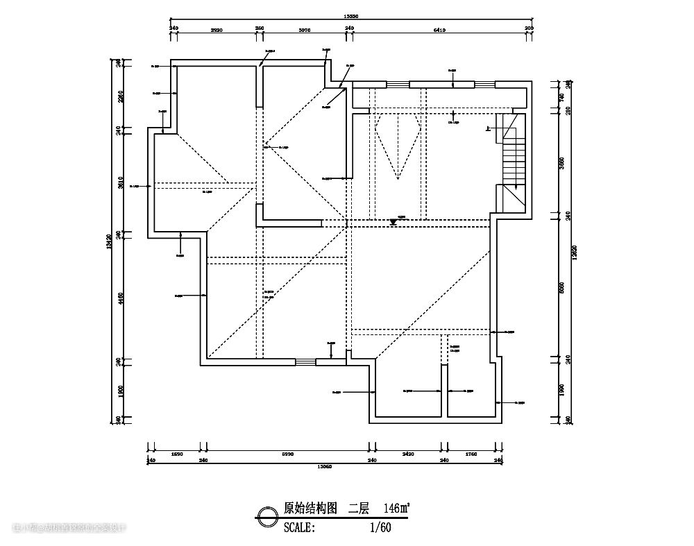
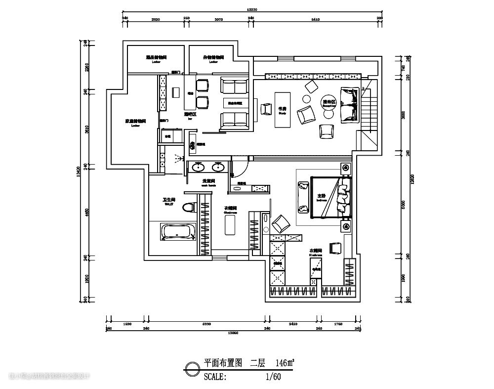
二层原始结构vs布置后cad


客户需求:1、客户儿子喜欢聚会,需要一个家庭酒吧。2、男客户喜爱喝茶,需要一个茶室品茶。二楼主卧是用来给儿子做婚房,衣帽间样样都不能少。3、希望房间能变得明亮些。
改造中

一楼楼梯口


二楼玻璃门凹槽、斜顶改造、拱门结构搭建

二楼卫生间入口
玄关

玄关用深色墙板与黑色大理石打上射灯,营造回家的仪式感。要注意的是射灯的角度,扫墙射灯,更能彰显挂画的特别之处。
一楼客厅


一层大客厅采用无主灯设计,三个层次的灯光,主次分明,达到了无主灯照明效果。哑光色沙发+无主灯设计轻松打造光影的明朗层次,构筑简单的高级感。#客厅
二楼客厅


小型会客厅位于二楼楼梯口处,白色大理石桌面配上米白色皮沙发,有质感又时尚。温润灯光,营造低彩度的暖心氛围,再加一些业主挚爱的精致摆件,点缀在柜体与台面,沉稳而又不失优雅。


以小型弧形窗为中心,分割茶室与会客厅。拆除墙体,换上玻璃门,光线如水流般涌入卧室,卧室也拥有了自然光亮。


开放茶室


开放式茶室巧用光线,柔光注入茶香,好像人生百态不过如此。“千秋大业三杯酒,万丈红尘一壶茶”。#茶室
家庭酒吧

家庭酒吧相较于外面的酒吧少了一丝杂乱感,多了一丝清净柔和。当酒与故事交织,鸡尾酒中又藏有怎样的隐喻?


整个酒吧一半冷色、一半暖色,有差异却也搭配的相得益彰,营造空间内生趣之美。沙发围合的区域形成极好的社交区域,即使是大面积的落座,仍然保持轻快、通透的氛围感,三五好友,偶有小聚,谈笑风生,最是安放身心之处。
厨房

吊柜和橱柜的设置为厨房的收纳规划提供充足条件,让整个厨房空间更加整洁。#厨房
餐厅

餐厅的设计采用岩板餐桌,视觉上的轻盈感,以灰色为主调,将灰色的沉稳和现代艺术融合设计语言中。墙面以灯带装饰摆件,增加氛围感。
卧室


主卧吊顶上方藏了灯带,夜晚开灯使用上十分实用又不会太刺眼。浅紫色的床品搭配,沉稳又有质感。

次卧的设计同样不失格调,暖色调的软装体现暖暖的生活氛围。床头采用射灯+线性灯的设计,简约的设计,极致的时尚。

总监设计师:陶强飞
工程地址:俊发.滇池俊府
建筑面积:307㎡
风格:现代轻奢
施工方式:全案