30㎡夹层老公寓还能这样改造设计?轻松get挑高北欧风小宅!
有木设计
2022-03-20
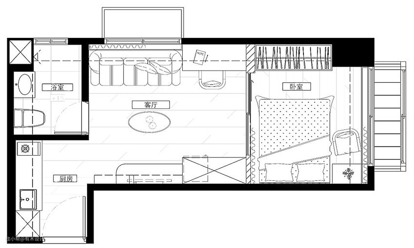
屋主是一对新婚夫妻,房屋层高三米六。旧格局原本为夹层设计,但楼梯占据客厅大部分空间,导致采光很差,且夹层过小,高的人很难站直。考虑到两人需求希望让小空间更放大、公、私区域能做出区分。设计师觉得空间无需多添加一个夹层,大胆提出拆除夹层的想法。

室内风格则选定为屋主们偏好的北欧风,在简洁中又添加了各式淡彩装饰、明亮的家具等增加了一丝活泼的氛围,最终达成了坐享两面通透采光、机能完整的小巧公寓。

现在让我们来看看设计师具体是如何设计的。

1.客厅设计:
打掉夹层后,客厅恢复为完整方正的格局。

微挑高的天花板让视线延伸,书桌上方则刻意做低,设置间接照明,打造有层次的天花板视野。

一张造型简约、柔软厚实的灰色沙发带出十足北欧风味,全室皆铺上相同色系的温暖木地板,电视墙漆为柔和浅蓝,使用壁挂电视,设计简单层板取代电视柜功能,简化壁面线条。

2.多功能空间设计:
客厅到卧室的过渡区是两人用餐、工作用的空间。设计师选用轻巧的茶几,方便随时搬动。电视墙左侧规划木质收纳高柜,并将容量充足的冰箱安置于此,不局限于厨房空间;冰箱上方设计一个跳色柜格,感觉更加活泼。明亮的窗台旁也规划贴墙的工作桌面,无桌脚设计更方便清洁。

3.厨房设计:
厨房最引人注目的莫过于装在清洗台下方的滚筒洗衣机,其实这是国外常见的配置。

以前洗衣机放在浴室,占空间又不好操作,也会导致小浴室的湿气过重,只要换个角度思考,把较大的家电移到闲置空间,就能让家中动线更加流畅。

因为夫妻两人都是上班族,下厨时间不多,简洁利落的一字型厨房搭配电热炉就很够用。

4.卧室设计:
因为太太比较早睡,先生晚上在客厅看电视时怕吵到妻子。设计师便在此安装黑框拉门,特别选用茶色玻璃衬托室内温暖氛围,也能稍微降低白天卧室侧的亮光。

内侧设置遮光窗帘,友人来访时可直接拉起,平时则保持畅通,兼顾通透格局和卧室隐私。

5.浴室设计:
原本浴室入口设在中央,翻新后门口改在更为贴墙的位置,放大了浴室空间。一开始男主人希望做干湿分离,但空间不大,洗澡时会不方便伸展,设计师考虑使用需求后,成功说服屋主改为开放式淋浴间。地板及墙面使用耐看的深色磁砖,不锈钢收边条增添简约质感。

(图文分享整理自优尼客,侵删)