发现五口之家的装修,那叫一个高级,拍照给大家伙瞅瞅,超羡慕
二十四城装饰成都总部
2022-03-29
发现五口之家的装修,那叫一个高级,拍照给大家伙瞅瞅,超羡慕
随着时代的发展,越来越多的家庭,对孩子的教育问题非常的关注。就拿装修来说吧,越来越多的人,为了在家营造更好的学习氛围,会选择去客厅化的设计。不挂电视机,将沙发茶几换成大板桌,方便孩子学习和阅读。
就像今天给大家推荐的精选案例@我去追回太阳的新家一样,将60㎡大客厅划分为会客厅和学习区,电视墙上也取消了电视机,空闲的时间,大家都围坐在学习区学习或是玩耍,家庭氛围特别好。更是拆除了很多墙面,将公共区域全部设计成开放式,让每个空间活动的人都能进行互动,增进家人感情。
下面就和小编一起来看看这个互动性特别强的大平层,相信能给你带去不一样的装修灵感。
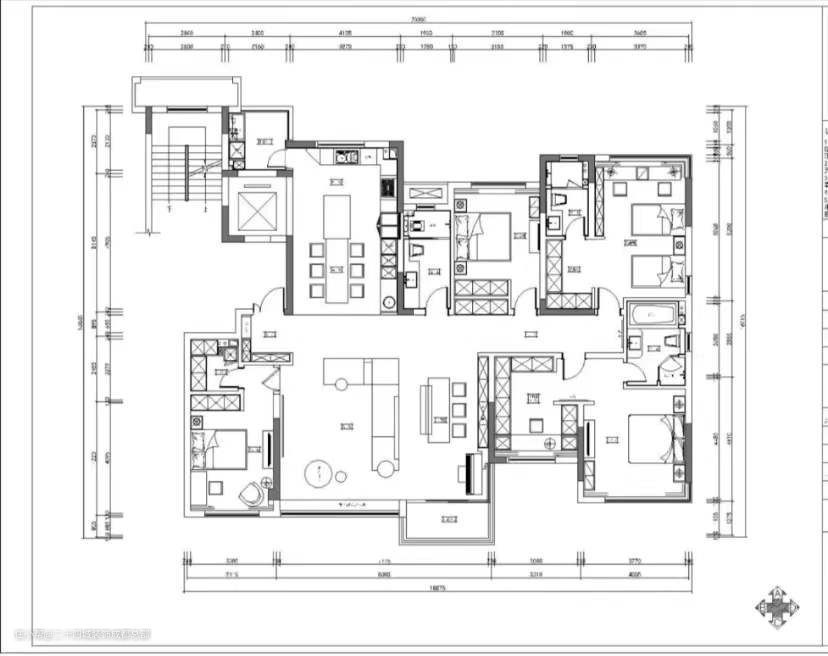
房屋信息及设计说明
建筑面积239㎡,套内面积198㎡,封掉阳台后,实际使用面积210㎡,是个三室两厅三卫三阳台一厨的大平层,常住人口是一家五口(2成人,2儿童,1老人)。对装修的需求是,希望家庭氛围要好,空间上不要有所浪费。
根据原始户型,再结合业主的平时生活习惯,很快就确定了方案:

1. 厨房和餐厅打通,设计开放式厨房,中间设计岛台+岩板餐桌,增加收纳和桌面空间。
2. 厨房外的生活阳台,设计成洗衣房,满足洗晒衣物的需求。
3. 客厅一分为二,以沙发为隔断,划分成会客区和学习区,方便孩子们学习。
4. 阳台封窗和客厅打通,可以让空间更显大。
5. 电视墙后面的房间与阳台打通做老人房,挪出空间增加衣帽间,增加空间收纳。
6. 家里有一对双胞胎女儿,关系非常好,给孩子们设计了一个套房,让孩子们可以住在一起。
玄关

进门墙面设计L型柜子,不喜欢大众三分离的鞋柜设计,在中间设计镂空小台面加灯带做装饰,让玄关可以更具个性化,胡桃木色和白色的搭配,更显高级感。
餐厨

餐厨打通后,设计成一体式,不仅可以增加餐厅的使用面积,让厨房的使用面积也增长了不少。色调上是黑白调,简单的颜色搭配出的时尚感,是不容易过时的。

侧面整面墙的柜子,应该算是橱柜而不是餐边柜,从窗边到里侧,依次是集成灶、冰箱、烤箱,以及后面的酒柜区,基本可以满足厨房所有的需求。

与别的岛台+餐桌不一样的设计点在于,这里是实木的岛台搭配岩板的餐桌,材料的置换,并不影响颜值和使用,相反,餐桌上的使用率比岛台多许多,餐桌需要更方便打理、更抗造。

岛台是由两个储物柜组合而成,拥有强大的收纳能力,如果空间允许,设计一个岛台是很有必要的,非常的实用。
洗衣房

厨房外的阳台设计成多功能房,包含了洗衣、洗拖把,收纳生活杂物和天然气热水器等功能,家里不是很美观的东西统统放这里,不影响其他空间的高级感。
客厅

这个房子,除了原本的厨房小了一点点,其他空间都比较大,尤其是客厅,有60㎡之多,非常的宽敞了。用沙发做隔断,将空间一分为二设计成会客厅和学习区。

重新划分后的会客厅,空间被缩减了不少,为了让会客厅不显得局促,将茶几靠墙摆放,中间只摆放了一组黑色的皮沙发,满足偶尔的就坐需求就好。

改造后的客厅景深也受到了影响,如果要挂电视机的话,对眼睛的伤害比较大,也觉得没有挂电视的必要,就做了无电视机的设计,在背景墙上做了一个隐形门的设计就完事了。
学习区

改造出的学习区,靠墙设计整面墙的柜子,用于收纳客厅物品和书籍,摆放大板桌,用于学习和阅读。桌子够大,一家人围坐在一起都很合适,哪怕不学习,一起嗑瓜子聊天也能很惬意,这爱好有点接地气。也可以组高端局,比如茶局,这里也很合适。

柜子的左下角做开放式书架,这高度,是根据孩子的身高设计的,适合孩子自己拿取,让孩子可以更独立。
阳台

阳台封窗和客厅打通,原本的设计图上,这里比较宽的位置做了一个独立的休闲阳台,装修的时候女主觉得没有必要加推拉门,直接拉通设计,可以更好用。

大大的玻璃窗,阳光很好,整个客厅都笼罩在光照里,自然又温馨。微风吹动白纱,让人心旷神怡,打通后的客厅,更加舒适。
卫生间

黑白色调的洗漱台,拥有超长的台面,可以让洗漱不打挤。壁挂马桶的加入,会让墙面凸出一块,很不美观,索性在上部加入柜子的设计,既能增加收纳空间,又能更加美观。
主卧

床头背景墙是深灰色的乳胶漆,搭配浅灰色硬包的设计,时尚又高级。左右床头柜上方的辅助灯源做了差异化设计,制造出一种不规则的美。

抽象派的画作,增加墙面的细节感,顶面一盏射灯,灯影打在装饰画的正上方,营造出朦胧的氛围感,可以让卧室更显温馨。

衣帽间设计成开放式,柜门大部分也是玻璃门搭配灯带的设计,可以让柜子内的物品更好地展示出来,方便拿取和搭配。
儿童房

家里有一对双胞胎女儿,可能是一起出生的原因吧,关系非常的好,做什么都要在一起。虽然家里的房间足够多,但孩子们还是选择了住一间房,挑了最大的一间房给她们,房间内所有的东西都配备双份。

两个小床,还需要两张桌子,窗边的空间足够长,靠窗设计一排的书桌,两小只一起写作业,一起成长。

本来小公主的衣物就会比较多,更何况是两个小公主,除去了睡眠区和学习区,剩下的空间都做满柜子,让孩子们可以随意地装。
客房

孩子们住到了同一个房间,房子就多出了一个房间,设计成备用房。备用房不需要太大,进门门口的空间设计两组柜子,一组柜门开向过道,方便外面储物,一面开向室内,方便房间内储物,剩下的空间摆放双人床刚合适。
老人房

两口子都需要出门工作,照看和接送孩子的任务交给了婆婆,孩子上学后,在家做一些家务。所以老人房也需要比较大,与阳台打通后,门口的空间新增衣帽间,方便老人衣物和家里的各种床上用品。
(图片源于网络,如有侵权联系删除)