8款阳台设计|被赞了6000遍的洗衣机柜,附尺寸
振祥装饰
2022-04-16



房子装修,家里虽然没有封阳台,但我还是定制了一个阳台洗衣机柜,把干衣机和洗衣机叠放起来,同时洗衣机柜的设计又可以增加很多收纳空间,比如洗衣液、清洁小工具、吸尘器都可以收纳进去。
✅阳台洗衣机柜尺寸
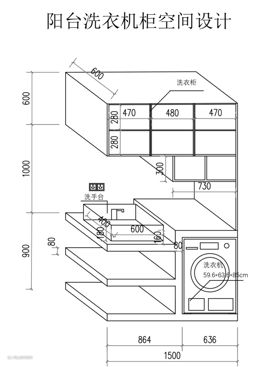
洗衣机柜整体深:650mm
洗衣机柜整体高:2800mm
洗衣机整体柜宽:1590mm
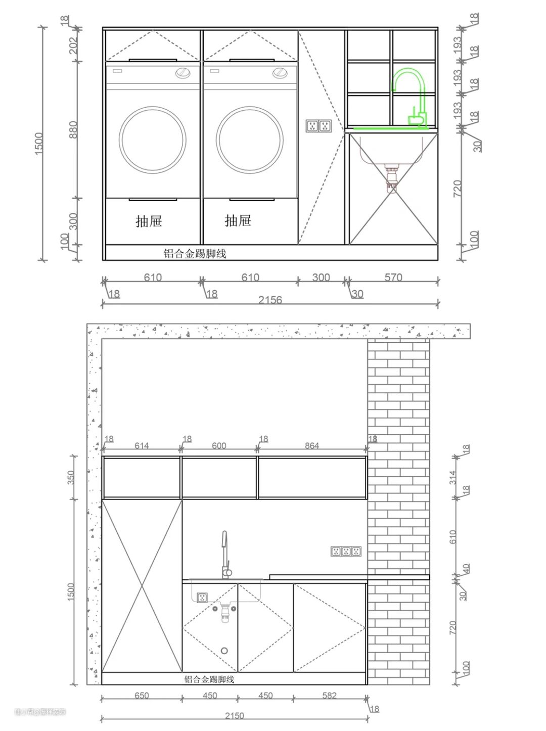
阳台洗衣机柜细分为台盆区、洗衣区、高柜收纳区
✅阳台洗衣机柜材质:多层实木
目前用下来,感觉还行,用5-10年应该没有问题的


▶️这次给大家分享一些我家阳台洗衣机柜安装的过程
1、精装房收房后,改电位,增加插座🔌
2、量尺寸,设计洗衣机柜,把排水管包起来
3、洗衣机柜设计要合理分区,根据个人使用习惯来定,比如我家就预留了台盆龙头,这样取水浇花或洗手都方便
4、安装洗衣机柜,现场要看着师傅安装,免得出错
以上是我家阳台洗衣机柜的分享,家里正在装修或准备装修,觉得实用,可以📲存一下。


🌟洗衣机柜上方做吊柜
可以摆放一些不常拿的备用洗衣用品或者是一些小件清洁工具!
🌟洗衣机柜左侧预留一个高柜
里面可以预留一插座,这样也可以把吸尘器收纳在这里,是不是很省空间呢?
🌟洗衣机柜的中间留空
摆放洗衣机和干衣机,洗衣机和干衣机叠放也是很省空间!
🌟洗衣机柜的右侧装一个台下盆
装上龙头洗手、洗东西方便!
▶️洗衣机柜尺寸参考
🌟地柜深:600mm
🌟地柜高:850-950mm
🌟台面与吊柜中间留空600-700mm
🌟吊柜深:350mm
🌟高柜深:600mm(和摆放洗衣机持平)
⚠️阳台装修注意事项
1️⃣地面做好防水
2️⃣地漏坡度要留好
3️⃣洗衣机🚰进水口排水口预留好
4️⃣插座🔌留够并装对位置


🌟洗衣机干衣机叠放
家里阳台空间小,洗衣机和干衣机叠放省空间,上方吊柜设计,增加收纳空间。
洗衣机旁边的台面装一个水槽,方便清洗,水槽上方的墙面也可以做吊柜,可收纳洗衣用品。

洗衣机叠放大概175cm,一般160cm女生伸手就能轻松按到开关键啦。


🌟洗衣机干衣机并排
如果你家阳台宽度2米左右,女生身高矮一点,可以把洗衣机、干衣机并排放,拿衣服也方便!
洗衣机和干衣机并排放,那台面相对宽敞一些,上面也可以做一排吊柜,方便收纳。


🌟单独洗衣机柜
如果你喜欢晾干衣物,家里阳台上摆放一台洗衣机即可,把洗衣机嵌入洗衣机柜,预留一侧空间用来摆放水槽。


🌟阳台洗衣机柜布局设计:
▶️洗衣机柜上方做吊柜,虽然很高,但可以放一些不常拿的物品,增加一些收纳空间,也是不错的!
▶️洗衣机柜中间预留600-700mm做一个台面,台面上装台盆龙头,方便清洗。
▶️洗衣机柜的中间墙面和地柜墙面记得预留插座,方便用电。
▶️洗衣机柜底下的空间也是可以用来收纳的,把柜门一关,就可以很整洁了。
🌟阳台洗衣机柜布局尺寸
✅地柜高850mm
✅台面宽600mm
✅吊柜深350mm
✅洗衣机柜内空尺寸:根据洗衣机高和宽来定,提前定好洗衣机和烘干机尺寸


🌟洗衣机柜上方做吊柜,可以用来摆放一些备用的洗衣液等物品。
🌟洗衣柜中间台面可以装一个台盆水龙头🚰
🌟洗衣柜中间墙面🉑️预留1-2个插座🔌,方便后期用电。
🌟洗衣机地柜内嵌洗衣机,定制之前要先定好洗衣机的高和深。
🌟洗衣机地柜台盆底下的空间,也是可以用来收纳一些杂物的。
▶️阳台洗衣机柜布局尺寸
✅吊柜深350mm
✅吊柜与地柜之间留空600mm
✅地柜高1000mm
✅地柜深600mm


房子装修,家里如果有空间,可以打造一间洗衣房,在洗衣房完成洗衣、烘干、熨烫、折叠等步骤,这样用起来更方便,且阳台上再不用晾晒衣物了,会更美观!
▶️关于洗衣房设计
1️⃣提前预留好水电位
装修前,就要提前规划好家里的空间,如果你想做洗衣房的话,要提前预留好进水口、排水口、插座
2️⃣确定好洗衣机干衣机的摆放位置
有两种摆放方法,一种是上下叠放,一种的并排摆放,这个看洗衣房的空间大小和个人的喜好,如果空间较宽敞,我个人觉得并排放,用起来更方便。
3️⃣预留好收纳空间
洗衣机柜设计要多一些收纳空间,方便收纳一些洗衣用品,台面上的空间还可以整理衣物和熨烫,这样设计更方便。
4️⃣预留一个台盆
洗衣房里建议装一个台盆,方便洗手或手洗小件衣物
5️⃣洗衣机柜层板加固
洗衣机没有落地设计,这样不用弯腰取衣,要注意层板承重,建议层板加厚或加钢板加固