筑道设计丨中式×现代:风格交错的碰撞
筑道国际设计
2022-04-07
不同风格的设计如何使其相处融洽和谐,兼具中式的儒韵雅致与现代的时尚潮流,本身就很考究设计师的把控能力,室内设计其实就是另一种意义上的带着镣铐舞蹈。
负一层客厅瑜伽区水吧区


吊顶大量的留白会让人的注意力下移,然后便会被独立于水吧台与客厅中间的电视背景墙所吸引。


独立的电视背景墙既可以丰富空间的层次,还不会影响整个负一层的整体采光与视野,大面积的落地窗也实现了室内外空间的最大化接壤。
#瑜伽#客厅#电视背景墙#水吧台#地下室设计#
一层客厅

如果说负一层是现代为主的话,那么一层便恰恰相反。客厅展现中式风格的同时,还运用了金属玻璃等材质,中和了传统中式的沉闷;传统中式与现代元素交相辉映,如同一幅现代水墨画。
#客厅#中式#现代#客厅设计#别墅设计#
一层品茗区

位于一层的品茗区,吊顶为方,背景嵌圆,有圆有方便是中国人内心的写照,一圆代表着外表和顺,一方代表着内心端正,方圆以成规矩,正是房屋主人内心的诠释。
#品茗区#中式风格#茶桌#茶具#茶室设计#
二层女儿房

定制的床头柜在左边陡然停止,背景也是,位于窗边的那抹灰色,那盏吊灯,这种不对称的设计会让人联想到活力与朝气,但并非任何不对称都是美丽的,只有在不对称的要素中创造出条理和平衡,才能称得上是具有美感的设计。
#女儿房#吊灯#床头柜#卧室设计#
三层卧室


沉稳的色调奠定了整个空间的基调,中正沉稳的设计,却又在细枝末节处带来一些变化,打破了原本的框架,拒绝了原本的中规中矩,只一点点,便能彰显主人的个人色彩。
#主卧#主卧设计#背景墙#

中间的电视背景墙很好的分割了空间,明确了内外空间的定位,在不影响动线的同时更好的保护了主人的隐私。
卫生间


黑与白的对立,碰撞出的是冷静与克制,在这一份冷静与克制之中,寻找着一份平衡;镜后的灯光带来的一丝暖意,简单的布局让这个空间变得错落有致,流畅简洁的线条让美感与实用并存。
#卫生间#卫生间设计#浴缸#马桶#
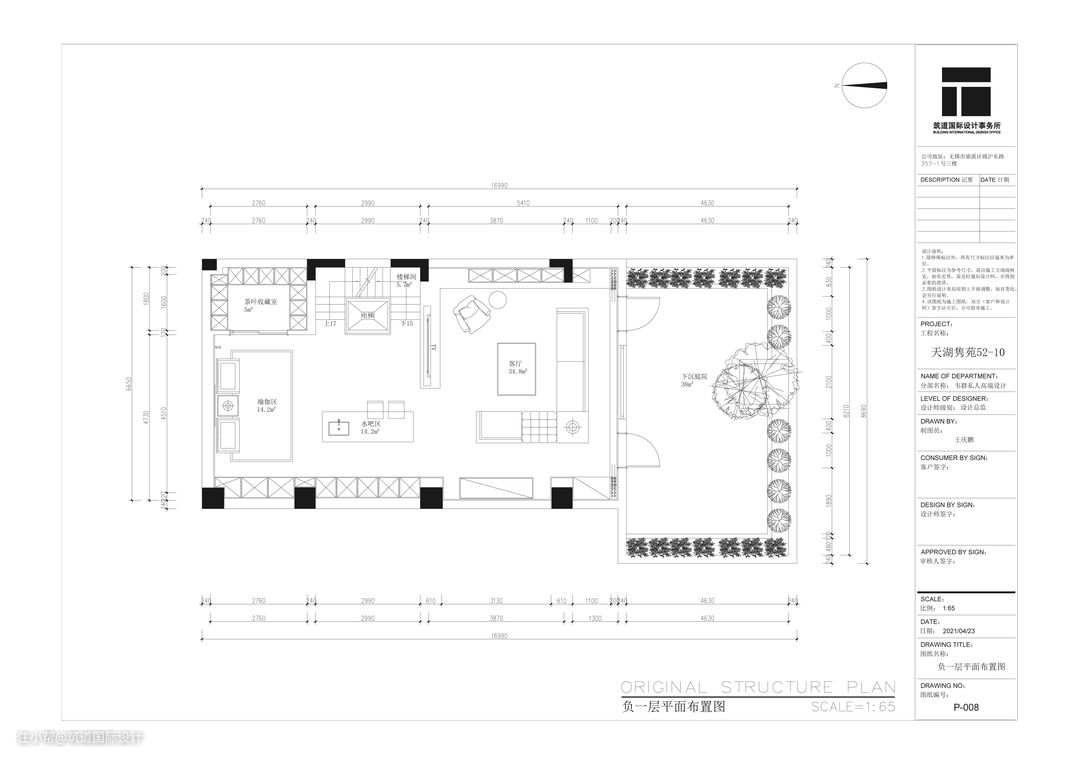
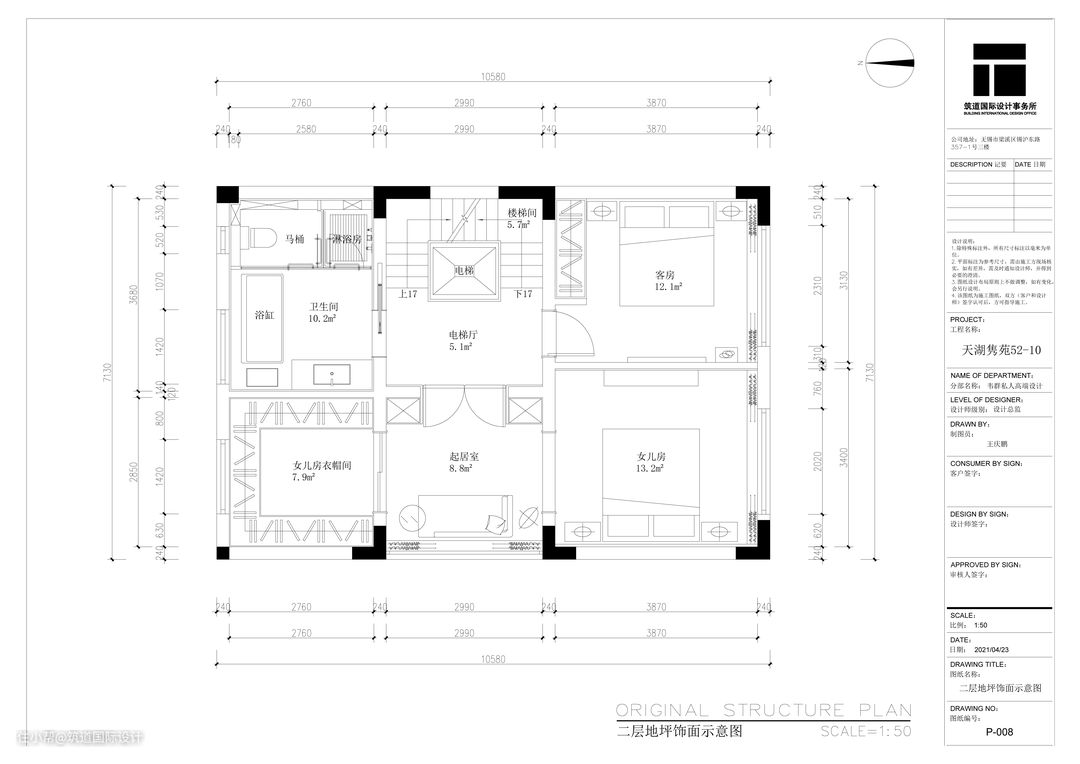
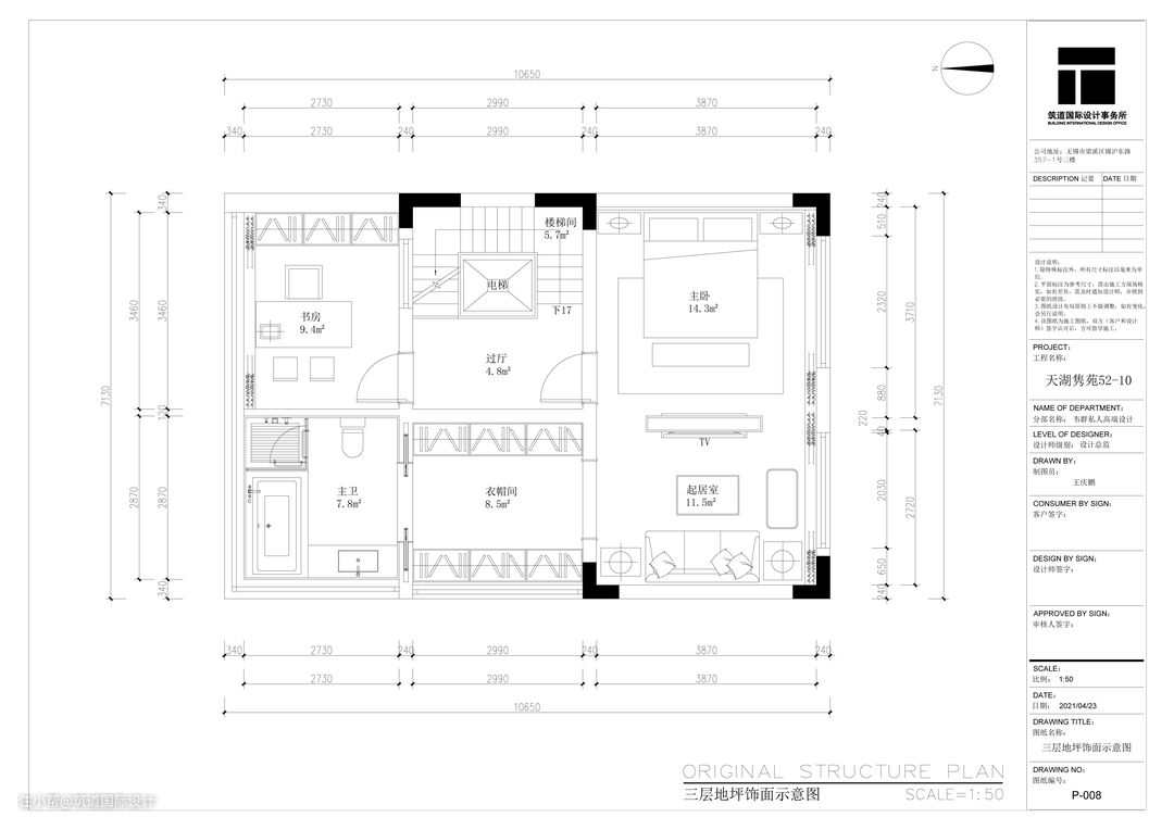
户型分析:
1. 负一楼完全处于地下,车库也不在这一层,采光及通风透气性均不佳。
2. 一楼挑空太多,导致二楼空间较小。
3. 三楼露台面积过大,只有一室一卫,房间过小,不够舒适。
4. 整栋别墅有五层,上下楼需要一定的时间,不够便捷。
平面布置:
1. 从一楼下挖下沉式庭院,完整的落地窗带来的采光使地下空间的压抑得到解决,地下区域原本的湿闷潮气都一并得到解决,并带来了生机。
2. 将原本的L型楼梯改成U型,中间的位置留给电梯,楼梯步数的增加会让上楼的幅度变缓。
3. 二楼重新浇建楼板,扩大面积,将原有的两室一卫改成了一个套间,还有一个单独的客房,卫生间也扩大了,使得居住的品质得到提升。
4. 重新砌墙将原有的露台揽进室内,增加了书房与衣帽间的空间,将卫生间的位置改到左侧,让卧室扩大,外侧改成起居室。



