设计师崔博 | 124㎡复式设计,一半生活,一半艺术
居然乐屋
2022-04-12

所在地:北京
面积:124㎡
日式侘寂混搭
设计师:崔博
本项目位于北京市天通西苑小区,户型为复式房,五房两厅两卫的布局空间,空间方正,南北通透,设计师崔博为这套作品命名为“仲夏夜之梦”。
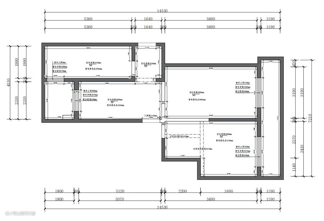
#户型对比#

一层原始平面布局

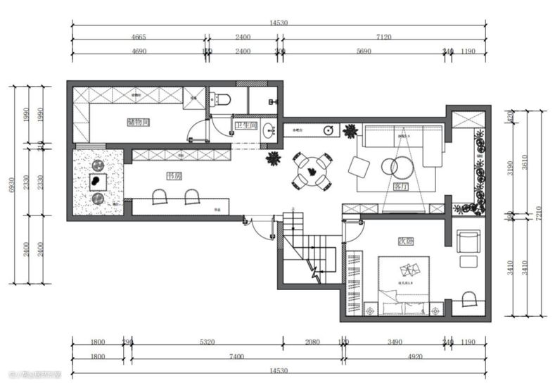
一层改造后布局

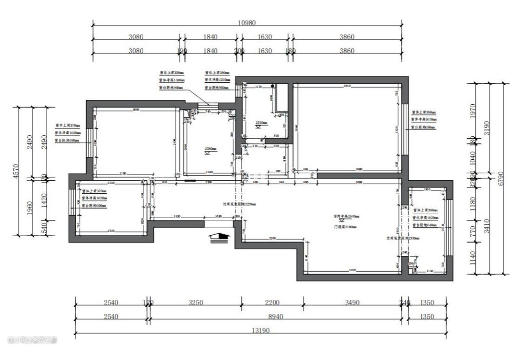
二层原始平面布局

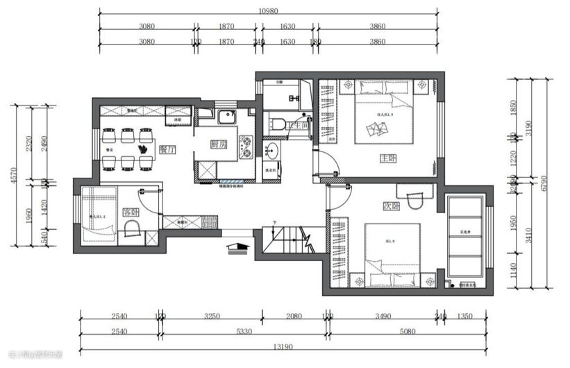
二层改造后布局
设计师崔博在本案户型平面设计上,根据屋主对舒适居住的空间要求,满足了基本的住宅功能空间配置的条件,实现动静分离、寝居分离、干湿分离,提高面积使用率的同时不失舒适居住感受。
入户

通顶的整体玄关柜,换鞋椅和全身的镜子简单的设计,好看又实用。底部镂空和LED灯带的设计,方便居家常穿的鞋子。轨道射灯、灯带的配合满足日常照明需求的需要,没有复杂的装饰也不缺空间的精致度。
客厅+阅读区


一楼客厅和阅读区,根据空间使用者自身对自然、温馨的追求,做了不同的演绎。地面采用通体大理石地砖显得十分和谐,造型独特的现代家具让空间显得时髦舒适。水吧台设计提升生活的雅致,满墙的书柜和阅读区的设计尽显空间使用者品质。
餐厨区

餐厅与半开放式厨房的设计不仅美观实用,还提高了空间的互动性,收纳、烹饪和就餐一应俱全,整体的空间风格相融合,一侧靠墙打造满墙的餐边柜储物柜,增加储物空间,将空间利用起来,满足日常的实用需求。
主卧

卧室温馨且舒适,暖白色的墙面搭配原木色木地板,大面积的木质,呈现在空间中,调节着空间居住者的情感,生活与自然相互交融。独特的灯具,暖暖的一缕灯光,随之一缕淡然的暖意,在空间流淌,倾泻出优雅与诗意。
儿童房

儿童的房间采用错上下床设计,同时满足二孩的睡眠、收纳、学习和互动的需求,两个独立的睡眠区和学习区,和中间过道的互动空间的设计,更有利于孩子的成长。圆弧的吊顶和绿色的墙面点缀使空间更加有趣生动。
关于设计师

■ 从业10年
■ 北京市建筑装饰协会室内高级设计师
中国建筑装饰协会注册高级建筑师
中国建筑装饰协会高级室内设计师
cida居然杯室内设计金奖
■ 擅长风格:
新中式/北欧/现代简约/日式/简欧等
■ 设计理念:
设计是理性的,需要先用心理学,社会学等定义空间的深层目的及功能效率以后,用艺术审 美角度为已完成的目的及功能穿上视觉的外衣。
■ 代表作品:
西山壹号院/西山林语别墅/流星花园别墅/格拉斯小镇/御汤山别墅/嘉和丽园/公园悦府/泛海国际/观湖国际等