220㎡新中式,恬静淡雅的客厅,山水画背景墙深邃悠远
华浔品味装饰遵义店
2022-04-12
今天我们来看一套清新雅致的上叠式住宅设计方案,业主是一位知名的作家,由于本人特别喜欢恬淡宁静的生活但原本的家随着城市的发展周围变得特别吵闹,业主这才购买了现在这套环境安静的住宅。
业主文学功底深厚,尤其喜爱中国传统文学和文化,向往传统文人朴素淡雅的生活环境,因此希望设计师能够使用更淡雅的色调为他打造一套心目中理想的新家,让他能在恬淡的环境中获得舒心的生活,创作出更好的作品。
基本信息
项目地址:江苏镇江
建筑面积:220㎡
建筑类型:上叠
装饰风格:新中式风格
在装修开始之前,设计师和业主就新房的装修细节和要实现的功能等问题进行了详细的沟通,在沟通过程中业主向设计师提出了如下的设计要求:
1. 业主家中有老人,要专门为老人设计一间卧室,老人年纪较大,行动不便,在设计时要格外注意这一点,打造一个能让老人更舒适的居住环境。
2. 作为一名作家,业主要求在新房中一定要给自己留一间书房供自己读书、写作使用。
3. 业主的女主人注重形象,要求在主卧室中设计一间独立的衣帽间供自己穿搭使用。
4. 业主家中有孩子,需要给孩子设计一间卧室,孩子活泼好动,在儿童房中要预留一块活动空间。
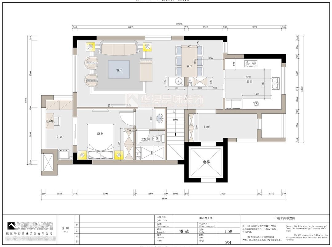
01平面布置图
在弄清楚业主一家人的设计要求和新房现场的实际情况之后,设计师经过精心地布局和设计,提出了如下的平面布局方案:


1. 正对入户门的位置砌墙做玄关,增加房屋的层次,在玄关背后设置餐厅,餐厅左侧靠近窗户的位置设置客厅,餐厅右侧设置厨房。
2. 照顾到老人行动不便的问题,将老人房设置在一楼,省去了每天上下楼的麻烦。
3. 按照设计要求,在二楼主卧室中设置了独立的衣帽间供女主人搭配服装使用。主卧右侧的儿童房靠窗的位置空出来作为孩子的活动空间使用。
4. 业主的书房设置在主卧室内,通过中间的隔断和主卧相连,这样业主工作累了随时都可以到卧室内休息,让业主生活更方便。
02客厅

为了营造出恬静雅致的文人生活空间,设计师使用白色的墙壁作为基底并搭配上原木色的装饰线条和原木色的新中式家具进行搭配,使客厅整体的色调更温和。

沙发背景墙的群山造型犹如墨色晕染而成,巍峨中透着朦胧,给人深邃悠远的感受。
正对入户门处的玄关使用白色的大理石装饰,并在中间开圆孔,搭配传统水墨画,和沙发背景墙产生互动,为房屋注入浓厚的中式文化气息。

客厅的电视背景墙中间位置同样使用了天然大理石,这里的大理石花纹犹如浓雾已经散开的群山,和正对面沙发背景墙形成对比,装饰效果极佳。
03餐厅

餐厅同样选用了一套原木色的餐桌、餐椅,并搭配了原木色线条和简洁的吊灯做装饰,再结合餐桌上的绿植装饰,打造出一个轻松、幽静的用餐环境。
餐厅右侧定制了一个吧台,吧台上设置水盆可以为餐厅、客厅就近提供水源,业主洗手或清洗水果更方便。
04主卧

主卧室的床头背景墙上同样使用了群山造型,和客厅形成呼应,保持了房屋整体氛围的统一。
不过这里的群山中加入了一点紫色,营造出太阳落山或太阳刚刚升起时的感觉,最适合用来休息、睡眠的卧室使用。
在卧室中间定制了镂空的屏风,在充当电视背景墙的同时,将卧室分隔成睡眠区和书房两个独立的区域,满足业主想要一个书房的设计要求。
书房顶部安装了一排筒灯,另外在侧面还安装了台灯一起对空间进行照明,在书房内的灯光线都为暖黄色,这些柔和的光线不会刺伤眼睛,让业主在工作或读书时更舒适。
05儿童房

儿童房的门上使用了回字纹,这是一种经典的中式传统纹样,为儿童房注入古典文化气息。
儿童活泼好动,因此不宜采用太过淡雅的装饰,为此儿童房中减少了原木色装饰,并将孩子的书桌改为白色,椅子改为亮黄色,打造出一个安静但充满活力的卧室空间。
卧室靠近窗户的位置空出来,并在地面上铺上瑜伽垫,做成活动区供孩子娱乐、活动使用。
随着人们越来越认同传统文化,市场上新中式的装修案例越来越多,设计语言也越来越丰富,舒适度也越来越高。如果您正好喜欢传统文化,那么不用有太多顾虑,新中式风格一定是最适合您的装修风格。