180平现代简约风,开放式的厨房,空间太“敞亮”了!
华浔品味装饰集团
2022-04-13
本案例业主是一位80后,对于新房的设计没有太多的要求,简简单单舒适就好,但是设计师的设计却不“简单”,整体采用现代简约风,从整体的室内布局到色调的选用都能够看到设计师的用心,整体也形成了一处集实用性和观赏性于一体的综合室内居住环境,业主很是满意。
基础信息
设计面积:180平方米
设计风格:现代简约风
所用材料:护墙板、大理石地砖、灯带、筒灯、墙砖、墙布等
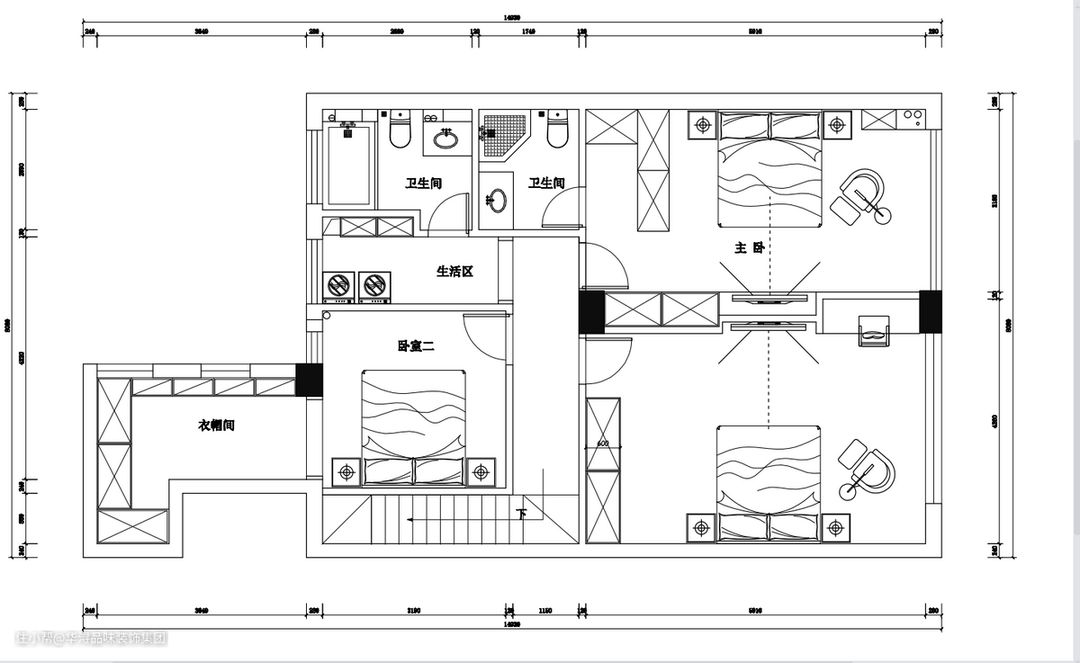
01平面布置图
一楼

客厅和开放式厨房的中间留有大面积的活动区域,能够充分满足后期亲子生活的需求。
厨房和餐厅之间设计成为洗手区,餐前餐后洗手更加方便。
靠墙打造的休闲区别看面积不是很大,但是位置比较隐蔽,位于房间一角,能够提供安静的自我冥想空间。
二楼

对称设计理念形成 主卧和次卧的布局,符合中国人的对称审美。
洗衣区和卫生间分开设计的方式能够提供更为卫生的生活需求。
02客厅

为了呈现出更加宽阔而又通透的室内环境,整体公共区域采用无主灯的配置,进而选取极简样式的筒灯作为补光光源。而客厅和楼梯间两大公共区域上方的吊顶再次做了区分设计,形成高低层次感不同的设计风格和视觉效果。
浅灰色色调护墙板做成楼梯表面,形成一种轻奢沉稳的设计基调,透明钢化玻璃打造成了楼梯扶手,颜值颇高,减轻了整体楼梯间的配重,使其看起来更显轻盈。
楼梯间下方的空间一点也没有浪费,向内掏空打造成一处储物间和多层储物格,内部配有灯带进行补光,让楼梯间仿佛化身为一处艺术长廊。

整体客厅采用木地板铺设工艺,温馨的居住感扑面而来,而细心的设计师又在木地板表面铺设了一层地毯,软软的感觉很是舒适,孩子可以在上面和宠物嬉戏打闹。
浅棕色护墙板打造而成的沙发背景墙上面有打造的竖向花纹,让墙面不显单调。一幅超大款的落地式轻奢风格挂画尽显设计元素的洒脱,给予了客厅一种无拘无束的设计感。
直排式的沙发不占空间,布艺工艺稍显柔软,加长款的设计也能够满足较大的待客需求。
为了进一步释放客厅公共活动区域的面积,茶几也选用了圆形样式,高低层的打造在搭配上镂空设计,赋予了茶几更加漂亮的外表。

电视背景墙其实是作为客厅的一处隔断,对客厅和餐厅两大功能区进行区分。
浅灰色大理石工艺大气奢华,搭配上超大块液晶显示屏尽显贵族生活气息。
电视下方美式火炉的样式搭配,也赋予了客厅温馨的感觉。
03餐厅

位于客厅一侧的餐厅颜值也毫不逊色。中央隔断处3D质感的圆形装饰图案让客厅和餐厅的层次感分明。

整体餐厅背景墙打造成为酒柜,两侧的酒柜柜门全部采用玻璃材质打造,内部均配有灯带,再加上玻璃的反射和折射功能,效果只能用华丽二字来形容。
04厨房

开放式的厨房设计是整体设计的一大亮点。
厨房同样采用无主灯的配置,减少了卫生死角产生,因为厨房毕竟是油污重地,配置主灯的话容易落灰。
超大的对外窗户能够保证厨房充足的光照,所以厨房看起来很是亮堂。
靠窗户设计成为操作区域,拐角处设计成为烹饪区,整体设计符合做菜的一系列流程,实际操作起来非常方便。
并且厨房设计了一处岛台,其他位置均采用浅灰色的装饰主色调,而岛台采用了白色的瓷砖进行打造,一黑一白形成视觉上的反差作用,而且岛台的配置也能提供更多小物品的摆放空间。
05主卧

主卧的面积非常大,所以向阳处打造了一处休闲阳台,这可是绝佳的设计,大大的落地窗能够保证光线的充足。
一侧靠墙打造成为竖向的储物格,合理增加储物空间。
一款流线型的懒人沙发不仅样式好看,也能提供更加舒适安逸的生活享受。
内侧墙面向内做着掏空,进而设计成为内线式的衣柜,超大款玻璃柜门的配置,能够更加方便看到了衣物的摆放位置,拿取更加方便,实用性能够得到保障。