190㎡中式意境,治愈感满分!【设计师李霞】
居然乐屋
2022-04-18

本案例是一套位于北京西山意境小区套内有着190㎡的设计案例,设计师李霞用设计让空间整体传达出中式、意境的设计格调。
户|型|赏|析

一层原始平面图

一层改造后平面图

二层原始平面图

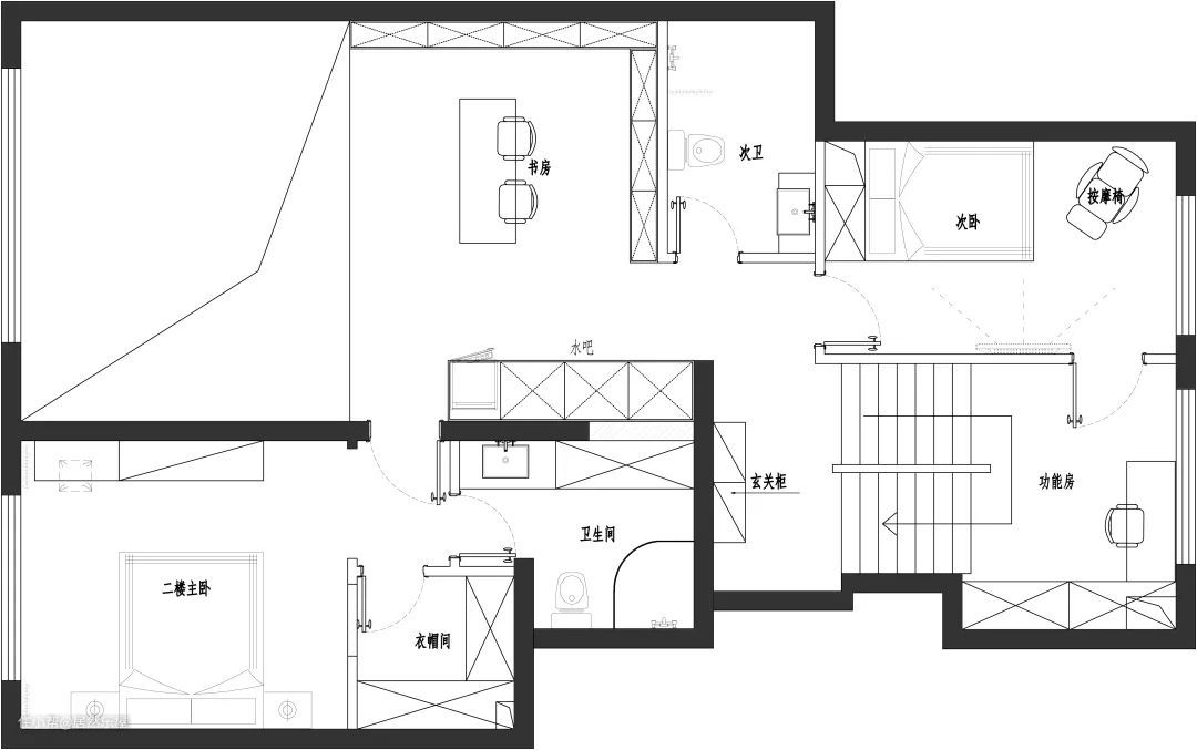
二层改造后平面图
原始户型比较方正但也存在一些缺陷,主卫空间不够气派。设计师针对这里专门做了设计调整,其他区域方正布置。一起来看看设计师对空间都做了哪些改动吧!
“玄关,中式意境”


玄关净面简约的鞋帽柜,用的是白色柜板,
加上结构的黑色线条做分割,
入户门正对的是一幅水墨画。
整体基调是简单有中式意境。
“客厅,条理清晰”

客厅的沙发组合中式风格十足,
选用了中式罗汉床,平时休闲品茶都是不错的。
沙发背景墙也是简约的,
用简单的硬装搭配中式家具,
让整个空间更有氛围而不显得杂乱。
“餐厅,禅意十足”

餐厅中式禅意十足,整体色调是浅灰色,
简单几何造型的餐桌椅后面是一排茶具的展示,
搭配上柔和的灯光,高级氛围感十足。
“主卧,舒适意境”


主卧整体氛围感不错,是浅色的暖色系搭配。
家具颜色都是温暖舒适的颜色。
床头做了暖棕色的背景处理,
加上床头白色背景和显高级的绿灰色床头柜,
让生活空间充满愉悦舒适的意境。
“起居室,放松休憩”


起居室的空间,让屋主有一个私密的休息空间,
能够让屋主在这里全然地放松。
起居室的配套也是十分完善,
电视书柜,加上休闲的沙发,
让人能在这个空间愉悦休闲。
设计风格:现代意境
套内面积:190㎡
项目地址:北京-西山意境
设|计|师|介|绍

设计总监——李霞
设计年限:18年
设计理念:以人为本,一切围绕人的生活,提高人的生活质量,提高人的身心健康,提高人的财产安全,创造人的生活品位。
荣誉奖项:
《2015年中国室内空间环境艺术大赛住宅空间优秀奖》
《2017住宅建筑类百名优秀设计师大奖》
《2019年上海金外滩设计大赛优秀奖》
《2019年中国‘营造空间’优秀设计师作品银奖》
《2020年筑巢奖获全国优秀作品奖》
代表作品:
西山艺境、世纪城、碧水云天,光大水墨,光大花园,万柳华府,新纪元,上河村,中海馥园,万全新新家园,远洋万和城,新世界丽樽、润泽公馆、玉兰湾、远洋天著、汤泉逸墅、温哥华森林、孔雀城、一千栋别墅、康桥水郡、金色漫香郡、塞纳河谷、远洋山水等