地下室的100%利用才真正让别墅增值
南京马蹄莲设计
2022-05-14

大多数业主对别墅的选购,主要会考虑地理位置、小区环境、庭院花园、建筑风格等主要条件,但满足上述条件的别墅大多逃不脱建筑高度的限制(为了维系城市环境等因素,通常地上高度被控制在2~3层),为了让别墅房型的使用率更高,现今大多别墅会往下加盖1~2层地下室。虽然面积大了,却也成了不少业主对别墅望而却步的因素。地下室除了有令人头大的采光差、潮湿阴暗等缺陷外,最苦恼的还是不知道该如何利用。的确,以地下室的条件而言,对于大多人可能仅是个硕大的储藏室。
那么,别墅地下室到底该如何利用,才能让别墅的使用价值翻番,接下来马蹄莲空间设计用3个不同角度的“地下室改造实景作品”带你找到答案。




负2层 改造前后


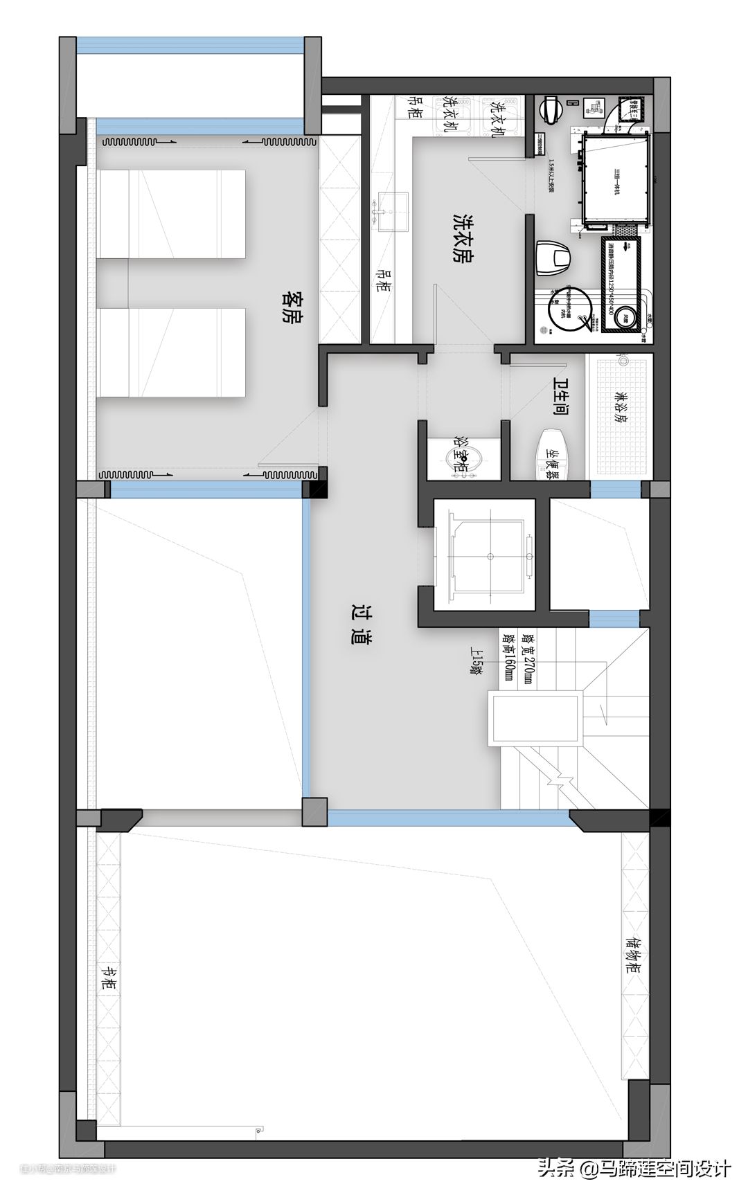
负1层 改造前后
业主的诉求
这是一所容纳了三代人共同生活的住宅,那些有关理想生活的终极期盼和想象,在这里都得以实现。在闹市的动与静之间,业主希望这所住宅能够让家人们舒适地静坐其间,享受“父母堂上坐,儿女绕膝过。 尽享天伦乐,幸福日子过”的美好。
使用动线分析
接收到业主需求后,我们首先对房屋合理的生活动线进行梳理。这栋800㎡合院别墅共计4层,分别为地下两层+地上两层,需容纳屋主夫妇、儿子一家、女儿一家,大约10口人。为达到多人口生活的舒适体验,我们主要围绕:1、地上地下动静分离 2、公共私密尺度合理两个角度来规划生活动线,地下空间为家庭活动区、餐厨茶室区、地上空间为家庭起居区,由下而上的动线让成员们彼此保持亲密又安全的距离。今天我们主要讨论地下空间:负2层因连接地下车库,是业主日常归家的主入口,在门厅鞋帽间换下外衣鞋帽后,孩子们径直在负2层进行学习、练琴、娱乐等,家长则行至楼负1层做饭,做完后叫孩子们上楼洗手吃饭,吃完饭便至地上空间洗漱休憩。家里若来亲朋好友,吃饭、娱乐、喝茶等活动也皆在地下空间完成。
地下室改造分析
原始地下空间的结构仅有少量承重框架,为实现地下空间舒适的大家庭生活,我们对地下室存在的问题和结构进行解决规划:
一
问题:该别墅户型为“合院别墅”,高墙内的院落(天井)下沉至负1层,颇具古宅的韵味。我们安排餐厨区域于负1层时,便是考虑到该层自带采光、通风的天然属性,茶余饭后出门即庭院。与此同时也带来了些问题,由于位处地下,高墙导致太阳光照难以覆盖、空气流通不足,地下空间在湿度、温度和空气质量方面严重不足。
方案:引发:1. 空气湿度大;2. 新风供应不足;3. 二氧化碳浓度高;4. 氡浓度高;5. 微生物污染比地上严重等等,对此设计师通过:1、在墙体内置入“三防系统”(防水、防潮、防凝露),解决潮湿、结露、霉变的问题;2、在墙体内置入“三恒系统”(恒温、恒湿、恒氧),日常在屋内不需要开窗,三恒系统便可确保空气的流通。
二
问题:由于地下空间涉及厨房、汗蒸房等功能使用,用水量较大,让本令人苦恼的地下排水“雪上加霜”,若处理不好非常容易污物堵塞、发霉生菌。
方案:针对排水问题,我们根据用水量、用水频率对地下排水系统进行优化设计:1、因为地下空间的水使用是分散的,首先构建集水坑对水进行收集,这样可以对水进行集中处理;2、通过专业进口设备把水输送到室外污水检查井内,通过污水检查井流向市政管网。
三
问题:解决了上述问题,地下空间夏季温度低于地上,冬季则高于地上的特性,还是基本满足人体舒适度要求的。因地下原始结构仅分布少量承重框架,如何实现我们规划中让地下空间的囊括家人们所有日常活动,根据不同的功能需求、使用频率、行为动线规划出各个面积的功能空间是本次设计的重中之重。
方案:(负2层)为有效维持门厅整洁度,多人口之家对鞋帽间的需求相当大。家人们从负2层入户后,右侧6.2㎡隐藏鞋帽间足够收纳家人们的当季用鞋,以及亲朋好友的临时鞋物摆放。由门厅入室,7.2㎡洗衣房的设计,可以换下一天的衣物进行清洗,换上居家服进入活动区写作业、练琴、看电影等(该区域使用容积、频率和人数较多,面积设有64㎡),等待大人们做好饭菜。同时在负2层还设有汗蒸房(19.4㎡)、推拿房(9.1㎡)等功能,以及两间便房(9.3㎡、4.8㎡)用作简单的休憩,按不同年龄阶段家人们的需求和喜好,一应俱全。
四
问题:按由下而上的行为动线,负2楼解决了大部分活动需求,负1层则需要解决餐厨功能,以及家人们都爱的茶室。
方案:(负1层)饮茶这件事儿对中国人而言,不仅仅为了喝茶,规划中59.5㎡的茶室空间,左右两侧临窗,通风和采光皆棒,也是家人朋友坐在一起谈心闲聊的佳地。而大家庭的厨房更需要匹配不同人的喜好,40㎡的厨房内包含中厨、西厨、烘焙等不同功能。餐厅30㎡摆放足够12人落座的圆桌,符合中国式大家庭用餐饮食的行为喜好,当家里来了亲朋好友,饭后即可在屏风后侧19㎡的棋牌室娱乐,玩累了也可在一侧14.3㎡的房间休憩。各个空间面积规划、物品选用皆有针对性地围绕大家庭的行为喜好而设定。





负二层 入户视角
图①视角为门厅换鞋凳,图②-⑤展示的是支撑起大宅气场的22.6㎡玄关空间,符合东方的审美意趣。充足的面积日常使用起来非常宽绰,也足够容纳过年过节迎来送往的亲朋好友。


负二层 走廊&楼梯
图①是负2层走廊,经由“三防”和“三恒”处理过的空间,我们可以大胆地使用木饰面、墙布。图②为楼梯踏步,大量使用山水元素呼应居住者向往的隐居生活。



负二层 入户视角
图①-③为连接上下的旋转楼梯,既作为重要的功能使用,也是整体空间重要的艺术装置,大理石和木材的碰撞使用,刚柔结合,体现不同材质彼此间的包容,也寓意大家庭的融合。图④是从负2层行至负1层的初视角。




负一层 茶室
图①-⑤是位于负1层的茶室空间,图中可直观感受到茶座两侧的饱满采光。



负一层 餐厅
图①-③是餐厅空间,“圆形”的大量使用意味“团圆”,忙碌一天后的家人,围坐在摆满家常菜的餐桌边,便是全家对幸福的终极念想。图④是餐厅棋牌室。

负一层 厨房
该图为厨房,大面积一墙到顶收纳柜足够摆放日常食物,中岛台的便于摆放备菜、作为烘焙操作台或用于解决一顿简餐。




负2层 改造前后


负1层 改造前后
业主的诉求
业主夫妇除了是生活中的亲密伴侣,也是工作上的合作伙伴。对于这所住宅,他们希望有个舒适的区域:1、便于处理简单的工作事宜,或进行简易的朋客接待。2、进行一些娱乐活动,或进行健身。3、可以将生活和工作、活动有所区分。4、整体是简约宁静、自然通透的。
使用动线分析
接收到业主需求后,我们也是首先对房屋合理的生活动线进行梳理。这栋460㎡的联排别墅共计5层,因负二层连接地下车库,通常业主回家的动线是从负二层开始的(停好车后直接从负二层门厅进入),由此经我们规划的合理生活动线是楼层越高生活越私密,考虑到业主需要一个便于处理工作的区域并涉及到简易的接待事宜,负二层区域是全屋最具公共属性的空间,是最适宜安置办公功能的空间。
地下室改造分析
地下空间分为独立的负二层和负一层,层高2.57m左右,行至室内体感阴凉潮湿,光照和通风较弱的环境内感受较压抑。经上述生活动线的分析结果为出发点,若想在负二层实现舒适的办公活动区,我们对地下室结构进行剖析:
一
问题:原始负二层楼梯位处建筑东南角,与上层楼梯错位(负一层往上的楼梯位处建筑中部),因此负二层结构被分割得较碎,对我们进行改动的限制也较大。
方案:考虑到负二层用于办公/接待,需要一个宽敞的区域才更舒适,所以我们决定将负二层楼梯位置改至建筑中部,与上层楼梯形成垂直的整体。原楼梯拆除,我们将负二、负一层板打通形成5m多的挑高空间。
二
问题:因该建筑是联排别墅的西边户,原建筑西外侧是一个由一层通往负二层的下沉式天井,虽三面环窗,但因位处地下且天井宽度较窄,从地下室内体验来看,这样的建筑布局并没有将采光最大化利用,导致体感昏暗压抑。
方案:为了实现地下空间的最大使用率和提升舒适度,我们考虑到西侧位置有充裕的采光,如果能够排除下沉式布局的影响,便可以同时解决布局和光线的问题。于是大胆地将下沉式天井打通,利用玻璃将光线引入地下,一来解决采光的问题,将自然的气息带入闭塞的空间,二来让扩充了空间使用率,行动起来更加宽敞。
三
问题:解决了地下空间的高度、采光、通风、面积扩充等功能需求还远远不够,业主希望这个空间可以实现自然通透之感。
方案:为了在空间中增添更多“自然感”,我们将天井顶部玻璃改造为鱼池,当阳光照下来,水波纹和鱼的影子在空间中自由流动,映在墙上,如同天然形成的动态水墨画,与室内融为一体,成为独一无二的自然点缀。偶尔在天井下方放置乒乓球桌打球或练瑜伽,美哉!
四
问题:因负二层的挑空改造,导致负一层面积有所缩减,如何妥善利用成为我们需要考虑的问题。
方案:除了业主夫妇,家中还有一双女儿、一位老人(偶尔来住)和两位居家阿姨。我们规划的合理生活动线是楼层越高生活越私密,负一楼是承上启下的空间位置,为了便于阿姨工作,我们便将负一楼安置为阿姨生活区。



负二层 入户视角
图①视角为原始楼梯所在位置,图②展示的是经设计师改造后的楼梯位置。由图可见,改造后的楼梯与上层形成一体,行走动线更加合理,其次空间视角也更加完整开阔。



负二层 办公&接待区域
图①、图②为打通后的挑高空间,东西两面墙体皆为一墙到顶的收纳柜体。图③、图④是办公&接待环境。




负二层 室内天井视角
图①横梁的右侧原为室外下沉天井,扩充进来后形成“大空间的构建感”。图②、图③为天井的玻璃天窗感受,采光的充足照射完全打破了身处地下室的感受。




负二层 楼梯视角
上图为楼梯,迈步于此可明显感受到室内天井带来的天然优势:楼梯走道完全没有地下的闭塞阴暗。另外,我们在地下室墙体内置入三恒系统(恒温、恒湿、恒氧),日常在屋内不需要开窗,三恒系统便可确保空气的流通。




负一层 室内天井视角
图①-③为负一层天井视角,改造后的挑高格局和室内天井形成地下阳光房,天井下方栽植的鸡蛋花树和鱼奇妙地共处一室,更是将自然感受拉满,立于树旁,有如沉浸在水底般的祥和宁静。图④视角房间为居家阿姨的卧室。




负1层 改造前后
业主的诉求
这是一幢800㎡的独栋别墅,业主夫妇当初因它绝佳的地理位置而购入。别墅位处小区沿湖,隔湖望去是一片山景,并拥有一个大花园,业主希望能最大程度地发挥地理环境的优势,让家人们身处家中也能充分享受绝佳的自然体验。
使用动线分析
接收到业主需求后,我们对别墅实景进行勘察,发现虽为小区沿湖、山景旖旎的独栋,但室内布局令人感到闭塞,和室外的关联性也很薄弱。为实现业主理想的生活体验,我们首先对不合理的房屋动线进行重新梳理:1、将原始紧邻道路的入户挪至院内,打开“西入户”,增加家人与自然景观的黏性;2、原本南侧楼梯与原始入户挨着,令室内外太过独立且闭塞,入户被移到西侧后,我们将楼梯位置挪至了建筑的北侧,一来入户门厅与楼梯的距离被拉长,大宅的体验感也被增强,二来利用外拓玻璃+旋转楼梯的形式,上下楼梯皆可纵观美景,也给整栋建筑带来更多的采光;3、将院子和地下室入口扩大,将餐厨区域安排至地下,工作晚归的业主不用通过室内,直接穿过花园即可进入地下空间用餐。
地下室改造分析
地下1层空间面积250㎡,业主常有朋友来家中吃饭,对餐厨的需求也比较高,我们计划将地下空间规划为可以容纳多人就餐的厨房+餐厅休闲空间,并对地下室存在的问题和结构进行解决规划:
一
问题:原始地下空间高度是2.5m,从花园进入室内有明显的“压迫”感,若想在地下空间实现舒适的休闲餐饮,在高度的体验上会有明显不适。
方案:考虑一层空间被承重架构分为了左右两个区域,并有4个台阶的高度差,而4个台阶高度对居家生活而言多有不便,所以我们在不影响承重结构的前提下减掉2个台阶,将一层地面(负一层楼板)抬高约0.35m,地下空间的高度拓高至2.85m,既减少了一层台阶的踏步数,也让地下空间的高度体感更加宽绰。
二
问题:花园和地下室连接的下沉式入口,规划中是将被高频使用的,而原结构的该入口宽度非常紧凑,仅容纳单人通过,使用感受明显不安逸。
方案:因此,我们对原下沉式入口进行了扩充,将其设计为与花园紧密相连的下沉式水景庭院,并将该区域的地下室外墙玻璃扩大,一来面积变大,入口更加实用;二来增加地下室与花园的连接,既增加了采光,也便于景观的引入。
三
问题:地下空间250㎡的面积单用作餐区是偏大的,而业主会常在家中招待亲朋好友,我们对该空间进行了更加明确且细致的区域划分。
方案:为操作人(通常是居家阿姨)和用餐人彼此更加恰当的体验,在此我们借鉴酒店的区域规划,将用餐区和操作区进行“动静分离",在西侧和南侧隔出连通空间,容纳厨房(以中厨为主)、小型就餐区(便于阿姨吃饭以及日常家人的简餐)、食物储藏间、卫生间、休息室,在该区域内居家阿姨可以完成所有的操作后将食物供至主餐区食用。考虑到偶有制作西餐的需求,因油烟不大,便将西厨岛台设在主餐区内。业主平日爱饮茶,亲朋好友来临需要频繁使用茶室,该空间我们也安排在地下空间,并紧邻下沉式庭院,便于喝茶赏景。
四
问题:除了解决地下室问题的”三恒“和”三防“系统外,采光也决定是地下空间舒适度的决定性因素。
方案:扩充了下沉式庭院后,结合该区域地下室外墙大型玻璃窗,可以给地下空间提供很大程度的采光。另外在上述中我们提到“外拓玻璃+旋转楼梯”,玻璃贯穿整栋建筑,也自然将采光带进了地下空间。






旋转楼梯
图①-②是旋转楼梯的整体视角,楼梯在整栋建筑中不仅提供了充足的视野和采光,也是重要的艺术装置。图③-⑤为地下空间的楼梯入口,可以见其为地下提供的光线。

负一层 楼梯旁侧
图片为负一层楼梯扶手旁,因左侧层板上移了0.35m,由图可见承重架构的左右两侧形成了一定的高度差,这里我们采用弧形装饰工艺,来弱化凸显出来的承重横梁在视觉上的阻隔。


负一层 西厨
图①-②是西厨区域,大面积一墙到顶的柜体方便收纳常用的餐具、食物、电器等等,大面积的操作岛台在宴请时也便于摆放一些器皿、备菜等。

负一层 主餐区
图①-②为主餐区域,足够舒展的空间可以根据用餐人数的不同切换不同大小的圆形桌面,右侧玻璃(图①右侧黑色部分为玻璃区域),便于用餐的同时观赏美景。

马蹄莲空间设计(MATILIAN) 引领高端私宅设计、高品质生活方式营造的设计公司品牌,坚持用多元化的创意整合服务,探索个性化、自由化的美学标签,成就人与空间的和谐与美好关系。