300平欧美现代风三居室设计,初见便怦然心动!
两手硬装饰丨集团总部
2022-05-18
本案亮点:房子的每一处空间都没有浪费,经过重新组合我们赋予了居者新的生活方式。天马行空的设计线条跳脱出了传统的设计框架,以一种简单的轮廓构成了强烈的视觉冲击。在这个什么都讲究“快”的时代,我们很高兴可以慢下来,静静的等待着每一套实景完美落地。
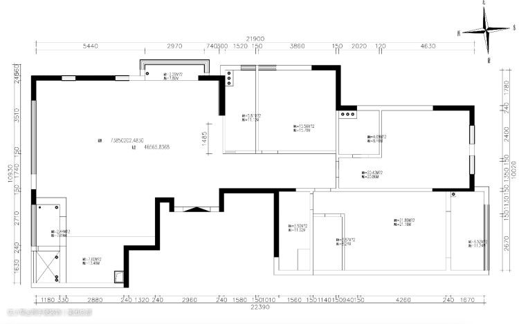
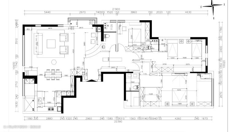
户型图

原始户型分析: 1,原来的的装修是比较陈旧了,客餐厅的布局杂乱并且储物空间也不足; 2,两个靠东的卧室的利用率不足; 3,过道较长,利用率不高造成空间上的很多浪费

改造后方案: 1,餐厅借用原始客厅,做出了餐边柜,阳台也和餐厅打通,增加了水吧台,扩充整个厨房收纳; 2,厨房门的形式,采用隐藏式,不进行任何烹饪的时候可以完全和餐厅贯通,包括进出厨房时也不会受任何门的限制; 3,主卧内设计了衣帽间,先经过衣帽间再进入主人的卧室,是一个套间的设计,每个空间的功能都是独立且不受打扰的。
玄关



玄关改造前



改造翻新后: 玄关处的柜子和房屋大门是一样的颜色也是采用的石膏板线条,右手边是一排到顶的柜子,柜门是采用整体的镜子,下面留空150mm的高度方便放一些常换鞋,这样在家门口换鞋方便简洁!#玄关#鞋柜

在鞋柜中间镂空了500mm高度,并且做了一排挂钩,用来放钥匙和口罩,都是很不错的呢
客厅





客厅改造前


改造翻新后: 整个客厅与书房,餐厅,厨房全部打通,客餐厨一体化。 开放式书房全部都拥有,真正把空间的通透感做到极致。 无主灯的设计让屋内光线均匀,空间显大的元素一个也没少。

窝在舒适的布艺沙发,可以慵懒的享受一家人在一起的时光!

客厅顶面和墙面利用石膏线条去模糊形象,不拘格式,凸显背景是再好不过的。所以,在客厅的设计上,设计师没有太多的装饰堆砌,而是用简单的线条、材质和色彩展现了一种全新的生活模式。是对业主足够了解后,构筑的个性化专属空间。虽然简化了更多的视觉接触点,但是,却成就了空间的品质和高度。

简洁,开阔明亮的客厅在无主灯的层次下,更加干净温馨。通铺木地板在视觉上有极好的延申效果。

整个客厅并没有传统的电视背景墙,沙发对面便是一面大的落地窗,视野宽阔,屋主可以和朋友一起边喝着下午茶,一边休憩享受午后的阳光,也可以下班后和家人一起悠闲的在窗边看着夜晚的繁华和星空~



开放式书房的好处,就是从客厅可以一下子望向书房,增加区域的互动,光线流动也超nice~ 书房的墙面背景是设计了三个拱门,每个拱门都有两排木板,放着房主人喜欢和收藏的东西,这样组合搭配起来也是一道客厅的亮丽风景线呢!


所有一切物品都精挑细选,都是自己喜欢的样子!
厨房



装修前


厨房门的形式,采用隐藏式,不进行任何烹饪的时候可以完全和餐厅贯通,包括进出厨房时也不会受任何门的限制。 u型厨房动线,不仅视线开阔,而且储物空间增加了一倍。



整个空间化繁为简,摒弃多余的色彩和装饰,厨房的吊柜和地柜,搭配干净明亮的白色,让简约诠释家的温度,搭配浅色的地砖,整个厨房颜值满分💯

白色哑光橱柜时的空间更加明亮。灯光给橱柜带来不同的氛围感。


在厨房的外部的设计了一个中厨的位置,并且兼顾餐厅的餐边柜,也大大增加了储物功能,上下柜子也是白色搭配,在开放式的客餐厅中也不会显得突兀,这样搭配既实用又好看。
餐厅

餐厅借用原始客厅,做出了餐边柜,阳台也和餐厅打通,增加了水吧台,扩充整个厨房收纳,由于业主夫妇都特别热情好客,经常邀请好友来家中聚餐。所以,厨房和餐厅的面积一定要足够大,方便准备餐食。

餐桌的搭配是长凳➕椅子,都是用的纯木制,椅子靠背是巴黎塔的造型、长凳也是中间凹两边突的选配,在整个开放式的客餐厅中反而是一道风景,搭配起来也是好看极了!
卫生间

卫浴间以一面玻璃实现干湿分离的目的。湿区地面采用灰色防滑地砖,收纳则集中在浴室柜内,整体简洁、利落,增加壁龛来辅助收纳,使用起来更加方便!

卫生间洗台采用了白+黑的搭配一体盆设计,深色竖纹搭配金属色把手简洁大方;圆形镜面柜门,既可以用来作为化妆镜也可以用来储物,好看实用!
卧室


主卧内设计了衣帽间,先经过衣帽间再进入主人的卧室,是一个套间的设计,每个空间的功能都是独立且不受打扰的。


拱门的设计好看又能搭配整个卧室,并且三面到顶的衣柜大大增加了卧室的储物功能,整体白色柜子定制,颜值实用满分!


主卧里单独设计了一个休闲的地方,一边是可移动的写字桌,一边是可以泡澡的浴缸。落地的阳台窗户不仅光线好风景也好!


深褐色的背景搭配一个暖色的壁挂灯,在这里泡澡也是一件十分享受的事情!
书房


小的卧室暂时没有居住功能,所以只摆了一张床,留更多的空间给以后定义。
主卧卫生间


主卧卫生间实在了干湿分离,淋浴区与洗手台区域独立隔开


智能马桶搭配地面小花砖,整个卫生间颜值满分💯


特色的抽纸小恐龙,搭配好看,特意还去问了业主链接呢
次卧


卧室床头背景墙用分色将石膏线条镶嵌其中,整体犹如水洗一般,精致而质感强烈。细节、氛围都做到了精准的把控,不破不立,给人真正意想不到的惊喜。


儿童房是双床设计,同样也是双人书桌,书桌上方是格子展示的是孩子的手写画和成长照片,格子上方是带柜门的收纳柜,可以在上方收纳一些不常用的东西;靠近书桌的是一排四开门的书柜,收集着孩子喜欢的书籍,高低桌的设计师,也方便孩子直接在上面看书,享受书籍带来的乐趣!


儿童房也是延续客厅的设计手法,无主灯设计+石膏线条,单单顶面就是一道亮丽的风景线。 改造后的儿童要比之前的卧室打上许多,所以采用了双床设计,足够的空间也让双床没那么拥挤。


排列整齐的插座、内嵌的灯带颜值满分
次卧卫生间


卫生间是选用的地砖上墙,并且采用了干湿分离,洗手台兼化妆台,整体颜值在线!


湿区地面采用灰色防滑地砖,整体简洁、利落,增加壁龛来辅助收纳,使用起来更加方便!吊顶内藏灯带做法让淋浴区更加明亮
阳台


阳台没有进行封窗,只是加固了防盗措施!蓝色的柜子➕滚筒洗衣机的结合搭配灰白交接的阳台地砖,整体也是很好看的!


阳台的另一边是防止杂物的,也多加了一台滚筒洗衣机以防止日常不够使用,并且做了百叶帘作为遮挡!
花絮

附上设计师和业主一家的合影,业主对我们设计师李工很满意! 设计师李工说:房子的每一处空间都没有浪费,经过重新组合我们赋予了居者新的生活方式。天马行空的设计线条跳脱出了传统的设计框架,以一种简单的轮廓构成了强烈的视觉冲击。在这个什么都讲究“快”的时代,我们很高兴可以慢下来,静静的等待着每一套实景完美落地。