180㎡的现代极简风,高级暖灰的大客厅惊喜不断
华浔品味装饰集团
2022-05-20
这一期我们一起来看一套现代简约风的复式设计方案,业主是一位上市公司股东,最近在一个风景宜人的小区购买了这套住宅,希望能拥有一个更好的居住环境与生活环境。
因为在平时的工作有些繁忙有的时候压力也很大,所以业主希望能有一个轻松、简单的居住环境,让他能卸下身体的疲惫,尽情放松自己。另外,作为对生活有很高追求的人,业主还希望新房设计时能更加注重细节,为自己和家人提供更精致、更高端的生活环境。
基本信息
项目地址:泉州
项目面积:180平方米
建筑类型:平层
设计风格:现代极简风
设计理念:将实用性与创意美学相结合,打造高品质生活空间。
装饰材料:岩板、金属线条、实木地板、木纹饰面板、黑色地砖、米色硬包等
在开始装修之前,设计师详细询问了业主的要求,并将这些要求整理如下:
- 业主希望在现代家居简约风格基础上,整体简约而不简单,希望整体尤其是居住空间简单舒适,现代风格在每一处细节都能体现。
- 业主希望空间整体构造以实用性为主,让我们设计师以实用性与创意美学相结合,以实用性为主规划出简化的居室。
根据业主的需求以及新房现场的实际情况,做出了如下的平面设计方案:
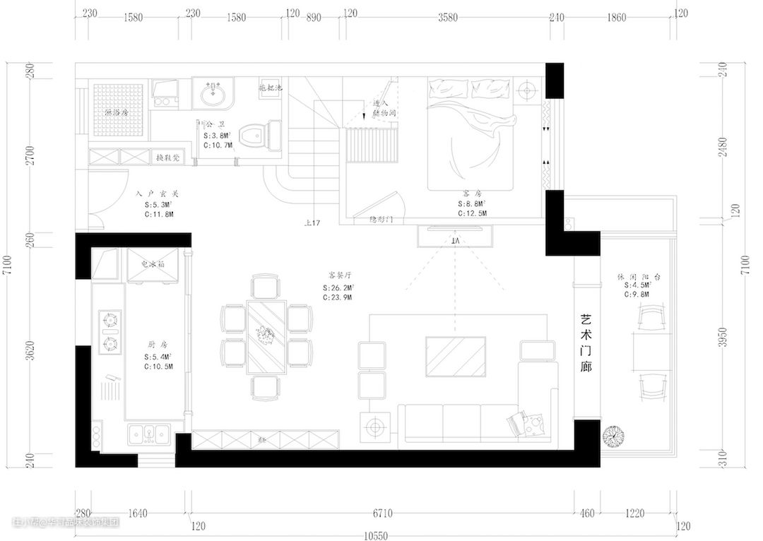
一层平面布置图

一楼整体居室突出功能性与实用性,厨房的紧凑,客厅的宽阔,客房与公共卫生间的互搭等。
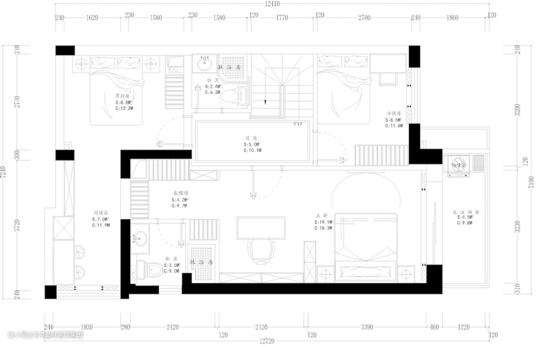
二层平面布置图

玄关

入户玄关既有私密性又有神秘感的区域,我们设计师做了入户鞋柜,台面隐藏灯带,方便随手放置一些东西。
下面挑空出也暗藏了灯带这样是为了方便业主进出换鞋使用。鞋凳也是使用了储物凳的形式方便收纳。
客厅


在客厅的整体打造中,灰色的墙面为基础色调,墙面则使用硬包与竖向的金属线条搭配,结合具有神秘艺术感的透视装饰画,打破视线阻隔,丰富层次感的同时,亦加强了各区的材质呼应与联结。
客厅天花板采用了无主灯设计,使用了射灯与筒灯相互补照,让室内光源充足。

前后背景墙,在不同材质与线条的搭配组合中,传递着平衡互补的艺术美感。
整体中最有特色的装配就是很有特色的酒柜装饰,加高的玻璃柜与封闭门搭配的酒柜装饰,在客餐厅中开敞互联则传达出微妙的视觉张力。

如果想提升高级感,那硬装底色一定是越少越好,客厅的背景墙灰和影视墙电视机内嵌的黑色,以及客厅硬装所有的色彩,都是统一的,每一处都是精简而干练,没有做很刻意的修饰,只是增加了一点精致感。
阳台

阳台的装饰也很简单,原木色的皮质沙发,大理石面茶几在阳台这个空间里既不张扬又不低调,简单而又有实用性。
和客厅的超长灰色皮质沙发形成鲜明的对比,整个客厅的软装以简约大气为主 ,也是一个很宽敞适合待客的区域,不会显得拥挤。
客餐厅

客厅、餐厅、阳台之间空间相互连通,没有做任何间隔,这样设计能让空间显得更宽阔,更容易营造轻松的空间氛围。

餐桌使用的是简单实用的大理石左面,定制的亚克力餐椅以橙色和灰色做了搭配色系。
楼梯

楼梯整体包边以黑色踢脚线延伸的形态充当踏步的前奏,在娴熟的结构处理中演绎场域的力量与美感。
楼梯口整体简单而又时尚,圆形的大吊灯垂坠而下与墙面的海边日落交相辉映形成画中独有的景色。
卧室

主卧室使用整体墙面只做了简单的刷白处理,床头的背景墙以天蓝色装饰,加上米色软包床头,结合上原木色的地板、暖黄色的光源,打造出一个温馨、柔和、放松的休息空间。
主卧室的床周围铺上了一张绒面地毯,业主在上下床的时候,脚底下都很柔软舒适,这能给人安全、放松的心理暗示,有助于人快速放松,更快地进入睡眠状态。床头柜的也是简约风格的原木色系,造型奇异的花瓶配上绿植花束让这里增添了一份温馨之感。
家居装修风格的美妙,每一处硬装与软装的搭配总有不一样的惊喜。这样的现代简约风,是否也是您喜爱的呢?更多的精彩也期待您的参与,给您的家带来不一样的色彩。