140㎡原木风改造房,多功能客餐厅+中西厨设计,舒适感满满
珠海佳鸿装饰
2022-05-29
业主需求
屋主是对年轻的夫妻,有一个小baby,父母偶尔会过来一起住。因为是潮玩工作者,所以在摆设和挂画上会有更多自己的想法,希望在有限的预算内能够保证良好的生活品质。
宽敞舒适的空间,随时随地都可以放空自己,这对于九零后的男女主人来说就是理想的生活状态。
改造策略

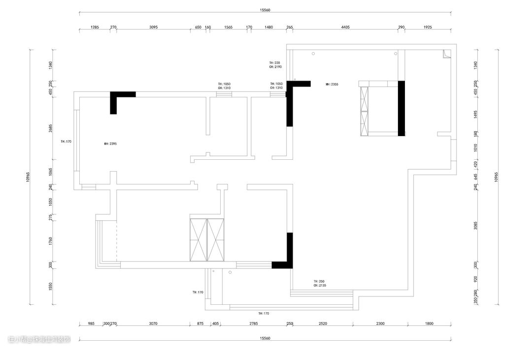
●原始结构图

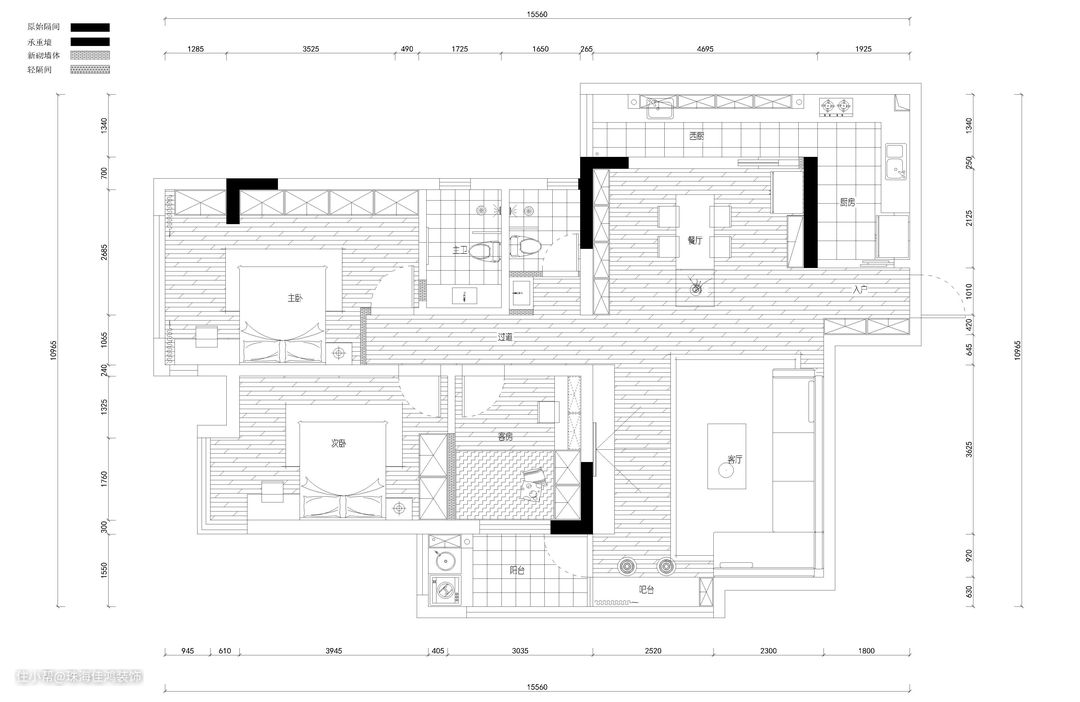
●设计方案图
1. 房子不算老,最开始是准备局部改造,由于局改牵涉的很多细节问题,选择全改成为了首选。全改翻新主要是扩大了厨房,有中西厨两个空间,满足一家人多样的饮食喜好。
2. 主卧和主卫也做了相对应的扩大,增加功能性的体验。
效果呈现
入户

一进门便能感知到家的温暖,配合着柔和的灯光,原木鞋柜中间留空部分呈现出一个凸字形:收纳格、换鞋凳、穿衣镜,恰到好处的布置,颜值高又实用。
中厨
拆掉原来的墙面后,新的中西结合式厨房通透又明亮。


中厨采用L型布局,从右到左,储存、备菜、清洗、切菜、烹饪一气呵成。墙面大面积贴砖,灰色的纹理自然独特,柔光表面易清洁好打理。
西厨


屋主是年轻的90后,平时与潮流文化接触较多,对中西不同的生活方式更能保持兼容并蓄的态度。
西厨的设置满足了不同生活场景的需要,面包机、智能电饭煲等电器更是为自然风的厨房增添了一点的现代感。
客厅

开放式一体化设计的客餐厅,有意无意的划分着区域,将天然材料融入家中,感受温和柔软的居家氛围。


米色家居,朴实而自然,素雅而简单,是最贴近生活的颜色。搭配上一抹草绿色,仿佛所有的疲惫都找到了出口。
将潮玩Kaws公仔布置在了布艺沙发旁,彰显现代时尚气息,也更贴合屋主的职业属性。


140寸的大面积显示屏,搭配长条电视柜,带来自然舒适的观影体验。

高高的吧台承载的是生活的小趣味和情调,也是最接近这个城市风景的地方,一家人可以惬意享受着下午舒适的阳光。
餐厅

同样是餐厅,心情却很不同,以前的厨房总是只有妈妈一个人忙活。
现在的餐厅开阔有充沛的光线,中岛还常常变成亲朋好友围绕的地方,可以和一旁准备食物的人聊天,或是帮忙备好餐具。

一整排的餐边柜加斗柜,储物功能强大。方形木质餐桌、圆弧餐椅,搭配线性吊灯,限定出温馨实用的用餐区。
过道

从客餐厅看向过道,通过拱门的互相连通和开放,整体空间更加有趣和谐。
一幅芭蕉叶的挂画和嫩绿色的背景让人仿佛置身于热带雨林。
公卫

洗漱区外移到过道,采用半墙与过道分隔。暖色调的米色+花纹壁纸打造的洗漱空间,整体色调柔和,充满着夏日的青春气息。

长虹玻璃门的隔断,透光不透人。淋浴区采用哑光大理石地砖,贴心防滑。
主卧&主卫

主卧的床头背景延续了客厅的米色和草绿色涂料,结合原木烤漆墙板,再搭配1.8米的大床卧,让空间更加自然简约。

衣帽区并没有浪费掉过道的空间,巧妙融合且梳妆台空间不会被缩小,动线与功能便更为流畅。
超大的储物空间和充足的展示柜,把所有的衣服物品安排的明明白白。

精致优雅的梳妆台,也是女主人蜕变的小天地,对生活的每一天都情深义重。

主卫充分考虑了舒适度,智能马桶,电热毛巾架、线性壁灯一个都不少,充足的台面空间、墙面木搁架,让卫生间的物品放置也能随心所欲。
悬挂的浴室柜,高颜值复古台上盆,都可以减少卫生间的死角。
次卧

雾霾蓝乳胶漆+原木地板,简单的硬装加上一体式榻榻米,犹如大海一般静谧深邃,拥有宁静的力量,使偶尔小住的爸妈也能沉稳地进入睡眠状态。平日里可做书房使用。
儿童房

儿童房延续了暖色调的家居风格,并融入了男孩子最爱的天蓝色。
搭配小动物造型的床头及墙面色彩挂画,让整体空间可爱灵动,定制半开放衣帽柜满足日常收纳。

木质书桌椅、堆砌的小方块软垫做成休闲区,方便孩子阅读和休息玩耍。儿童房简化设计,抛去繁复简约干净,让小朋友可以有独处的安静空间。