550㎡奶油侘寂风,在奶油色之间拥抱生活浪漫家
梵简原创设计
2022-05-29

Project address丨项目地址
九里晴川联排
Project area丨项目面积
550㎡
Design style丨设计风格
奶油侘寂风
Main case design丨主案设计组
梵简设计雨浩项目组
业主需求
本案是一个三口之家的居住空间,老人偶尔来居住,五层楼的空间能够充分满足业主一家的需求,原本做了设计,但在土建阶段便出现问题,辗转反侧,业主联系到我们。对于家他们十分在意地下空间的通风、采光,以及每个空间的互动性,表现对美好生活的追求与体验。

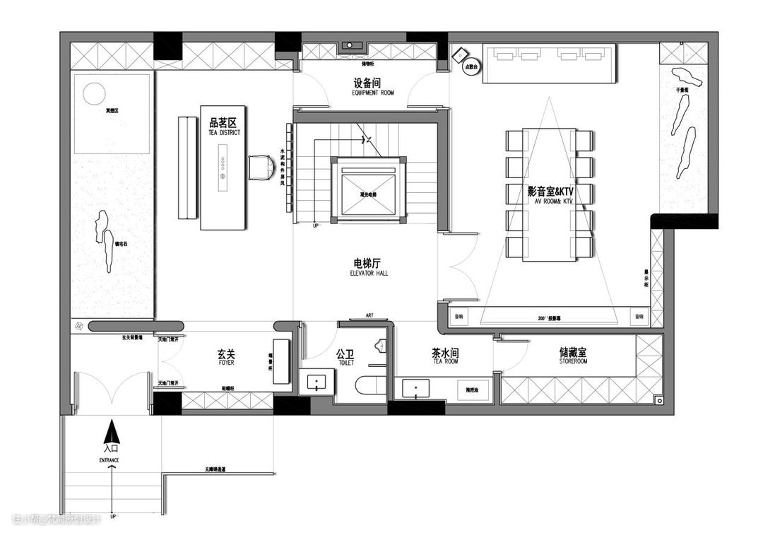
-2楼公共区域布置了门厅、茶室、电梯厅、会客厅、多功能房、卫生间及设备间,设备间采用贯通设计,串联前厅与后厅,既便捷了设备管道的布置,又实现了空气的肆意流通。




推门而入,弧形门廊的出现,拉长了空间的纵深感。整体布局没有繁复的装饰,也没有华丽的造型,却呈现出别具一格的美感,让生活回归最初的质朴。门厅处做了大面积到顶鞋柜,一家三口的鞋子和杂物都可以轻松收纳。
Through the door and pushed the emergence of the arc lanai, prolong the depth of space. Overall layout without the adornment of heavy and complicated, also not beautiful modelling, but present a unique aesthetic feeling, let the life return to the original plain. Vestibular place do large area to shoe ark, three shoes and sundry can easily receive.



-2楼采光严重不足,设计师别具匠心的在顶面“开天窗”,将上层空间的阳光引入室内,随之在阳光下房造景,真正的将室内外空间联系了起来,不仅解决了采光问题,也自成一道风景。
在茶室的打造上,考虑更多的是人与人之间的互动性。只需些许装饰点缀便可以让禅意之雅脱颖而出,茶从口入,意从心出,滤去浮躁,愈发觉得通透和豁然。
- 2 LouCai light severity shortage, designers focused on the top of the "blank", will the upper space of sunlight into indoor, then at the sunshine XiaFang landscape, the real will indoor and outdoor space, not only solve the lighting problem, also become a scenery.
On teahouse building, consider more is the interaction between people. Just a few adornment ornament can let zen stand out, from the mouth into the tea, meaning out of the heart, filter the impetuous, increasingly feel fully and suddenly.




集影视厅、K歌房、轰趴、茶室为一体的多功能厅,顶面设置星空灯,营造出星光点点的意境,称之为“姐妹们的快乐星球”。
Cinema, karaoke room, a party, tea as one of the multi-function hall, on the sky light, top of the create the artistic conception of stars, called "sisters happy planet".

-1楼布置了保姆房、一间储物间、开敞区娱乐室空间,并配备了茶水间。




中国人的习俗,麻将变成了不可或缺的家庭聚会娱乐方式,所以在麻将室的打造上也必须别具匠心。以功能为引导串联而成的定制柜体,集收纳与展示于一体,大面积的留白设计更像是给空间做减法,营造质简的侘寂美感。
The Chinese customs, mahjong became indispensable family entertainment, so must build on mahjong room do not provide craftsmanship. Guide series with function for a custom cabinet put oneself in another's position, set to receive and display in a body, the space design of large area is more like a space for subtraction, build quality Jane wabi-sabi aesthetic feeling.

1楼在原建筑空间基础上,在侧面餐厅位置加开了大窗户,优化了客厅采光,也和花园有了更多的视线交流;餐厅与客厅的串联,也让客厅实现大平层般的横厅格局,空间大气而沉稳。




简洁的造型烘托出入户的整体氛围,也让空间调性更为柔美,一侧的建筑物在角落变身成为靓丽的风景线,将“独特”二字诠释得淋漓尽致,更是让仪式感的玄关瞬间妙趣横生。
Compact model integral atmosphere foil in and out of the door, also let a space more gentle tone, become beautiful beautiful scenery line in the corner on the side of the building, will be "unique" word interpretation to get incisively and vividly, is to let ceremony feeling of porch moments enjoyable to read.




弧形沙发作为主沙发,温柔的外观给人以舒适感,搭配斜顶造型,在保持干净质感的同时,在视觉的感官上更是充分展示了饱满的层次感,没有多余的装饰,摒弃杂糅,静享时光的温柔。
餐厅与窗外形成互动,让用餐变成了一件惬意的事。在墙面增设柜体,瞬间让空间多出了陈设的功能。流畅的线条,打破沉寂的家居空间,赋予空间另一番格调。
Arc sofa as the main sofa, gentle appearance give a person with comfortable, collocation inclined top modelling, while clean simple sense, on the visual senses are fully display the rich administrative levels sense, no redundant adornment, abandon mix, enjoy the gentle of time.
Restaurant and interactive activities outside the window, let meal into a pleasant thing. Increasing the number of cabinet put oneself in another's position in metope, make more space to display the function of the moment. And fluent line, breaking the silence of the household space, giving space to another style.




在自然中感受生活,花园的打造主要围绕“休闲”二字来打造,一侧营造出树林葱郁,树影摇曳的氛围,功能上,规划出休闲区、玩耍区、餐饮区,以供聚会场景的使用。
Life in nature, garden building mainly around the "leisure" two characters to create, a side create a lush forest, trees swaying atmosphere, function, planning out the recreational area, play area, dining area, for the use of the party scene.

2楼空间布置了儿童房、长辈房以及客房,均采用套房形式布置。儿童房预留了充分的活动空间,并设计了衣帽间,且与景观阳台相连,让室内空间与室外空间有所缓冲,视野轻盈生动。




儿童房床头灯足以营造出卧室惬意的氛围,背景墙的挂画与灯光相融合,烘托出丰富的层次感。
书房简约淡雅的模样,供阅读的书桌,都在无声的彰显着空间里承载的奇思妙想。
Children room bedside lamp is enough to create a comfortable bedroom atmosphere, setting wall hangs a picture and the integration of the light, the foil of rich administrative levels feels.
Simple quietly elegant appearance, the study desk for reading, all bearing in silent reveals the space's flights of fancy.


低调素净的低饱和度空间,整面的大衣柜设计,将收纳功能发挥到极致,雅而不俗,简洁大方,传达出简单、方便、舒适的生活理念。
Low-key plain low saturation space, on the surface of the whole wardrobe design, will receive a function to the maximum, elegant and not common, concise and easy, convey the simple, convenient, comfortable life philosophy.


为了使客房的空间使用面积更大,定制的床与柜子相连,配合软床垫来体现卧室空间的舒适感。背景墙融入自然的挂画元素,给原本局促的空间一丝自然的气息。
In order to make the space of the room usable floor area is bigger, the custom of bed are connected to the cabinet, to reflect the comfort of the bedroom space with soft mattress. Setting wall into the natural elements, a picture of the to cramped space a natural breath.


棋牌室空间往往能够作为家中的娱乐、爱好、交流寄托,更是闲暇之余的片刻沉淀。搭配中古韵味的棋牌桌,保留造型的同时,也能体现出业主的独特审美。
Chess &cards room space is often able to communicate as a home entertainment, hobbies, reposing, is free for the moment of precipitation. Tie-in medieval charm chess table, retain shape at the same time, also can reflect the owner's unique aesthetic.

3楼空间便是主卧空间,我们除了要考虑其收纳空间外,还需要在整层空间打造出其应有的情调,让业主二人在此度过的浪漫时光。




三楼作为私享空间,打造出其专属的气度,彰显舒适感的同时也体现了其优雅的气质。选用奶油色作为空间的主色调,搭配灰色系的床品,将侘寂风的质感体现的淋漓尽致。
步入衣帽间,在奶油色的包裹下,形成的秩序感,呈现出静谧的氛围。
On the third floor as enjoy private space, create its own bearing, reveal the comfort at the same time also reflects its elegant temperament. Choose the mass-tone attune of the cream as space, tie-in grey bed is tasted, the simple sense wabi-sabi wind reflect incisively and vividly.
Into the locker room, under the cream package, sense of order form, present a quiet atmosphere.


卫生间采用三分离式设计,功能独立且不互相打扰,双盆的设计,给予业主二人同时洗漱的空间。
Toilet USES three separate design, function independently and do not disturb each other, the design of the double basin, gives the owner the space that wash gargle at the same time.