奶黄色装修风格Ⅱ【大连隆泉华庭 装修案例】
大连品尚茗居装饰
2022-06-05

今年奶黄色装修风格悄然兴起。

简洁的风格,既可以营造宽敞明亮的气氛,又可以为业主省钱。

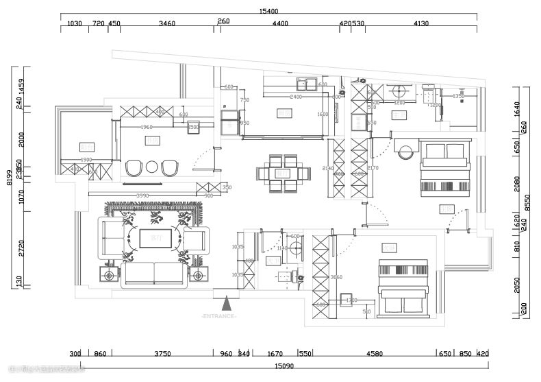
空间以奶白色为主,因此要用深色系的家里来调和。

玄关下方,设计灯光很有必要,否则光线暗淡时候,找鞋子很麻烦。

餐椅故意选一个粉色的,作为跳色。不让空间气氛过于沉稳。

卫生间做了三分离。

大连品尚茗居装饰
2022-06-05

今年奶黄色装修风格悄然兴起。

简洁的风格,既可以营造宽敞明亮的气氛,又可以为业主省钱。

空间以奶白色为主,因此要用深色系的家里来调和。

玄关下方,设计灯光很有必要,否则光线暗淡时候,找鞋子很麻烦。

餐椅故意选一个粉色的,作为跳色。不让空间气氛过于沉稳。

卫生间做了三分离。
