150㎡大横厅户型,三人一猫一狗一仓鼠的惬意生活!
佳鸿饰界装饰罗阳店
2022-06-24

项目地址:博雅花园
户型面积:4房2卫 150㎡
设计风格:现代简约
这是有爱的一家,男业主是台湾人,工作上比较忙,更注重风水的布局效果,而女业主则是高高瘦瘦,十分知性优雅,在开工吉日这天,她也带着小朋友来到现场,一起见证了这重要的时刻。
工作之外的他们也喜欢宅家,还养了几只小可爱:牧羊犬、蓝猫和仓鼠。因为它们的加入,生活变得热闹起来,常常会有意想不到的小惊喜...
吉时吉日,开工大吉

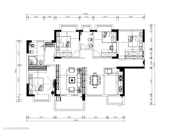
房子常住一家三口,格局比较符合生活需求,因此只做了微调,将零散的空间整合在一起,增加动线层次。

屋主需求&存在缺陷:
1. 过道波打线位置过宽,不美观;
2. 厨房偏小,客餐厅过大,空间利用不合理;
3. 因为家里有养小宠物,所以想对主卫进行改造布置;
4. 地面跟天花吊顶需要对应造型,打造简约而不简单的效果。

户型格局优化:
1、入户鞋柜代替隔墙,衣柜鞋柜做一体节省空间;
2、厨房位置往餐厅位纵向横移五十公分,增加厨房操作空间;
3、主卧取消衣帽间,主卫加衣帽区格局一分为二,卧室空间更宽敞。
玄关

玄关定制了一面内嵌鞋柜,原木柜体中间和底部设置两个开架,方便更换和放置物品。地面一圈波导线,金属壁饰,优化入户空间视觉。
客餐厅


客餐厅串联,低矮的沙发靠背造型,在维持空间利落线条的同时,轻巧的拉出场域界限。
烟灰色的沙发,圆润弧度,搭配高低错落的组合茶几和豆沙色墩椅,渲染出空间的层次美感,舒适而优雅。

电视墙则形成内退的结构,周围一圈收纳展示柜,增加空间的可延续使用性。

考虑到整个为横厅户型,餐厅沿用了客厅的多色叠加窗帘,整体更和谐统一。加上竖直摆放的岩板餐桌和灰棕色的餐椅,完美契合了这个长形的空间,金属和铁艺的支脚更显轻盈。
厨房

厨房L型设计,石英石的操作台耐磨好打理。象牙白亮面橱柜,将挥手感应的智能烟机、洗碗机、消毒柜等设备,统统收纳进了厨房。为了方便屋主使用,台面高度也采取定制设计,无需弯腰即可操作。
主卧

卧室以纯白+木色为基调,灰棕色系的床头床品、挂画与对称床头柜相互呼应,相得益彰!
整体家具造型简约,空间大面积留白,营造了一种低欲望的生活方式,家可以被填满也可以被清空,内心越富足对物质的渴望反而越低。

床尾空间比较宽裕,我们定制了悬空电视+电视柜的组合,加上精致的摆饰,打造出卧室惬意的一角。

卫浴空间与卧室衣帽区相邻,淋浴区采用通透的铁艺玻璃门独立隔开,实现干湿分离。

墙面是“粗犷”的大理石纹瓷砖,同时为了方便照顾家里的小宠物,屋主特地要求设立马桶+蹲厕的形式,让家里能时刻保持洁净如新。
女孩房


女孩房同样采用温柔大地色系呼应,咖色绒布床头和棉质床品,温馨怡人。几何色彩挂画和意式极简圆形床头柜的点缀,更是为卧室空间带来了几分现代的时尚感。
男孩房


与女孩房相比,男孩子的房间则更加雅致。灰色床卧和胡桃木的书桌书架、衣柜形成静谧舒适的氛围,
性能极好的门窗完全阻隔外界噪音,宁静的午后,享受片刻惬意。
客卧

客卧是为屋主爸妈偶尔来小住准备的,床调整到了1.5m的宽度,布艺的床靠软绵透气,搭配深蓝色床品营造全然放松的休憩空间。

氛围感的灯带和筒灯,胡桃木的衣柜移门设计,简约有序。
次卫


高级灰的洗浴空间,一字型的布置,加上室内极佳的采光,空间显得祥和,让沐浴时光变得宁静、安心。