鲁班·新作首发航天翼城180㎡现代轻奢风格 让空间低调奢华
西安鲁班装饰东郊店
2022-07-02
现代轻奢装修风格的主体装修比较简洁,但也不像现代简约那样随意,用于装饰的壁纸和家具线条优美,会用一些纺织品和皮毛来装饰,在看似简洁的外表下,给人一种低调奢华有内涵的感觉。
本案的业主,与设计师多次沟通,最终风格定位现代轻奢风格,第一是业主喜爱,第二本案设计师也比较擅长现代轻奢风格,一拍即合,随即创造了一个成功的经典佳品!
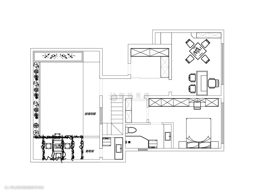
小区:航天翼城
风格现代:现代轻奢风格180平米
家居奢华风格追求高品质生活,除了满目所及的奢华效果之外,满足于身心感受的奢华感也是至关重要的,在没有任何束缚和压力的环境中,最终打造出一个能让身心完全放松,无比舒适的温馨家居环境。


现代轻奢风格是现代与古典的融合这种风格是将现代风和古典风完美的融合在一起,硬装会比较偏现代风,家具和软装会比较偏古典风,整体给人的感觉就是非常时尚、奢华、有品位。

现代轻奢风格中黑色、碳灰色等深色调,则需要在反光材质上,如玻璃、丝绒、镜面等元素中,将华丽的格调化彰显。

现代轻奢风格在家居选材方面,区别于过去传统装饰设计中的木质家具,在现代轻奢风格的装饰中,最常见的就是金属、大理石、皮革制品,这种质感十足的选材能完美的凸显出轻奢风格的低调奢华,在舒适度与观赏度方面,这些材料又能完全达到现代奢华峰点要求。较好的满足了人们追求的生活内涵。

在对色彩的选择上,无论是哪种别墅设计风格,色彩对别墅装饰设计的重要性都是不言而喻的,在现代轻奢风格中,色彩绝大多数都会选择黑色、灰色,高级黑、高级灰都是非常尊贵的颜色,在很多高端的场所,黑色、灰色往往都会作为主色调或者搭配色。


在轻奢风格居室装饰中,需要的是黑色和灰色的不起眼,但是又能亮眼,这些都是黑色、灰色能给的效果,在杭州九鼎装饰设计师以往的设计作品中,有多多次这样的设计案例,这也间接的反映了市场中在现代轻奢色彩选择方面的偏好。



轻奢风的设计手法以展现出“轻”的特点,喜欢使用利落的线条设计,极简而不随意,硬装设计简洁。“奢”可以体现在软装装饰上,简单来说就是去掉不必要的装饰,通过有质感的软装家具展提高居住品质。


轻奢风设计强调现代与古典的融合,喜欢讲复古元素使用到现代风格的装修中。这个复古元素不分时代,软装和硬装都可以使用,只要符合空间的整体调性就可以。

轻奢风的细节处理比较有个性化,不管是摆件装饰还是硬装装修细节,都非常有讲究。即使是一个细小的摆件,也能呈现出居住者的生活品味。无论是门槛石、波导线还是瓷砖美缝这些细节能做细就做细。

现代轻奢风格非常讲究空间的层次感与跳跃感。使用中式的工艺隔断、使整体空间更加丰富,大而不空、厚而不重,有格调又不显压抑。

现代轻奢风格空间大理石材质。大理石自带独特的纹理,质感低调高贵,无论是大面积使用或者是局部装饰都能很好地融入整体的氛围。

【设计年限】10年
【擅长风格】现代风格,混搭风格,轻奢风格,美式风格
【办公地点】陕西鲁班装饰东郊店
【设计理念】:室内设计是种艺术的旅行,从毛坯到完工入住,作为设计师需要的是多方面为业主把控,打造出适合的家居氛围。
【成功案例】
代表作品:近年来成功案例遍布阎良天创云墅、万科理想城、蔷薇溪谷、合能铂悦府、龙湖香醍璟宸、高科麓湾、阎良宝安紫韵、御锦城、曲江千林郡、华清学府城、兰蒂斯城、浐灞半岛、保利心语花园等各大小区。