法式独栋大别墅,尽享尊贵生活
山水人家(光谷店)
2022-07-07
项目地址:恒大金碧天下
项目面积:300㎡
项目风格:法式轻奢
项目施工:山水人家装饰
工程造价:50w
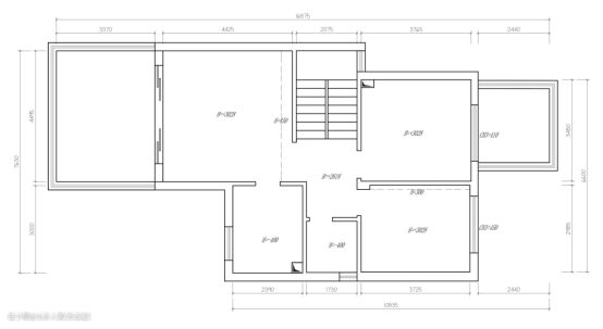
户型解析
本案业主是三代同堂,是一个大家庭。大家其乐融融地住在一起,但彼此之间也有着各自的生活诉求,因此在整体设计中需要尽量满足他们。空间是独栋别墅结构,考虑到房屋顶层的保温性能相对欠佳,于是设计师决定将储物间、客房、多功能房设置在顶楼,而将冬暖夏凉的二层当做卧室睡眠区域,实现动静分离,凸显舒适的生活空间。而一楼作为生活会客的主要区域,因此要保障交互性,同时也要促进室内和室外花园的统一协调。


一层作为生活会客的活动区域,需要保障一定的交互性和舒适度,为此设计师针对户型作出如下整改:
- 拆除一层的厨房墙体,扩大厨房的使用面积及采光,形成开放式餐厨空间,有助于加强家人之间的交流沟通。
- 平行移动一层的卫生间墙体,保障足够的卫生间空间及优良功能的基础上,将部分多余空间补充给卧室,有效增加卧室的储物面积,休闲空间得到充分保障。


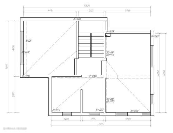
二层是卧室睡眠区域,因此需要营造静谧的氛围。又因为二层存在明确的分区和体量,所以没有做过多的调整,单是利用一层院子的顶棚改造出一个独立的阳光阳台。


作为顶楼的三层,则是整屋休闲娱乐及客人临住的区域,需要增加娱乐性和实用性,通过打通房间内的墙体,形成一个储物间,借此满足顶楼储物的需求,其他两个房间分别是客房和多功能室,功能各异,设备齐全。
客厅



客厅整体构色较为鲜艳,拥有非常斑斓的色彩。通过应用大量木、石、线条等元素,搭配仿古砖增添华丽惬意的复古意蕴。浅色背景墙搭配pu线条,增加空间层次感。电视的呈现则是用到了投影仪,精简空间的同时,给背景墙充分留白,增加足够的生活趣味。各种造型独特的灯具及美式风格元素的点缀,消除了方正结构中的拘束感,重新回归到精致舒适的生活本质。

从顶楼往楼下看,客厅的全景一览无余,仿古砖、格子地毯、沙发茶几浑然一体,呈现异常的美感,慵懒舒适的氛围油然而起。
餐厅


餐厅延续了客厅简洁清新的格调,诸多元素一脉相承。整体布设相对简约,一张长桌搭配四个座椅就是全部的内容。环顾四周,后侧是造型精致的pu线条,增加空间层次感的同时,营造古典意趣。顶上是仿木制电风扇+吊灯的配置,沙沙作响,趣味横生。两边则是薄帘,微风轻拂,外面花园的美景便溜进主人家的眼,窗外烂漫的景色,一饱眼福。
厨房

U型的橱柜布局,洁白柜面搭配青色柜体,营造轻松简洁的氛围。中厨设备一应俱全,功能分区合理,有效实现洗切炒的功能需求。同时在一侧设置吧台,增加西厨,进一步做到中西厨分离。正对面的就是烤箱及冰箱等,做完中西餐既可转身吧台用餐,也可直接端盘到餐厅享用,呈现合理的活动动线,方便而快捷。
楼梯


透过客厅楼梯向远处看又是另一番景色,栅格状的楼梯扶手与整个空间承上启下,层层递进,增加空间的层次感。楼梯踏步和扶手采用的是原木材质,精心打造,呈现美感的同时,既呼应了整体法式风格,又充分保障老人和小孩的安全。
主卧


主卧整体空间非常宽敞,在整体设计中呈现本真质感的同时,不乏清雅的审美感受。卧室背景墙应用的是清新的绿色,搭配白色的pu线条,更添一分精致。右侧毗邻大的露天阳台花园,用一面丝绒的窗帘堪堪隔开,同这一抹绿相衬,更显得相得益彰。阳光微微露脸,温暖而沁人心脾。
次卧

这间是业主女儿的房间,整个房间精致小巧,拥有非常优良的采光条件。里侧则是一整面的立柜墙,能够储存大量女孩心爱的衣服配饰。两盏壁灯放出柔和的光,增添清丽素雅的意蕴。
多功能房

这里属于顶楼的休闲娱乐区域,整体居室因为缺乏采光的缘故,显得较为暗淡。但搭配深蓝色立柜和木制地板,反而深化了一种沉静自然的感观。多功能室,顾名思义,被赋予了各种各样的休闲功能。足够大的空间里可以做任何想做的事。女主人可以到这里做瑜伽、跳舞,音乐环绕下,展现艺术的律动;男主人能打麻将、玩军模,生活的美好不言而喻。
这是整栋别墅的外景,宏伟而壮大,仿佛一个雕梁玉栋的宫殿。满藤灿烂红花攀上栅栏,跟不远处的别墅背景相互映衬。法式风格不经意地流转,赋予家更高的品质格调。