112㎡三代同堂轻奢风,方寸之间,匠造幸福!
佳鸿饰界装饰罗阳店
2022-07-10

地址:云锦台
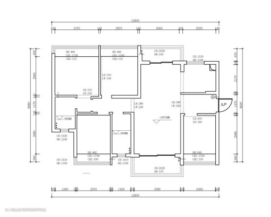
面积:112 ㎡
风格:现代轻奢
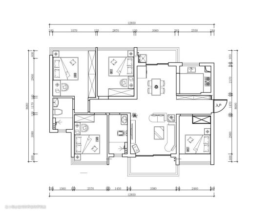
户型:4房2厅2卫

这是一套面积为112平米的住宅,屋主夫妻、孩子和老人一同居住。房子的原始户型开阔,采光充足,和屋主充分沟通后,设计师在硬装上没有大拆大改,尊重空间原有结构,进行了细化调整。

对于新家,屋主最大的希望是环保健康,对隐蔽工程的要求比较高,因为家里有小朋友,后期甲醛含量也必须达标;增加客房,满足亲朋好友偶尔到家小住的需求; 在不影响基本结构的情况下,打掉卧室的飘窗,增加使用空间。
下面一起走进这个三代同堂的家中看看吧!
客餐厅
客厅以奶白、灰色为主色调,适量的金属元素做点缀,在视觉上挑染出精致感,整体氛围和煦而轻柔。


大理石的电视背景以两侧铜边构成对称造型,在色彩上运用了白色与金黄色的搭配,旋转空调和简约电视柜满足基本使用需求,舒适感满满,可谓是美感与功能兼具。

从玄关看客餐厅,过道形成两个区域自然的划分。

餐厅装饰一组莫兰迪色的组合挂画,给空间带来独特的视觉体验与韵味。搭配上一款白色大理石餐桌和粉蓝色的轻奢餐椅,拥有简约线条和天然纹路,优雅而大方。
主卧

来到主卧,一款意式轻奢的梳妆台映入眼帘,精致感十足,搭配上金色的拉手和桌腿,为屋内带来一份时髦与温馨。
卧室的床头背景墙以组合挂画装点,简约而不失美感。将创意工艺品和蘑菇头台灯点缀其中,整体散发出浪漫和优雅感。

靠墙侧是到顶的收纳柜,无把手设计,柜面颜色与床卧一致,细节的联动让空间充满惊喜。
主卫

主卫空间是经典耐看的黑白色系,墙砖和地砖选用同款浅灰色大理石纹砖,不经意间提升空间的精致感。
长辈房

长辈房素雅的基调,米白的皮质床头十分适合老人家,软硬适中,爱马仕橙的抱枕成为房间的点缀。

利用轻纱薄幔可以自由地调节室内光线,还居者一片惬意的小天地。
儿童房


儿童房摆放上精致的小床,灰白色调的空间基调,加入清新又亮眼的姜黄,可爱的大白鲸鱼玩伴以及墙面月球航天员的挂画,充满了童趣与活力感。
客房

这个房间目前用作客房,供亲朋好友偶尔小住。定制柜用了蓝色系哑光面的板材,搭配深绿色系的窗帘和床垫,显得更加沉稳素雅。

一盏小灯方便睡前的阅读,炽黄的灯光带来最暖意的守候。
公卫


与主卫相似的布局,卫生间采用玻璃隔断,干湿分离提升居住品质。灰白色调加以灯光的氛围烘托,简约时尚,高级感十足。