260m²的新中式豪宅,刚看到玄关的第一眼就爱上了它。
HA艺墅设计院
2022-08-05
本期的业主是一位创业多年的民营企业家,在商场上奋斗多年,如今早以事业有成,不过也正因为事业的原因只能长期留在外地,这让他对家乡非常思念,所以特地在家乡建了这套房子,作为过年过节、以及一家人回家乡度假时的居所。
业主经历了多年的商场沉浮,社会阅历丰富,性格沉稳内敛,热爱中国古典文化,对中国的古典文化有自己独到的见解,喜爱有内涵的设计风格,对于自己家乡的这套住房,业主十分重视,把它看成自己真正的家,希望我们能把它打造成既能给一家人现代的极致的生活享受,又能有文化,有内涵,充满中式古典韵味。所以最终这套住房的装修风格被确定为新中式风格。
基本信息
项目地址:福建泉州
项目面积:260平方米
项目风格:新中式风格
业主对这套房屋的装修要求非常高,因此我们必须在每一个细节上用心把关,在经过多次详尽的沟通之后,我们明确了所有的设计要求,并将一部分具体要求整理如下:
1有很多比较娇贵的衣服只能干洗,所以在设计时要专门留出一间干洗室。
2喜欢喝茶,需要单独设计一间品茗室。
3进门要有气势,要能体现出主人的社会地位。房间的每个空间都要透露出中式古典韵味,让人能够感受到房屋主人深厚的文化底蕴。

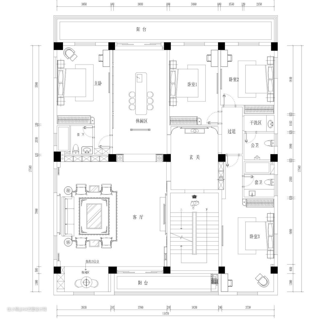
01户型图
业主的新住宅房型规整,原始空间划分比较合理。在进行平面布置设计时,设计师保留了南北两边的大阳台,并且统统使用了巨大的落地窗,让整个房屋有充足的采光和宽阔的视野。在最右侧公卫南边的区域,预留出了一块空间,做成干洗区,既满足了业主的需求,同时干洗区所在位置比较边缘,不会挤占卧室等主要功能区的空间。
02玄关

玄关正对入户门,是整套住宅的脸面。正对面使用浅灰色花纹大理石作为底色,大理石花纹是自然形成的,更符合中国古典书画艺术中在意不在形的文化特点。中心位置圆环中远处群山层层叠叠,气势磅礴。圆环下方摆放中式盆景充满中式古典味道,盛放盆景的桌面为方形,同上方的圆环组合,暗合中国传统的天圆地方思想。
03客厅

客厅作为最重要的起居空间,起到给空间风格定调的作用。空间整体的设计使用了白墙和深棕色木纹这两个基本的设计元素,既保证了空间的明亮和现代感,又通过深棕色木纹,将中式古典的特色完美的融入空间之中。

家具是决定一个空间风格的最重要元素。在客厅中选用最能代表中国古典家具文化的明式家具,红木的颜色沉稳大气,充满历史的积淀。同时对家具进行了现代化改造,加入了现代的坐垫、靠背、抱枕等,在保持传统文化深厚底蕴的同时,更能给人现代的舒适的使用感受。

电视背景墙沿用了玄关的部分做法,使用了白色花纹大理石作为主要材质。花纹自然灵动,犹如中国传统的山水画,增加了空间的文化底蕴和艺术气质。侧面使用大块的落地玻璃窗,给人更宽阔的视野,营造出一种大宅气质。
04品茗区

体量硕大的红木大案,任何雕饰和造型对于它来说都显得多余。大巧无工,红木大案使用最简洁的平板造型,本身就自带沉稳大气的气质。靠窗一侧做白色花纹大理石装饰的水吧台,在给红木大案做支撑的同时,给饮茶提供了水源。左侧屏风画面流畅,大量留白,充满禅意。右侧落地窗使用了波纹玻璃,让人既能看到外面又看不清外面,营造了一种朦胧、深远的意境。
05主卧

主卧作为业主的主要休息区域,在延续白墙和深棕色木纹这两种基本的设计元素外,未做更多的装饰,在视觉设计上做了减法处理,减少了视觉上的疲劳,更有利于业主睡眠。同时,地面从地砖改为原木色地板,地板触感更温和,能使空间更有自然感,人在这样的环境中能够更好的放松身心,及时不睡觉的时候也能获得更好的休息。
结语
新中式因为其深厚的文化底蕴,在这几年越来越受到人们的喜爱。如果您也喜欢这种设计风格,但又苦于不知从何入手进行装修设计,那么不妨留言和我们联系,我们有最专业的设计师可以帮您实现您的梦想。