精细化的各类柜子设计尺寸指引「上篇」
上海木桐设计(西安)
2022-08-18
一般家里的柜子有玄关柜、衣柜、阳台一体柜、橱柜、餐边柜、电视柜、洗手柜等,下面提供一些柜子设计的尺寸依据及内部分隔参考:
一、玄关柜
玄关柜合理的设计可以更好解决鞋子、包包、外套随意摆放的问题,提高室内整洁度。同时,精细化的尺寸设计指引可以提高空间的使用率。
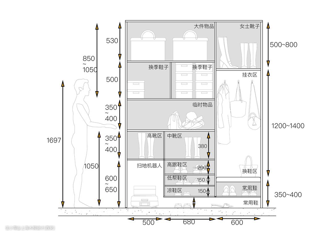
玄关柜分区:鞋柜区、换鞋区、挂衣区、临时物品放置区、顶柜区

1、鞋柜区
①鞋柜的厚度

鞋柜的厚度宜为350~400mm
②鞋柜内部分层高度

拖鞋、平底鞋高度为50~100mm,层板净高度设置为120~150mm
低帮鞋、中跟鞋高度为80~130mm,层板净高度设置为150mm
高跟鞋、高帮鞋高度为140~180mm,层板净高度设置为200mm
中筒靴高度为250mm左右,层板净高度设置为300~350mm
高筒靴高度为400mm左右,层板净高度设置为400~500mm
③鞋柜净宽

单双鞋子女性净宽一般为200mm,男性一双鞋子净宽230mm,所以鞋柜的宽度可以根据这两个数据来进行。
2、换鞋区

换鞋区鞋凳的高度一般为400mm
换鞋区长度为550~600mm(成年男性肩宽470mm)
换鞋区下方可悬空200mm高度放置常穿的鞋子
3、挂衣区

挂衣区一般设置在换鞋凳上方,以常见的长衣尺寸(1100~1300mm)为高度依据,挂衣区的净高度尺寸一般在1200~1400mm,挂衣钩的离地高度≤1850mm,设置太高不方便衣物的拿取。
4、临时物品放置区

可以用来放置快递、钥匙、包包等随身物品,方便我们坐下换鞋,不用把东西放在地上。台面离地高度设置为1050mm,区域高度为350~400mm。
5、顶柜区

顶柜区一般分为两个部分:
地柜上面的顶柜高度一般为850~1050mm,主要用来收纳过季鞋盒和大件物品
挂衣区上面的顶柜高度一般为500~800mm,可以用来收纳女士靴子和大件物品
丨几种鞋柜设计布局参考



二、衣柜
衣柜属于家里收纳的主力军,除了收纳衣物外,还能收纳床品、行李箱、饰品、证件、杂物等,厚度一般为600mm。

衣柜分区:短挂衣区、中长挂衣区、长挂衣区、裤架区、叠放区、被褥区和抽屉区
1、短挂衣区

短挂衣区一般设置在中部易拿取的位置。以T恤为例,一般衣长为600~720mm,加上挂衣杆和衣架所占用的位置,所以短衣区预留的高度为900~1000mm。
同时,参考成年女性平均身高(1580mm),挂衣杆到地面的距离不宜大于1850mm。
2、中长挂衣区

中长挂衣区一般设置在中部易拿取的位置。中长衣的衣服长度为600~1000mm,加上挂衣杆占用高度,中长挂衣区预留高度为1200~1300mm,挂衣杆到地面的高度不宜大于1850mm
3、长衣区

长挂衣区一般设置在中部易拿取的位置。长衣的衣服长度为1100~1300,加上挂衣杆占用高度,长挂衣区预留高度为1400~1500mm,挂衣杆到地面的高度不宜大于1850mm。
4、裤架区

裤架区一般设置在衣柜的下部。常见裤子对折之后的尺寸为600~700mm,因此裤架区预留高度一般为900~1000mm。
5、叠放区

叠放区宽度尺寸宜为300~400mm,高度宜为300~350mm,可以放置大部分的衬衫、睡衣和贴身衣物。
6、被褥区

被褥区一般设置在衣柜顶层的位置,满足被褥和过季衣物的存放,高度一般在400~500mm。
7、抽屉区

抽屉区一般设置在衣柜中下部的位置,用来存放饰品、内衣、文件等贵重物品,高度一般设置在200mm左右。
丨几种衣柜设计布局参考





三、阳台一体洗衣柜
卫生间面积比较小的,现在一般都会在阳台设置一体式的洗衣柜,同时预留有水槽和收纳空间,很多家务活都可以在这里完成。
1、洗衣机及预留空间尺寸
目前配置一体式洗衣柜用的都是滚筒洗衣机,常见滚筒洗衣机的尺寸为600mm(宽)*850mm(高)*650mm(厚),而配套干衣机与之尺寸相同。

嵌入式洗衣机四周应当预留不小于40mm的活动空间,洗衣柜的背面预留不小于50mm的空间用来安装进水管和排水管。

2、一体洗衣柜尺寸设计
①洗衣柜与洗手台高度相同

洗衣柜内部预留空间宽度宜为680mm,高度宜为950mm,厚度宜为600mm;
洗手台宽度宜为600mm,高度宜为950mm,厚度宜为600mm;
吊柜距离台面宜为700~800mm,厚度宜为350mm
②高低柜

宽度和厚度没有变化,只有洗手台的台面高度降低,大约为800~850mm。
丨几种洗衣柜设计布局参考



关于其它柜子的设计尺寸,详见下篇内容