105m²带阁楼户型,如何完美利用阁楼
质鼎装饰丨翻新首选
2022-10-19
坐 标:上海浦东
建筑面积:130m²
套内面积:105m²
阁楼面积:105m²(有斜顶)
屋主为一对年轻夫妻带一个小孩,与父母同住。买房时阁楼属于赠送,但因为原阁楼属于保温隔热层,所以并没有楼梯直接上去。类似这种户型的,大多数业主都不知道如何利用,最终选择放弃使用而浪费。考虑到人口较多,同住的情况下多少会有些打扰,尤其年轻人和长辈之间的生活方式的代沟。屋主希望可以将阁楼利用起来,但是如果按照常规的方案在客厅规划空间摆放楼梯会导致空间受损。楼梯的位置和阁楼的处理成为本次改造问题的集中点。
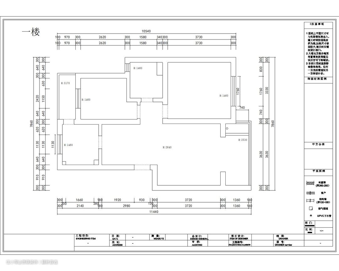
一楼原始户型图

原户型为两室两厅,如果不打通阁楼的话,只有两间卧室,小朋友没有自己的空间,长大后就不够住。储物空间也会因此受到限制,时间长了东西没有充足的摆放空间,家里就会变得又脏又乱!
二楼原始户型图

从户型图上看阁楼空间还是比较宽敞的,但是楼梯开在哪是个问题,同时需要兼并一楼和二楼的利用,又不能破坏房屋结构,承重墙也不能动。
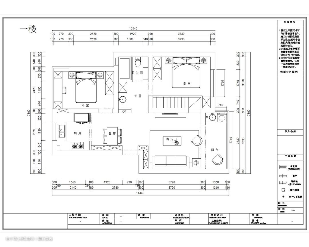
一楼平面方案图

经过设计师与业主多次探讨后,一楼两间卧室作为父母与孩子居住的空间;考虑到原主卧空间较为宽敞,床尾处比较浪费,又刚好和二楼重合,所以在这里隔出一部分作为通阁楼的楼梯位置。楼梯下面改为一楼主卧的储藏柜,一举两得!
另外将阳台的空间直接打通,拓展视野的同时增加了采光和通风的效果。
厨房两边门垛拆掉,改为半开放式厨房,同时也让空间更加通透,采光也更好。厨房后侧的小阳台通过改造划入了儿童房,增加了学习区域,另外使得厨房动线完整,橱柜做成了完整的U字形,厨房储物区域也增加了。
儿童房的门洞改到餐厅这面,卫生间正好多出一个干区,扩大了卫生间的使用。
一楼考虑老人带小孩全部做了地暖和中央空调!
二楼平面方案图

二楼的生活区完全给了夫妻二人,生活的同时也给了俩人生活情调和空间。考虑到层高的影响,主空间并未采用吊灯等常规主灯,氛围灯带和射灯可以根据生活场景和外界条件随时调节,全屋配备了无线声控,生活舒适性大提高。
二楼原本的底层高区域都被改造成了储物功能区,一家三代的储物同时兼顾!
改造后实景拍摄照
一、客厅


客厅深度不够摆放楼梯的位置,利用主卧部分空间做楼梯;楼梯入口在客厅电视背景墙,加入灯带的设计反而带来时尚感。
雾霾蓝的皮质沙发,没有茶几的摆放,搭配一张地毯,将抽象的理念落实到实地生活当中,空间更显大气简洁。整个空间采用无主灯设计,追求宽敞明亮的空间,强调整体结构的完整性。
以简洁的表现形式来满足业主对空间环境的理性需求,打造充满美观的空间设计。
二、餐厅


靠墙打造餐边柜,中间留空摆放物品;餐桌靠着边柜摆放,节约空间。
长方形的餐桌迎合了整体的简约风,灰、白色的搭配也符合整体的配色。
三、厨房


U型橱柜设计,注重空间的利用,外面简约时尚,收纳也非常充足。
厨房兼容性也很高,冰箱和和一些厨房电器都有充足的摆放空间。
四、卧室
1、一楼主卧:父母房


从主卧借出一部分改成楼梯后,空间比原来缩小,摆放完大床后刚好有通行的空间,进门的墙面正好打造壁柜储物;无主灯的设计在小空间刚刚好,大气又简洁,空间虽小,但不失温馨感。
2、一楼次卧:儿童房


通过儿童房的色彩搭配就知道是个男孩的房间,设计充满童真;
将厨房外的阳台规划到儿童房后,扩大了儿童房的空间,增加了小孩学习区域。
3、二楼卧室


考虑到阁楼作卧室的话,因为有斜顶的关系,对于老人和小孩子都是比较不方便的,因此二楼就完全改为夫妻二人的生活空间。
4、二楼书房

三间卧室都分配完成后,多出来的空间也不能浪费,改为书房,同时也是亲子互动空间。
五、玄关

门厅位置充分利用,一边设计鞋柜,一边是餐边柜,收纳充足。左边的玄关柜深度加宽,刚好是客厅的边柜。
六、走廊

次卧的门洞改变位置后,增加出来卫生间的干区,使卫生间使用空间更加充足,不拥挤,也更便于打理。
七、卫生间
一楼客卫


原一楼卫生间的客厅确定比较小,如果不设计干区的话,里面要容纳卫浴三件套就无法隔出淋浴房,并且会非常拥挤。
二楼主卫

二楼主卫使用比较小,喜欢泡澡,设计了浴缸与花洒结合。
八、楼梯


楼梯的设计非常有艺术感!