入户无玄关户型,鞋柜设计参考
恒彩家装义乌旗舰店
2022-10-21
在原始的户型中,有很多鸡肋的地方,正是这些地方关系着业主的生活需求,同时也是对设计师的考验,玄关就是其中一个重要的位置。很多户主都很重视玄关的设计,这是进入家门的第一视角,玄关的打造,不仅是给人的第一印象,更是对日常生活习惯以及需求的巨大满足。
但是出于原始户型局限性,很多房子本身并没有预留玄关位置,鞋柜自然也就没地方放。那么,进门无玄关的户型,可以怎么做,我们一起来参考几个设计案例。
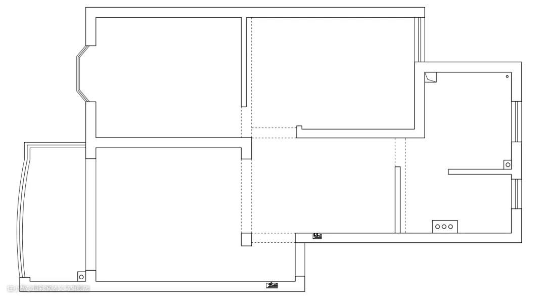
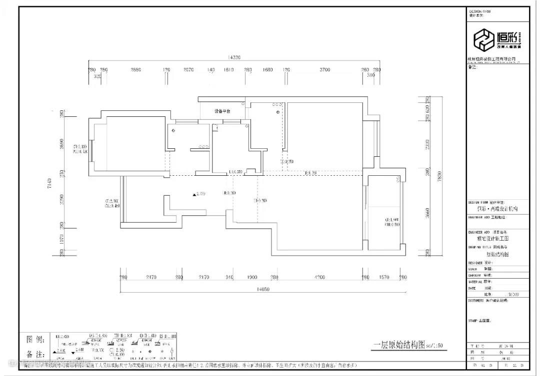
No.1:在原始的户型中,进门之后就是一个大的独立空间,单独用来做玄关有些浪费。

原始结构图

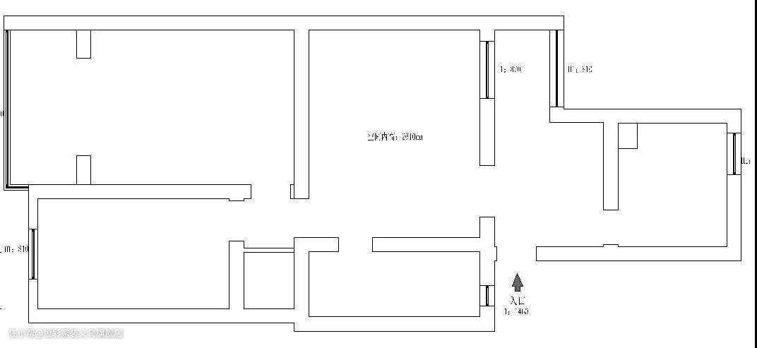
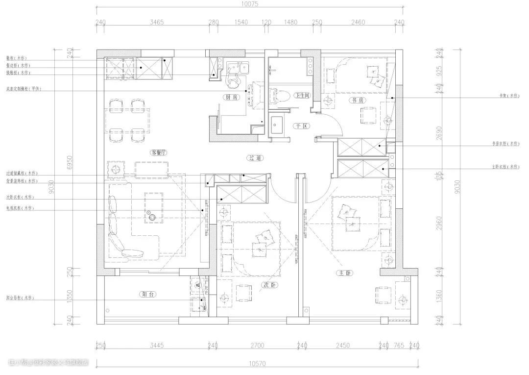
平面设计图
设计改造:进门之后的位置用来做厨房空间,进门直接就是厨房又有些不合适,就在进门之后左手边做了一个柜子用于缓冲,在厨房拐角位置做了一个鞋柜,在厨房里面“造”了一个玄关。


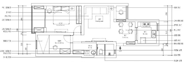
No.2:在原始的户型中,进门之后就是餐厅,没有预留玄关位置。

原始结构图

平面设计图设计改造:将入户门右手边位置打造一个玄关,为避免直接正对客餐厅,做了一面隔墙,用于阻挡空间实现,起到一个空间缓冲的作用。

No.3:在原始的户型中,进门之后就是客厅,没有预留玄关位置。

原始结构图

平面设计图
设计改造:在玄关与客厅之间直接做整面玄关柜,用于阻隔玄关与客厅之间的视觉空间,起到一定的缓冲作用,同时增加了玄关设计,用来做鞋柜。

No.4:在原始的户型中,进门无玄关,加上本身就是60方的小户型,对于空间的把握要求比较高。

原始结构图

平面设计图
设计改造:户型空间有限,没有独立餐厅,进门之后直接做了一个吧台,用作简餐区,在吧台连接厨房的位置台面底下做了一个简易的鞋柜,既省空间,又保证了它的实用性。

No.5:在原始的户型中,进门就是厅,入户门厅的位置正对卫生间干区和厨房,不适合做鞋柜。

原始结构图

平面设计图
设计改造:在客厅与餐厅之间的转角处空间,做整面嵌入式玄关柜,很好地利用了转角空间。

No.6:在原始的户型中,玄关进来之后就是客餐厅,虽有玄关但进门之后直接对着客餐厅没有任何缓冲。

原始结构图

平面设计图
设计改造:利用原有户型中的玄关位置打造玄关鞋柜,玄关正对吧台设计,一方面吧台可以起到简单的隔断作用,从玄关到客厅之间起到一个缓冲作用,保护屋主隐私。另一方面,吧台结合玄关设计不仅让空间档次瞬间拉升,美观的同时还能满足日常生活需求。

No.7在原始的户型中,进门之后没有玄关,直接对着餐厅位置。

原始结构图

平面设计图
设计改造:利用进门之后右边的墙边位置打造玄关鞋柜。

餐边柜设计保留了壁橱的设计手法,利用玻璃做成玄关加上灯光效果,清透敞亮,充分节省空间,又保证了采光充足。

No.8:在原始的户型中,入户门厅空间较大,进门直接是客厅,没有隐蔽性,玄关鞋柜如果挨着墙做距离入户门太远,不方便使用。

原始结构图

平面设计图
设计改造:将原始户型中较为鸡肋的入户储藏间,设置成鞋帽柜区,弥补了入户无玄关的缺陷,也使得屋主的动线更加合理。


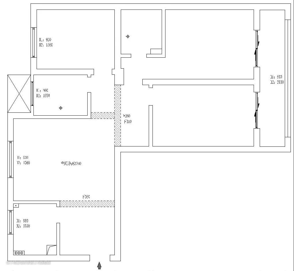
No.9:在原始的户型中,进门之后就是厅,左边餐厅,右边客厅,玄关柜没有合适的地方放。

原始结构图

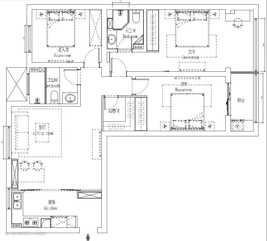
平面设计图
设计改造:将原始户型中较为鸡肋的入户储藏间,设置成鞋帽柜区,弥补了入户无玄关的缺陷,也使得屋主的动线更加合理。

整面玄关柜设计有超大的收纳空间,底部悬空设计,可以用来摆放体重秤等常用物件,还可以减少卫生死角,方便打扫。

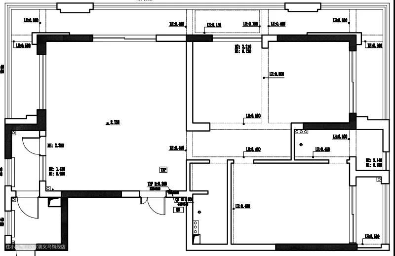
No.10:在原始的户型中,玄关进门就是客餐厅,没有私密性,同时鞋柜也没有地方放。

原始结构图

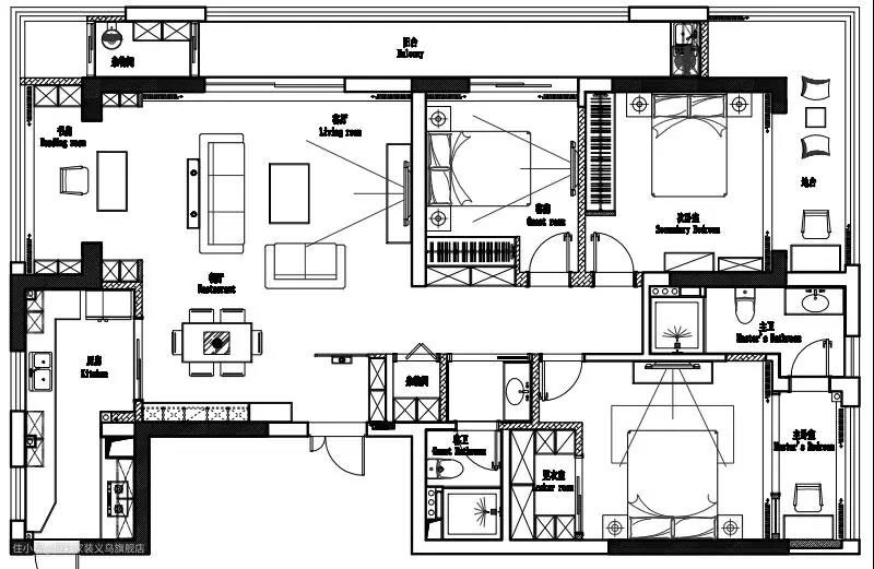
平面设计图
设计改造:餐厅靠墙做餐边柜,利用餐边柜做出来的几十公分距离做鞋柜。另外一边利用厨房外面的空间做成拖鞋柜,方便进门之后换拖鞋。
