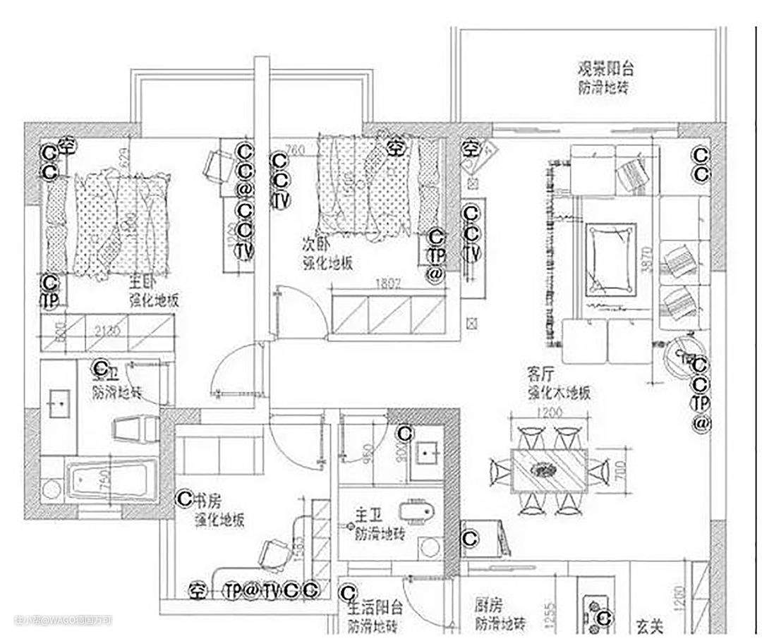
小白也可以看懂装修水电图纸攻略
WAGO德国万可
2022-11-06
新房子的装修和水电改造工程是一项十分重要的工程,因此,在装修的时候,要先了解一下水电工程的设计图。
所以,我们怎么才能看到水力发电的设计图?有些特别的标志意味着什么?今天,我们将会详细的讲解如何阅读水力发电的图示和理解。

01当前的危机也是一个转机

1.查看水电工程的设计说明:
事实上,在我们看水力发电工程设计图之前,必须要清楚明白。
比如房间里的配电箱的位置、设计的位置、插座的高度、高度、线缆的大小、线管的铺设、电线的排列、电线的配线、电气设备的配线等。
2. 从内部施工的角度来看:
我们在看水力发电的建筑设计时,也要结合建筑来考虑,例如要看房间的大小和尺寸,墙壁的厚度,找平层的厚度,保温层的厚度,保温层的位置等等。
水电改造后是否影响到我们的房间用电,预埋管的尺寸是否合理,建筑的高度又是怎样的,了解了这些我们就可以做好供电水位的预埋工作。
02初学者怎样理解河道改建工程图纸

1.从室内设计图和平面图上来看:
我们在看水渠的设计时,必须要把室内的设计图和平面图结合起来,这样我们就能看得更清楚了。
要知道房间里的分水点在哪、管道在哪、在哪变径、在哪、每个位置的水位都要预留多高,还有就是要看水的设施和排水系统的配合,以及它们之间的配合。
2.查看洗衣机的空位:
实际上,在我们的室内装修中,我们在设计中最要留意的就是给洗衣机预留的空间。
洗衣机的进水口一般都是在一米一的地方,在靠近水龙头的地方,要有一个洗衣机的地漏,这要看是不是专门为洗衣机设计的,有没有蓄水池,在看图纸的时候,我们要把自己和这个房间融为一体,顺着水管的方向,走到哪里,就能想到什么。
03各种水力发电标志的含义

1.线路标识符:
❖沿屋架或屋架下缘铺设
❖ ZM-沿着立柱铺设
❖ QM-沿着墙体铺设
❖沿天棚铺设
2.线路的暗设标志:
❖LA-暗敷法
❖ZA-在柱中的暗敷
❖QA-贴壁
❖PA-暗敷于天花
❖DA-暗埋于地下
❖PNA-在天花板上不能使用
3.导线铺设模式:
❖PVC-阻燃胶管敷设
❖ DGL电气管道铺设
❖VXG-塑料管道铺设
❖GXG-金属线管铺设
❖可缠绕式塑料管材敷设
在阅读水力发电设备的安装时应注意的一些问题

1.在查看水电安装图纸时,也要与施工配合。结构梁尺寸,预埋套管尺寸,建筑标高,水电设备安装后的房间高度是否会受到影响。
房间大小、墙尺寸、筏板厚度、找平层厚度、保温材料是否属于内、外保温、保温层厚度、内外墙装饰层厚度,只有掌握了这些资料,方能进行精确的预埋、预留、加工。
2.熟悉设计说明书:首先要了解图示,熟悉图示,再根据图示和图示来观看。在阅读图片的时候。可分为导水管-水表井-干管-分支-供水装置。
这是一种既节省时间又精确的方式,也适用于电力系统,比如配电柜,比如电线回路,比如电力设备,总之就是一个源头,一个连接,一个装置,让你在看地图的时候,不会一头雾水,甚至找不到重点,只要用心去看,慢慢的学习,相信用这种方式,很快就能学会。