新中式别墅装修,山水画+古朴胡桃木,意境悠远留长
华浔品味装饰集团
2022-11-30
今天我们来看一套新中式别墅设计方案,前一段时间业主准备把父母接过来一起居住,因此计划将手里这套别墅装修,并找到我们为他的豪宅做装修设计。
业主为人谨慎,沉稳内敛,非常喜欢厚重深沉的中国传统文化,希望设计师能运用传统装饰元素,为他打造一个既有古典底蕴又兼具现代建筑舒适度的居住空间。
基本信息
项目地址:重庆市
建筑类型:别墅
装修风格:新中式
在确定新房的装修风格之后,设计师和业主进行了更详细地沟通,根据业主的喜好和业主一家人的生活习惯,设计师将业主的设计要求整理如下:
- 业主父母早已退休,业余时间很多,他们经常邀请朋友到家里打牌,需要在家中设置一个专门的娱乐区供他们打牌娱乐使用。
- 业主和业主的父亲都很喜欢喝红酒,他们希望在餐厅定制一个专门摆放红酒的酒柜,方便他们吃饭时拿红酒。
- 业主父母年纪较大腿脚不方便,不太适合经常爬楼梯,他们希望把卧室设置在一楼,减少他们爬楼梯的次数。
- 业主家的孩子年纪小,不喜欢中式风格沉闷暗淡的色调,孩子希望能有个清爽、明亮的卧室。
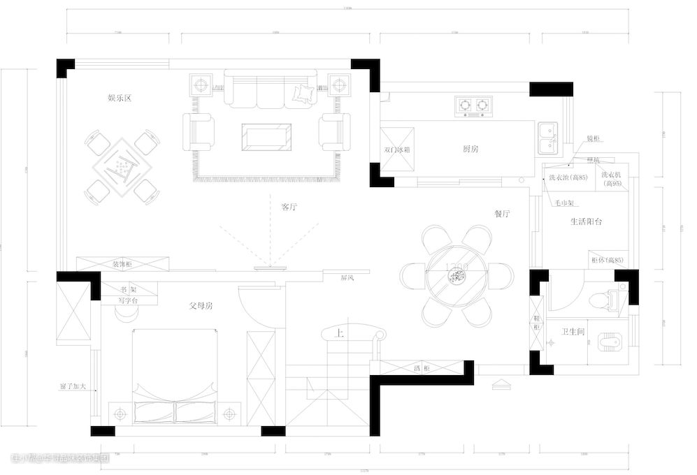
01平面布置图
设计师根据业主一家的设计要求,对这套双层别墅的内部空间进行了重新划分,做出了如下的平面布置方案:
一楼平面布置图

二楼平面布置图

方案优化:
- 别墅一层是日常生活区与业主父母生活区,布置有客厅、餐厅、厨房、生活阳台等空间,可以满足一家人的日常生活需求。除此之外,一层布置的父母房、娱乐区可以满足业主父母的日常生活、娱乐、休息需求。
- 别墅的二层是业主和孩子的生活区,设置有主卧室和小孩房供其居住。
- 别墅的二层有一块露天的阳台,在阳台上设置了阳光房、菜地和葡萄架,营造出轻松舒适的田园风光,可供一家人休息、放松使用。
02客厅

新中式风格是一种沉稳端庄但又不失现代感的装饰风格,在别墅的客厅中,选用白色作为墙壁、吊顶的主色调,让空间保持足够的亮度,这样客厅空间会变得更宜居也更有现代感。

客厅沙发背景墙画面神似中式传统的山水画,画面大气、灵动,为客厅空间注入了传统文化的神韵。
在家具方面,客厅选用了一套新中式沙发,这套沙发造型方正,外框使用深色实木制成,内部的坐垫、靠背则使用了更现代、更柔软的材质进行制作,这让整套沙发既有中式的韵味又有现代家具的舒适性,能保证业主拥有最舒适的使用体验。

客厅电视背景墙安装了一块白色的岩板,和沙发背景墙相比,电视背景墙画面更加简洁,这样一繁一简相互搭配,营造出疏密有秩、灵动华丽的客厅空间。
03餐厅

餐厅选用了一套圆形的餐桌,搭配上休闲感十足的餐椅,这些动感强烈的曲线让餐厅的氛围更加活跃,营造出更轻松的用餐氛围。在餐厅侧面定制了红酒柜,可以满足业主存放红酒的需求。
04娱乐区

娱乐区设置在别墅一层的阳台上,这里采光充足、通风良好,人在这里能获得更好的放松。今后这里会摆放一套棋牌桌,供业主父母打牌、娱乐使用。
05父母房

父母房定制了一款灰蓝色的床头背景墙,灰蓝色饱和度不高,在视觉上更加温和,高级感强烈。背景墙涂装了中式传统的画面并搭配上诗句,传递出浓浓的中式韵味,展示出业主父母不俗的品位。
06主卧室

主卧室床头背景墙使用了群山造型的画面,意境深远、大气磅礴,中式韵味浓厚。仿造传统建筑的房顶重新设计了吊顶造型,并在吊顶上安装木质横梁结构,让主卧室拥有了更浓厚的古典韵味。
07小孩房

小孩房选用了一套白色的板式家具,并在抽屉、柜门等位置使用浅蓝色进行装饰,营造出简洁、干净、明亮的卧室环境,相比于沉稳的中式风格,这种明快的卧室环境更适合年纪较小的孩子居住。
结语
由于继承了大量传统装饰元素,新中式风格拥有其它装饰风格无可比拟的文化底蕴,因此用这种风格装饰出来的住房充满文化底蕴,高级感十足。