绿都万和城丨88㎡小户型爆改新人美居
常州 枳兮设计事务所
2022-12-05

轻奢至简,
光影美居。
-
简约是一种理念,
它不仅是色彩上的质朴,
也是一种生活的态度,
而我们擅长的就是用作品表达。


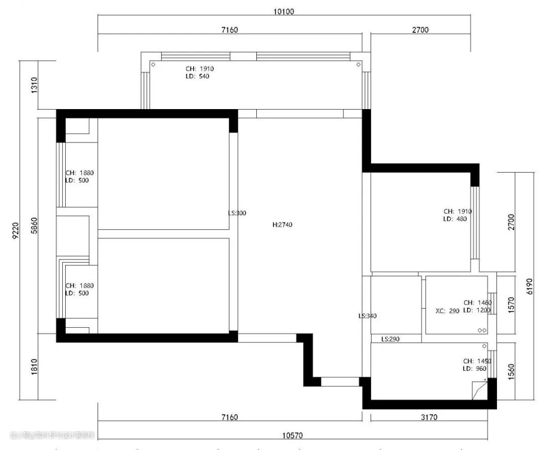
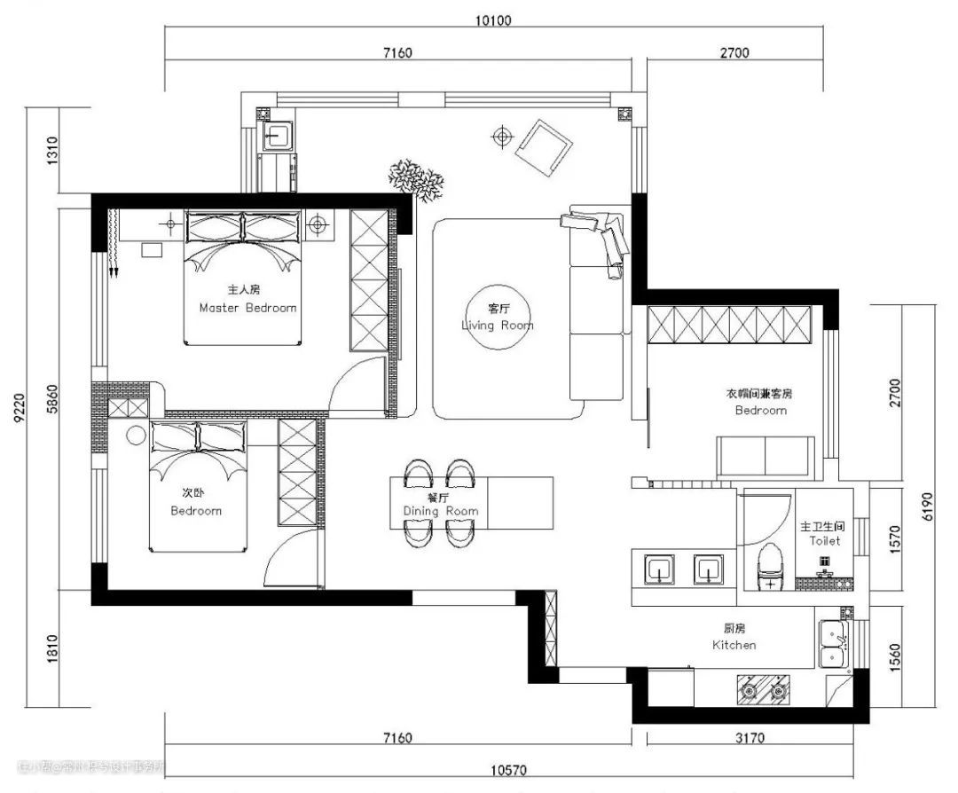
△原始户型&平面布局
• 01
New chapter
-
餐厅
入户映入眼帘的便是岛台式的餐桌,白底花纹的岛台搭配黑色岩板餐桌,辅以一字型餐吊灯,把轻奢感做出简约风。左侧将墙体内扩,增加公区面积,视觉上营造一种大户型的感觉。

餐厅色调以原木色做背景,主体用黑白灰色,简约中突出质感。

• 02
New chapter
-
客厅
客厅空间以白为底,隐藏式的灯带映射出暖色灯光,软装主打深灰色棉麻布艺质感,整体描绘出温馨舒适的同时提升高级感。

悬浮式吊顶配合无主灯设计,简单大方,增加空间层次感。

• 03
New chapter
-
外卫&厨房
外卫
外卫采用干湿分离设计,且与厨房未做墙体分隔,使空间更通透。色彩兼顾简约和轻奢,以少量花纹与线条勾勒,主体使用白与灰。
厨房
为保持整体视觉上的通透感,厨房采用开放式设计,与南侧衣帽间的透光玻璃砖墙体相呼应,增加本区域的采光亮度。

• 04
New chapter
-
卧室
主卧
主卧以暖色调为主,暖咖色的背景板和梳妆台,配以原木色地板,营造温馨的氛围。

次卧
次卧因空间较小,所以将床头柜和衣柜做了一体式设计,后期使用更方便,靠窗侧设置了置物架增加收纳区域。
