纯净白邂逅雾霾蓝,简美风格的家居,爱了爱了!
名匠家装(桂林店)
2022-12-08
这是一家三口的幸福居所,主人喜欢美式风格的优雅,也喜欢现代风格的利落,于是设计师以简美风格来定义这个家居设计,清新白与雾霾蓝的色调贯穿整个居室,深浅的变化丰富空间的层次感,营造出优雅的美式风格的气息。整个住宅开阔明亮,收纳功能强大,还原居住者一个舒适惬意的美式风格雅居。
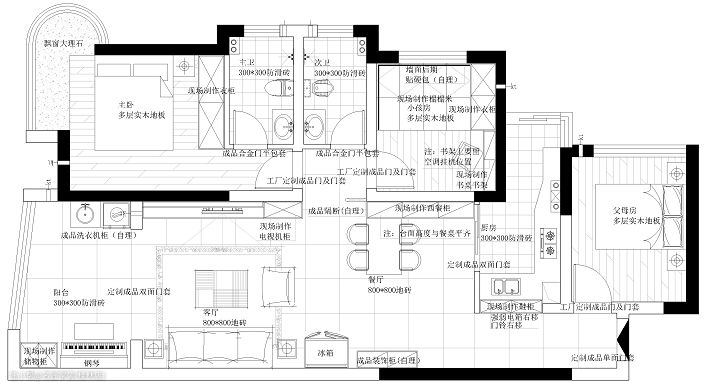
户型分析
原住宅结构较为周正,无明显户型缺陷,只在几处做了如下优化。
1、入户处侧面为次卧开门,不便设计鞋柜,将原厨房隔墙敲掉设计隔墙鞋柜,利用了空间,给生活起居提供便利。
2、原厨房面积较小,但外部连接一个小小的生活阳台,将阳台隔墙敲掉,把阳台并入到厨房空间,增加了厨房面积,让生活更加舒适。
3、原客厅阳台有隔墙,敲掉隔墙,将其并入客厅,扩展了客厅面积,并利用阳台设计出整墙储物柜,提升了空间利用率。
原始结构图

平面布置图

客厅
客厅与阳台连通
将阳光与清风自然贯穿室内
留下一室明媚
在光影的洗礼下
整个居室平添一分优雅从容

客厅局部
简美风格的家具
以优雅的姿态
给家恬然的基调
整体设计丰富而有层次
光影迷离 一室温情

客厅局部
电视背景墙以线与面的糅合
来丰富空间的层次
蓝灰色定制饰面板上墙
并以金色不锈钢条镶边
与米白色大砖上墙
相互融合交错
形成极为丰富的视觉层次感

客厅大景
客厅与餐厅相连
顶面相连
呈现更为开阔的视觉
简洁的家具陈设
让居住的动线更为流畅

餐厅
餐厅的设计极为简洁
雾霾蓝的餐边柜
提供强大的收纳功能
线条简洁的美式餐桌椅
体现自然的安逸氛围
鲜花和桌旗等配饰的装点
让用餐更有仪式感
