暖咖色调+挑高吊顶,188平现代风别墅,温馨雅致
华浔品味装饰集团
2023-01-23
新家业主性格很随和,装修这套房子是为了改善家人的生活品质。业主希望设计师让新家做到实用舒适,要突出别墅独有的宽大视野和通透的空间结构。
整体色调的话,业主比较喜欢棕色、米色这种经典沉稳大方的色调。再者就是空间布局,三层别墅楼,一共6口人,希望能将空间利用最大化的同时也要保证居住舒适度。
经过与业主的深入沟通交流,在了解居者的日常生活习惯、喜好之后,设计师结合户型特点将本案定义为现代风,采用暖咖色的色调、时尚简洁的家私和扩展挑高空间结构优势,为业主营造时尚又温馨的家居空间。

基本信息
建筑面积:188平
设计风格:现代风
户型:三层别墅
所在城市:广州增城
项目名称:逸翠庄园
项目材料:木地板、护墙板、艺术涂料、岩板、木格栅...
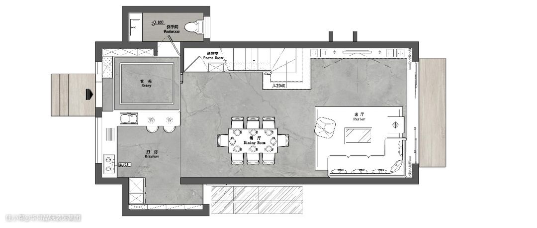
平面布置图

一楼

一楼作为主会客区,规划了餐厅、客厅、厨房。原本进门是一个大通间,右侧为厨房,设计师将原本的厨房墙体拆除后改造成一个开放式的厨房,同时与玄关相邻的位置做了一个水吧台的设计,既增添了回家的温馨感,又让两个功能区域相对独立。
二楼

因为一楼餐厅区域做了一个挑高的吊顶设计,所以经楼梯上二楼之后空间呈左右分布,左边做了一个大套房的设计,包括衣帽间、梳妆间和卫生间,同时还将阳台进行了改造,设计成了一个独立的衣帽间,非常实用。右侧则为主卧,宽敞的空间,简洁实用的布局,非常舒适。
三楼
三楼做了一个套房和两个客房,设计主要以简洁实用为主。
餐厅

设计师利用一二层楼的层高做了一个挑高的设计,墙面和天花用浅咖色的护墙板进行装饰,一盏圆环立体大吊灯将空间点亮,非常的气派。

墙面上悬挂着一幅抽象艺术画,以浅咖色为主色调,再用流畅随性的黑色线条加以勾勒,既做到了色调、线条上的整体呼应,又增添了空间的庄重感。
二楼的墙面选用了玻璃墙代替实体墙,不仅保证了采光,而且给空间增添了层次感和艺术感。
开放式厨房

入户右侧规划为厨房,设计师用立体门框的设计取代了传统的推拉门,既明确了功能区的范围,又让入户视野更加宽敞。
女业主平时喜欢带着小孩做一些饼干、蛋糕之类的烘焙,所以设计师在厨房外围做了一个L型的吧台。女业主可以带着小孩在这里享受亲子时光,优化后的空间结构,让空间显得更加饱满只用。原木色吧台桌搭配橙红色的高脚吧台椅,与空间的整体色调一致,看上去整洁又大方。
主卫

主卫用胡桃木面板和线性灯做了一个背景墙的效果,在挂上一幅金色边框同色系的装饰画,非常上档次。马桶也选择了非常高级的全自动马桶,配置标准不输五星级酒店。

如厕空间里同步设置了洗手台,深灰色条纹木饰面板、浅灰色墙面砖,不同材质的拼接让空间层次更加丰富立体。
二楼过道

二楼过道地板的选择了原木地板,墙面与门则选择了浅棕色的面板,再搭配上白色楼梯台阶,敞亮好看。

过道的墙面也选择了浅棕色的护墙板进行装饰,再加上亮色系的装饰画进行点缀,时尚又温馨。
儿童房

蓝色、黄色作为儿童房的主色调,充满了活力。床、床头柜、书桌的一体式定制设计,节省空间,满足生活需求。
花园

四周栽满绿植花卉,中间摆上桌椅,给到生活无尽的想象,成为与大自然亲近的桥梁。