锵设计 | 金石相击,铿锵其鸣
锵设计
2023-04-21
锵。
CLANGS
金石相击,铿锵而鸣。
当一个空间的设计,以完全自由的态度交付给设计师的时候,施展的手笔可以变得无限大。
如何取舍不断乍现的灵感创意,如何在主观想象与客户的被动接受中寻找平衡落点,设计不再围绕“个人”而逢迎,转而探讨对结构的重筑与人性的思考。




△客厅整体拆解图
本案位于浙江温州,一个94年单身男业主的私宅。
业主提及空间的概念,并无定向具体的考量,仅希望在尊重原结构的基础上,呈现年轻出挑,令人耳目一新的居家感受。
设计在给定方向之后往往很好发挥,反而在面对绝对自由的时候难以入手。但所幸的是业主与设计师本人的年龄、喜好都极为相似,所以在前期完全确定了基础的住房需求之后,设计大胆地跳出固有的家装思维,用建筑的方式进行空间的体块划分,使其兼具时尚与静谧感。






△客厅电视背景拆解图
项目原始的客厅面积不大,几经权衡,干脆放弃传统的沙发概念,将就座融入墙体。
经由改造,入户门、卧室门、客厅储物、就座空间以及墙面背景,五个功能概念融合于同一平面,属性的相互延伸咬合被冷静地拆解之后再度重组,得到一个极具几何冲击且实用的立面感受。


△客厅休闲区拆解图




局部瘤疤木纹搭配金属体块的穿插,极富解构张力。
面对客厅空间的局促,并没有简单地将阳台区域纳入其内,而是大胆地通过地面的抬高,划出临窗的阅读品茗区。
在大胆前卫的空间体块内,划下一处格外静谧从容的角落。
隐喻在现代都市背景下,一处可供喘息的精神领域。


一袭烈焰橙贯穿空间,成为联通不同功能区域的所在,经顶部镜面的反射,呈现出交错的泠冽质感,视线的相交与回闪,亦真亦幻,如坠梦境。




入户玄关处采用圆弧形吊顶,中间加入金属灯带,两侧灯管顶面通过镜面的设计,形成无限延伸的穿透之感,空间的边界被不断模糊,物理的界限与视觉的末端不再表达相同的意义,充满结构的空间幻觉已经初具雏形。


在材质的选择中,一反常规的家装惯用手法,大量地使用哑光拉丝银金属板与镜面板,试图在一个既有空间内,通过材质对光的吸收与反射,打破结构的框架概念,形成如同盗梦空间般的折叠幻觉体验。
而这一大胆的手笔,也映衬了当下时代的年轻人崭新的生活态度,家早已不是夜晚回家的栖身之所,更是一个承载个性表达,同时提供新奇灵感的空间所在。





最值得一提的是由客厅进入主卧的通道,通过顶面与立面的镜象反射,形成环绕式空间折叠幻觉,从而拉开感官上的距离感,打造全屋最具视觉冲击力的场域,先锋、直白的设计手法带来空间敞开且张扬的极致感受。
居住与表达的关系得到再次重申。


△主卧拆解图





待进入卧室,黑色烤漆背板搭配黑色岩石,细腻的光泽与粗犷的肌理质感,极大的反差之下是刻画真实的世态两面。
橙光如烈焰,瞬间点燃漆黑如墨的背景,重新定义卧室空间的属性,绝不止静谧的独处之所那种简单。




纵观整套空间,黑白灰的色阶对比反复上演,橙色映入,如同黑暗谭底的一束火光,代表极致的生机。




空间如人
本案就像一个大男孩一样
呈现着自信、大胆、直白且生动的状态
因为年轻,可以完全放肆地表达自我
也因为年轻,棱角分明,锐利张扬
铿锵而鸣

项目信息
项⽬名称:锵调 · CLANGS
设计公司:锵设计
项⽬地点:浙江·温州
项⽬⾯积:117㎡
主案设计:王锵力
项目摄影:张家宁
设计时间:2022.05
完⼯时间:2022.12
主要材料:亚光不锈钢,金属镜面板,亚克力,石皮,木纹板
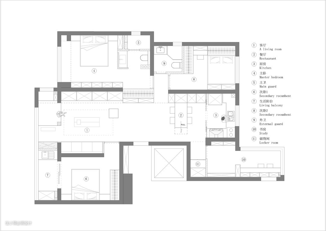
项目平面图

主案设计

王锵力
锵设计 创始人

锵设计事务所,拥有一支具有前瞻视野的团队,集合了室内,软装,产品一体化配套体系。主张结构美学及独具匠心的设计手法为主导思想,结合当下品牌,商业,住宅及不同定位需求,为不同领域的客户提供独一无二的空间效果呈现。