坐西朝东,11×16米新中式别墅,38平大套卧带来高品质生活
住宅公园
2023-05-31
想要建出一栋高质量的房屋,应该怎么做?很简单,定制设计就足以,根据自家的实际情况与周边条件做出最适配的方案,这样建造出来的房子,才是一等一的精致与实用。
今天为四川刘先生量身打造的这套别墅,便从朝向、布局、区域这三个方面进行了定制优化,打造出了这栋只属于业主一个人的品质住宅。
第一:朝向优化。受困于宅基地限制,只能从西面入户,综合考量后我们在剩余三面多增加采光落地窗,保证室内通透亮堂。
第二:布局优化。以精致作为切入点,室内仅安排了两间卧室,但配套措施均属高品质,私享露台,私享衣帽间,带来五星级的居住体验。
第三:区域优化。一层作为接待区域,二层作为居住空间,顶层便是备用区域。楼层之间互不干扰,自成一体,创造出一个宽敞且私密的整体氛围。

户型基本信息
占地尺寸:11.2m×16.9m
占地面积:130㎡
建筑面积:250㎡
建筑高度:11.5m
建筑结构:砖混结构
建筑情况:2卧室 1客厅 4卫 1餐厅 1厨房 1影音室
入户示意图:

平面布局图:
此户型朝向为坐西朝东,由西面入户。一层客厅占据优越的空间位置,三面环绕采光,室内通透又舒适。
独立卧室自带私卫,父母居住更安心。厨房与餐厅远离接待区域,动静分离式设计,更能保证室内的私密性。

二层更突出房屋的乐活与自在属性,虽说只有两间居室,但能带来极其周到的居住服务。
大主卧自带独立衣帽间与私卫,将近38平米的面积,居住其中舒适畅快。并且私人露台的配置,更能唤醒一天的苦闷,与自然相邻,感受纯真生活。
私享影音室,在家门口就能嗨翻天,享受盛夏无限乐趣。

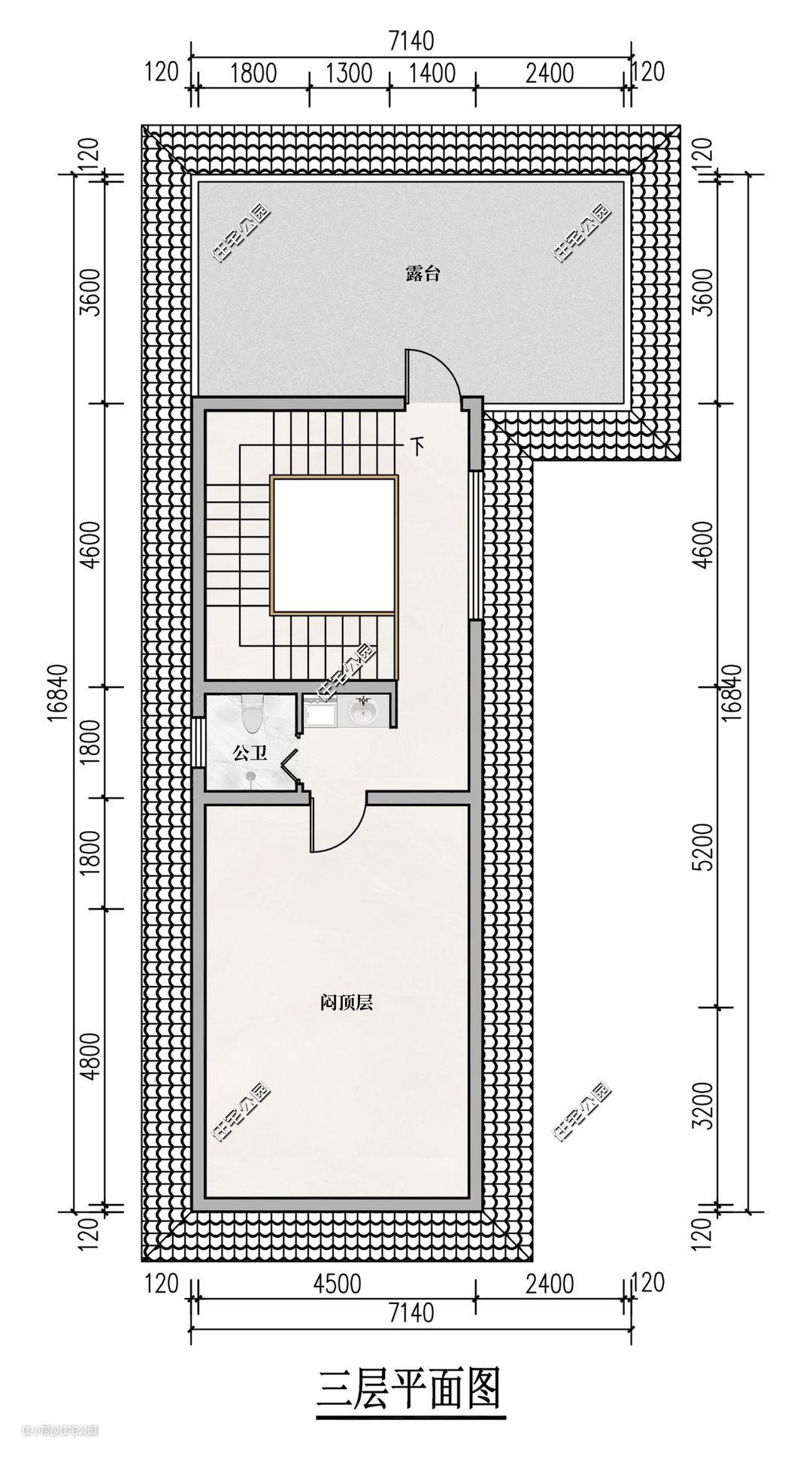
闷顶设计,满足储物收纳需求,单加公卫一间满足不时之需。后期也可根据自家的实际情况进行改造!

关注本号,更多农村自建房户型图欣赏,还有建房小知识,一手掌握。