实景案例丨130㎡现代简约,打造清新宜居空间,让你放松身心
轩怡家装丨全案整装
2023-07-06
设计亮点:
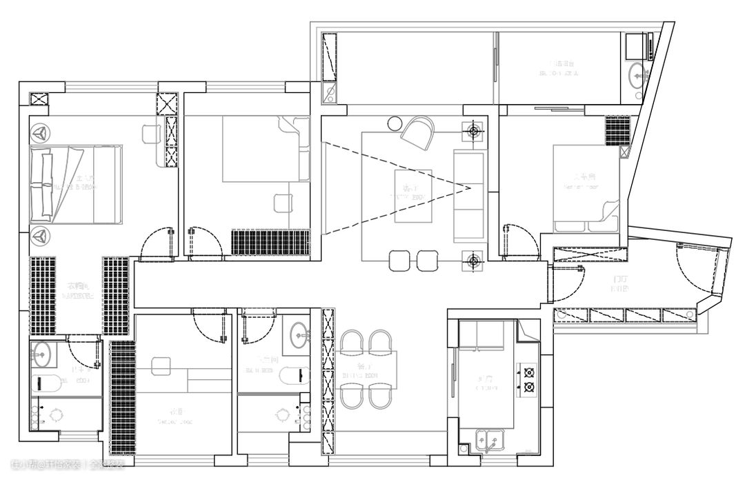
①门厅靠墙做嵌入式玄关柜,满足归家收纳;
②阳台中部改用玻璃移门隔断,隔而不断,轻盈通透;
③主卧改变门洞位置延伸过道,让出空间打造衣帽间;
④打掉卫生间隔墙,一字型布局实现干湿分离。
原始户型:

设计方案:

玄关

客厅

沿入户走廊深入客厅空间逐步展现于眼前白色+暖光+平拱柔和空间冷硬结构点点深色点缀其中营造深深包裹的静谧体验。

天花选用极简悬浮吊顶边缘做嵌入式灯带结合,精心规划的筒灯布局形成跃动多变的光影丰富空间形态。
灰蓝真皮沙发触感光滑,视觉豪奢搭配跳色花式抱枕中和蓝色带来的沉郁冷静突出视觉层次感。

一组错落摆,利用比例、形状的不同打破背景白墙的死板,赋予空间灵动抽象派元素的植入,让艺术走进家居生活营造独特的艺术视角。

L型悬浮电视柜横白竖典墙柜采用透明柜门让视觉更轻盈避免满墙柜的压抑感。
餐厅

餐区空间开阔大面积飘窗,实现对流之时亦得以揽进饱满透亮的日光,顶面延续无主灯设计搭称流线型餐桌延续极简设计语言。

米灰餐边柜完美衔接吊顶掩门柜+抽屉+组合容纳海量杂物搭配无把手设计简约大气,颜值满分。
左侧通顶玻璃酒柜既满足收纳又时尚大气中部黑色开放格与侧边黑色元素呼应一横,一竖更添空间气势。
厨房

援引玻璃作为移门阻隔油烟逸散又能透光让狭长空间也不封闭。

十字门冰箱+L型台面打造厨房U型布局墙地通铺杏子灰配同色系门板塑造人间烟火的温柔氛围。
家电做嵌入式处理搭配上墙置物架帮助琐碎物件归位还空间以整洁。
主卧

主卧色系素雅沉静护墙板+半墙设计赋予简朴空间以精致做单侧飘窗柜延伸出悬浮小桌台置物梳妆随心而行。

在前往主卫的过道嵌入两组顶天立体衣柜将四季衣物安放体贴侧采用双色色调风格。

主卫引入经典黑白搭配杏色系肤感柔光砖搭配黑色金属物件让小空间也精致有型。

移门防止水汽实现干湿分离淋浴区融入双层壁龛收纳日常洗浴用品更显空间整洁。
次卧(多功能房)
次卧以简单舒适为主轴轻松勾勒调性空间软装延续公区简明气质以灰为主,更显沉稳气质。

衣柜到顶设计简约美观收拢冬夏藏衣延伸出一字型书桌巧妙分配空间功能区块。

利用榻榻米一体化设计改造成多功能房兼顾工作+工作+收纳小空间也能有大作为。

素色肤感柜门配以凹槽拉手手感细腻,简约干净中部设计开放格随意放置几处摆件凸显业主艺术品位。
杏揉入棕灰点缀,利用中性自然的笔触营造稳敛质韵的隽永之家衬以深色软装蕴生刚柔并济的和谐之感。