35m²单身公寓爆改两房一厅,卫生间三分离
玖上零灵
2023-07-15
设计 | Designer: 亮亮&零灵
区域 | Area: 福州
机构 | Company: 玖上空间
面积 | Square Meters: 35m²
预算:15w
说在前面:
如果您不赶时间,玖上在这边细细剖析整个案子的思路和尺寸细节把控,每个空间的尺寸给到您参考,看完您一定会有收获。
这是玖上最心水的案子之一,看过玖上案子的都了解,玖上喜欢钻研小户型,花费很多精力推敲和讨论小空间家居的使用及舒适感。
此案是35平方,原户型是单身公寓结构的大通间,长方形结构,倒也方正 。初识屋主,说来也是缘分,屋主所在公司的同事们的房子,玖上竟做了十几套案子了。就如屋主所说“我问了好几个同事,他们都推荐的是同一家,就是你们,看来我是一定要找你们了“特别感谢老客户们的极力推荐。
回到案子本身来讲,先从原户型结构开始

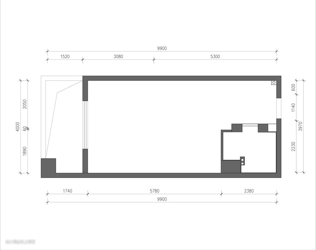
这是原户型,相信很多屋主也都了解,单身公寓户型,进门左手边是卫生间,但就卫生间来说,空间算是很开阔了。
户型优点:方正,没有承重柱,可自由发挥。
缺点:面积还是有些偏小了。排气烟道尺寸太大,不能动。
屋主需求:做两房,卫生间想要三分离,很多收纳,想要给宝宝营造一个舒适的学习氛围。
方案在推敲探讨过程中,对尺度把控也是针锋相对,为此,好在完美解决了这一系列问题,让玖上的设计师们没有干架。

这是经过N稿沟通后的最终版本呈现。
1,考虑到进门换鞋区域,在原本不大的玄关加了一排薄鞋柜,长0.58米,宽0.2米,上面也可以挂钥匙包包,后面玄关照片会有呈现。

2,厨房空间有限,洗菜池选用单盆。

3,细心屋主应该发现了,灶台对面有一个50公分长的薄柜,这么薄用来放什么?常年煮饭烹饪的屋主会懂~~~,调料瓶,各种味碟酱料,真的很多,放在台面上,太乱了。放在柜子里,太深了,不好拿。咱们这里刚刚好,够放且拿取方便,节省台面空间,还给厨房美感。

4,薄柜里侧还有一个厚柜?玖上作为有生活经验且偶尔也喜欢煮各种奇怪食物,熟知各种小家电必不可少。电饭煲,蒸蛋器,豆浆机,料理机,蒸锅.....要给它们一个合情合理的位置。
5,卫生间区域。进来是浴室柜,两侧还有放置备用清洁用品的柜子。咱们浴室柜加上台面延伸部分,长度做到1米,考虑到宝宝读书一起洗漱的情况,在有限空间尽可能的大一些。

6,马桶间区域,尺寸1.3米×0.9米。考虑到卫生清洁,选用壁挂马桶,切实无卫生死角,隐藏马桶水箱的同时,还可以放置小物件。马桶前方,利用烟道和管道的夹缝,挤出一整排层架空间,备用一整排纸巾都木用问题,安全感给你~~~

7,淋浴房在浴室柜正对面。完成面1.1米×0.9米。
8,进到客餐厅区域,客餐厅和厨房的分界线是两扇联动玻璃门,虽然咱们空间小,但不妨碍做可开放可封闭厨房不是。冰箱在紧挨着厨房的一侧,方便拿取。紧挨着冰箱是一整排顶天立地收纳柜,收纳柜左侧,是男屋主偶尔加班区域,书桌长度1米。

9,沙发区域,最开始纠结的是沙发的选样,任何沙发都是只有沙发的功能,可是咱们想要收纳啊,小空间的房子好想要大收纳啊,莫慌莫慌,要不咱们定制吧,定制收纳柜,上面再定制沙发垫,怎么样?太棒了,说干就干,不拖泥带水。

最后定制沙发总长2.9米,宽度0.86,偶尔在沙发睡觉也是很舒适啦。沙发右侧,正好可以用作卡座,卡座85公分厚度,太奢侈啦,索性拿出25公分,做书柜如何?一拍即合!
细心的屋主宝宝可能会问,玖上啊,定制就定制,为啥你们沙发下面有一段是空的?问的特别好,玖上自有道理的,屋主宝宝5岁,玩具一堆,小积木小汽车各种奥特曼,宝爸宝妈真的整的不过来,那就交给宝宝自己好了,养成自己整理玩具的习惯,空出开的部分就是宝宝的收纳箱放置处啦~~~
10,到餐桌部分了,餐桌尺寸长1.2米,宽0.7米,延伸到餐边柜的厚度是0.32米。一家三口温馨小居。餐边柜中间镂空尺寸较大,上柜是玻璃柜门,视觉舒适。

11,到卧室区域,卧室采用榻榻米形式,不用猜,猜就是你对,是的,为了收纳。
榻榻米旁边是女屋主梳妆台,长0.84米,台面下加抽屉,毕竟女孩子们的首饰也是很多的,台面上是层板加吊柜,层板可以放很多瓶瓶罐罐,面膜面霜....梳妆台右侧是一个顶天立地收纳柜,屋主宝宝可能会问,一个这么小的衣柜哪里够啊?咱们客厅不是还有一整排吗,都给卧室用嘛。

12,接下来是全家最舒适的儿童房了,房间层高2.85米,不算矮,常规床铺就只是床铺,睡觉用的,换种思路,如果说床铺,既能当宝宝的收纳空间,又能满足宝宝上下楼梯的趣味,还没有上下床那样压抑,何乐而不为呢。
床高0.95米。长2米,宽1.3米。床下收纳2.34个平方,而且!!!可以挂宝宝衣物,放宝宝车,放各种行李箱!!!太香了吧!

13,再往里就是儿童学习区,书桌长度1.3米,采光超级棒,视野开阔,也是全家最舒适区。书桌左侧是宝宝衣柜,顶天立地,长度1.8米。书桌背后是书柜,顶天立地,长度0.7米。

14,书桌右侧是到阳台区域,长1.95米。宽1.6米,也是很舒适的阳台,洗衣机烘干机叠放,顶上加收纳柜,左侧是宽敞的洗衣池,长度0.95米,这是很多100平方的房子会拥有的洗衣池尺寸呢。就是要体验感舒适!
