开关插座选购、布置一次性搞明白!实物拆解、布置案例统统都有
记录生活点滴
2023-07-25
本文字数约7100字,篇幅较长建议大家先收藏,以后打算装修了,只要翻出来看看,开关插座的选购、布置就可以一次性搞明白!
开关插座虽小,但在装修中却是至关重要的一步,开关插座不仅要选好,更要合理布置,这样在日后使用中才会更安逸。即使你装修预算有限,在开关插座上也不能省钱,要不几年后烦死你,到时候这个开关不灵,那个插座不能用,自己买个新的又不会换。

这几年我写过好几篇关于开关插座的文章,自己也入手了各大品牌各个系列的开关插座,家里一找就是一大箱,我也想知道到底哪些开关插座值得买入手。这下终于有了用武之地,我自己买的房子也准备装修了,所以我把全屋开关插座的选购提上了议程。
评判一款开关插座好不好,除了外表能看到的,唯独只有拆解了,拆解后才能看到开关插座内部的构造,而往往就是这些我们平常看不到的才会成为缩水的对象,插套、拨杆、保护门、接线端子等等都需要拆解后才能看清庐山真面目。

上图为ABB轩璞系列插座拆解后的全家福,它由面板、固定架、金属支架、底座、插套、保护门、接线端子组成,总共有17个大小部件组成,每个部件都关乎到开关插座的整体质量以及耐久性。所以开关插座虽小,但你千万别忽视它,在日常生活中你会频繁使用它们,一旦有哪个开关插座罢工就会影响到日常生活。
今天我要和大家分享下开关插座的选购攻略和安装布置,选购是第一步,如果选得不好,那么布置得再合理也是白搭。而好的开关插座也需要合理的安装布置,才能真正发挥出它的作用,这样在日常生活中使用起来也会更安逸。
一、开关插座选购篇
1、品牌

先来聊聊开关插座的那些品牌,目前市面上无非就国外、国内品牌两大阵营,看各大平台上的销量似乎国外品牌要略胜一筹,像西门子、ABB、施耐德、松下、西蒙、罗格朗都是大家耳熟能详的品牌,国内品牌主要有公牛、德力西、欧普、正泰,这几个品牌相对销量好点。各大品牌下又有多个系列,它们在外观、用料、功能、价格等方面各有差别,可以满足各个层级用户的使用需求。
以上各大品牌的一些系列我都有买过,也都拆解过,得出的结论就是一分价格一分货,贵确实有贵的道理。贵的开关插座内部用料确实比较扎实,当然也遇到过个例,个别销量很好的插座,拆开后发现所用插套竟然很单薄,下文中有比较,大家可以仔细阅读。
在选购开关插座时,一定要选择主流品牌购买,这些大品牌在质量、售后等方面会更有保障。
2、种类

开关插座种类繁多,主要可以分为开关、插座、弱电、电子、配件这五大类,用到最多的就是开关类和插座类,弱电类和配件类相对少点,电子类一般家庭估计也用不到。
开关主要根据按键数来分,有一开、双开、三开、四开,还有单控、双控之分,个人建议选一开、双开的,最多三开,四开的建议优化成两个双开的,因为四开不仅不美观而且容易误按。至于单控、双控,推荐大家都选双控的,差不了多少钱,但可以省去不必要的麻烦。
插座一般最常见的是五孔插座,不过也分正五孔和斜五孔,斜五孔插座的孔距会更大。常规五孔插座都是10A的,空调、热水器等大功率电器需要使用专门的16A三孔插座。厨房的插座建议大家选择带开关的插座,使用起来会更加方便。现在这几年,带USB的插座也越来越多,而且有些还支持快充,像这次我购入的ABB轩璞系列的带USB插座就拥有20W Type-C快充口,可以方便地给手机等数码产品充电。
弱电插座主要是一些网线、电视、电话插口,建议买两个组合的,不仅节省位置还更加美观,像电视旁就可以选择网线和电视组合的弱电插座。弱电插座价格相对较贵,建议大家合理布置,避免多花冤枉钱。
电子和配件类的就不多说了,电子类的一般家里用到的比较少,配件类无非就空白面板和防水盒,根据需求选购就行。
3、外观

颜值即正义,我相信多数小伙伴在选购开关插座时最关注的就是外观。市面上的开关插座基本就白、灰、金三种色系,白色最普遍,金色显奢华,灰色显气质,这几年灰色比较流行。我感觉很多小伙伴的思维都被固化了,其实完全没必要做到全屋开关插座都是同一个颜色的,可以根据墙面颜色来分开选择,例如客厅可以选白色的,卧室可以选金色的,卫生间可以选灰色的,我这次就入手了白色、灰色两种色系的开关插座。
除颜色外,开关插座面板还有光面和哑光之分,上图左侧的是ABB盈致系列,面板为光面设计,右侧的是ABB轩璞系列,面板为哑光设计,表面还覆盖有UV保护层。怎么说呢,我觉得两种面板各有优劣,光面的相对更亮丽,但比较容易产生划痕;哑光的给人的感觉更有质感,而且也不容易产生划痕,持久如新,我个人更喜欢哑光面板的开关插座。

各个品牌系列的开关插座在外观细节设计上会有所不同,例如在圆弧、倒角、荧光块、logo等设计上,在审美上主观性占据主导位置,所以这个就看大家自己的选择了。还有就是开关插座的厚度,这点也值得关注,太厚的开关插座上墙后会比较突兀,影响美观,这次我选的ABB轩璞系列采用了超薄设计,厚度仅4.8mm,安装上墙后整体感很不错,大家可以看看上图的对比,ABB轩璞系列确实要比普通的开关插座薄很多。
4、用料

在用料方面,只要选择的是正规品牌的开关插座,那所用材料肯定是阻燃的,市面上主流品牌的开关插座面板和固定架基本都是采用的PC材质,底座除了PC还有采用PP、PA6材质的,在这些塑料材质中要属PC的性能最佳,即使同为PC材料,也有优略之分,这点可以通过燃烧来比较。在一些高端开关插座上,还有采用金属支架的,像我入手的ABB轩璞系列就采用了锌合金支架,金属材质支架在阻燃和强度方面肯定要完胜塑料材质。
5、固定架

固定架的设计主要是用来衡量开关插座的强度,固定架设计越密集,开关插座的抗挤压性肯定也越好,上图中挑选了三款具有代表性的插座做对比,左侧的固定架较密,中间的相对稀疏些,右侧的则是采用了金属材质,抗挤压性右>左>中。

我这次新家装修入手了ABB的轩璞系列,无论是开关还是插座全系均采用了锌合金支架,金属支架强度要远高于塑料材质的。
6、插座:插套、保护门、插孔间距、插拔体验

对于一款插座而言,最重要的就是内部的插套,插套是电流载体,说形象点就是插座的心脏。小小的插套也大有乾坤,插套的材质、样式、厚度、宽度、重量都将直接影响到插座的使用。市面上主流品牌插座的插套基本都是采用锡磷青铜材质的。

拆解了各大品牌的几个插座,挑两个极端的来对比下。上图为两款插座的三孔地线端插套,左侧较为粗壮的是ABB盈致系列,右侧看着很单薄的则是松下悦宸系列,差距十分明显,ABB的几个系列插套用料都很厚实,而松下的这个系列拆出来后确实让我大跌眼镜,原本还打算选择松下的。所以说,开关插座只有拆解了才能见分晓。

再来称下插套的整体重量,左侧为ABB盈致系列斜五孔插座的插套,重量为8.2g,右侧为松下悦宸系列斜五孔插座的插套,重量为7.0g,整整差了1.2g,差距明显啊!

不管是哪个品牌的插座,都是设计有保护门的,保护门可以有效防止孩子拿金属物插入插座,避免意外发生。目前市面上主流品牌的插座在保护门设计上都是大同小异的,在安全防护上都没问题。

插孔间距是个老生常谈的问题,早些年都是正五孔的,现在流行斜五孔,因为斜五孔的插孔距离会更大,二孔、三孔插座同时使用也妥妥的。

其实现在的局面是斜五孔和正五孔插座并存,斜五孔插座的出现倒逼正五孔增大了二孔、三孔之间的距离。上图左侧的是ABB轩璞系列插座,右侧的是西蒙M3系列,轩璞系列为斜五孔设计,M3系列虽为正五孔设计,但间距看着也挺大的。


来实测下二孔和三孔之间的距离,ABB轩璞系列插座实测约为25.8mm,西蒙M3系列实测约为23.0mm,看样子还是斜五孔设计更具优势啊。
另外还有插座的插拔体验,这个跟保护门和插套设计都有关系,插拔松紧讲究恰到好处,太松太紧都会影响到日常的使用体验,建议大家在选购全屋开关插座时可以先买个样品来试试。
7、开关:拨杆、按键体验

再来看看开关,如果说插套是插座的核心,那么拨杆就是开关的核心。拆了不少开关,开关的拨杆大致有以上三种形式,左侧的是ABB轩璞系列开关,采用了拨杆设计;中间的罗格朗逸景系列开关,采用了拨刀设计;右侧的是公牛G12系列,采用了翘板设计。
下面给大家演示下三种不同设计的开关在工作时的开合原理。
拨杆设计的开关在工作时的开合。
拨刀设计的开关在工作时的开合。
翘板设计的开关在工作时的开合。
无论是碰触可靠性,还是拨杆的结构设计,我觉得采用拨杆设计的开关要更胜一筹,使用寿命也会更耐久,拨刀设计的次之,翘板设计的相对更弱些。

开关的各种细节设计最终带给给我们的就是按键体验,除了受拨杆设计影响外,开关按键的键程也会影响按键体验,短键程的开关体验相对会更好。来对比下两款开关,左侧的是ABB盈致系列的开关,右侧的是施耐德皓呈系列,ABB盈致系列开关采用了1.7°小摆动角设计,所以键程很短,按起来干脆利落,体验十分不错;而施耐德皓呈系列开关可以算是普通开关的代表,市面上多数开关的按键都是如此设计的,按键体验相对会差些。不知大家有没有发现,常规开关在关闭时都是呈一定角度倾斜的,而ABB盈致系列则是纯平的,美观度会更好,可见ABB的设计师把美学设计运用到了极致。
8、接线端子

开关插座背面的接线端子也不容忽视。目前市面上的开关插座主要有鞍型端子和螺丝压线端子两种,相比之下,鞍型端子要更优,螺丝压线端子更容易伤到电线。一般中高端开关插座都会使用鞍型端子,低端产品则会使用螺丝压线端子,推荐大家选择鞍型端子的开关插座。
9、阻燃性
最后就是开关插座的阻燃性,理论上所有开关插座都应该阻燃,区别只是阻燃性能的优劣,例如遇火燃烧程度、燃烧黑烟量、离火燃烧情况以及烧毁程度等等,这主要是开关插座用料好坏所导致的,进口的PC料阻燃性能会更出色些。
二、开关插座布置篇
讲完开关插座的选购攻略,接着给大家分享下开关插座的安装布置。开关插座的安装布置也大有学问,开关插座装多高最合适、哪些位置需要预留插座等等,开关插座布置得合理,日常使用才能更安逸。
1、开关插座最佳安装高度

开关插座的安装高度很重要,这将直接影响到日常使用的舒适性。上图是网上广为流畅的一张开关插座安装高度参考图,图中给出了那些常用的开关插座安装高度,还是十分具有参考性的,不过有些开关插座大家可以根据实际情况进行调整。
家居装修中一般灯具开关安装高度在1.3~1.4米之间,床头开关的安装高度在0.8~0.9米之间,墙面插座的安装高度在0.3米,壁挂空调的插座安装高度在1.8~2米之间,厨房台面插座安装高度距台面0.3米为宜,油烟机、电热水器的插座可以隐藏到集成吊顶上面去。大致就以上这些安装高度,有些开关插座的安装高度可以和装修设计师具体沟通,毕竟他们才是专业的。
2、开关插座布置避坑点
在装修图纸上,设计师会标明全屋的各个开关插座,建议大家一定要自己逐个看一遍,然后再结合自己日常的使用习惯校对一遍,看看有没有遗漏的,一旦装修完成你再想增加开关插座就麻烦了。特别是插座,网上甚至有人建议插座宁可多装不可少装,说得也有点道理,不过我还是建议大家合理安装,关键还是要考虑全面,避免漏装。
下面给大家分享一些开关插座的布置避坑要点,以免留下漏装开关插座的遗憾。
①厨房水槽下:一定要预留插座,而且还得预留两个,即使你现在没考虑在水槽下安装电器,保不准以后就有需要了,水槽下可以安装厨余垃圾处理、净水器、小厨宝等等,所以最好预留两个插座。
②马桶旁:建议预留一个插座,后期安装智能马桶盖会方便很多。
③厨房墙面:建议多预留几个插座,最好安装带开关的插座,这样可以避免频繁插拔,使用起来会更方便。有条件的小伙伴还可以上轨道插座。
④窗帘旁:现在智能家居越来越普及,建议大家在窗帘旁预留一个插座,日过如果安装电动窗帘直接插上就能用了。
⑤飘窗处:建议在飘窗旁安装插座,这样以后就可以安逸地坐在飘窗上喝茶看风景了。
⑥天花板:如果你打算安装摄像头,那么切记要在装修时预留好插座位置。如果你打算安装投影幕布,那么插座也不能忘了。
⑦玄关处:建议在玄关台面旁至少预留两个插座,不管是给手机充电,还是用作其他,都会方便很多。
⑧鞋柜旁:最好预留一个墙面插座,可以用来给烘鞋器供电。
⑨沙发旁:沙发两边的墙面上一定要预留插座,而且插座位置需要根据沙发宽度来预留。也许你以后会装个落地灯,或者会入手电动沙发,那么之前预留的插座就会派上大用场。
⑩床尾:床尾墙面建议预留插座,夏天使用电风扇、驱蚊器会方便很多。
⑪弱电箱:弱电箱内肯定得预留插座,我建议预留2个,现在光猫、路由器要用电,甚至还有NAS。
⑫餐桌旁:餐桌附近一定要预留插座,要不会影响你冬天吃火锅。可以把插座预留在餐桌旁的墙面上,如果餐桌不靠墙,那可以在餐桌底下设置地插。
以上这12点只是我抛砖引玉,大家可以根据自己家的实际情况进行取舍,更多开关插座的易踩坑点还有待各位小伙伴在评论区交流!
3、插座布置实例分享

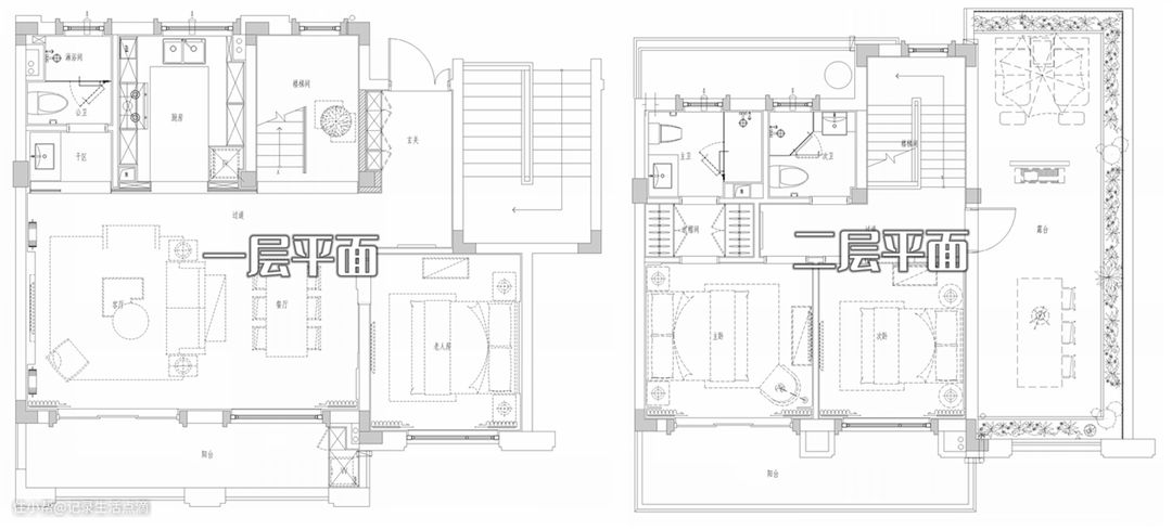
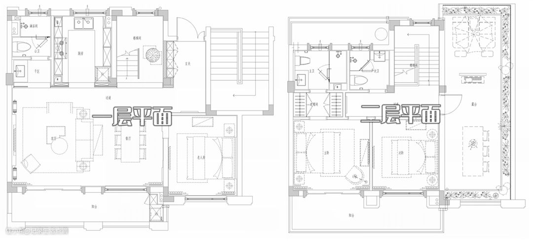
最后再跟大家分享下我家的插座安装布置实例。开关就不多说了,根据灯具来设置就行,无非一些卧室的开关需要使用双控开关,所以主要还是插座的布置。这次我家装修,对于开关插座这部分图纸我也是看上看下了,生怕遗漏了什么,设计师前后也改了好几版。我家是楼上楼下二层的,其实算上地下室有三层,地下室属于赠送面积,有待进一步改造,所以这版图纸上暂时没放上去。
下面就把插座的最终布置方案分享给大家,每个房间的插座布置都有一定的特点,所以下面把各个功能的房间都和大家分享下,希望能给到大家一定的参考。

客餐厅区域:电视墙面建议预留2个插座,电视、机顶盒、游戏机都要用电,一个插座肯定不够用。还要安装一个网络和TV的组合插座,如果你不打算装数字电视,那么建议换成两个网络接口的插座。沙发两侧要预留插座,我家沙发未靠墙放置,所以只能设置地插,确定插座位置时一定要提前考虑好沙发宽度,后期挡住就尴尬了。由于餐桌是悬空放置的,所以只能在餐桌底下设置地插。客餐厅墙面还预留了多个插座,后期给空气净化器、扫拖机器人、洗地机等家电供电会方便很多。


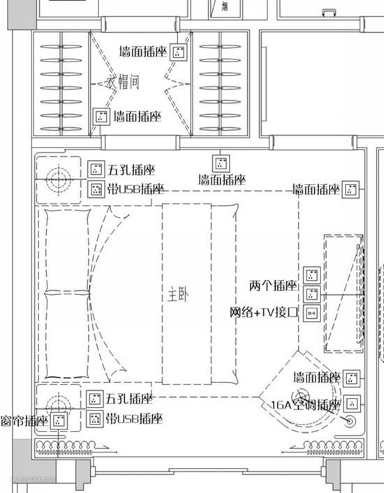
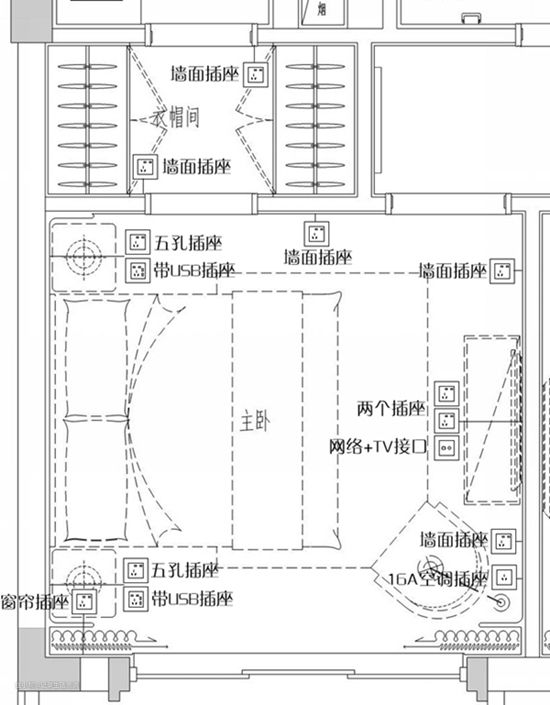
卧室区域:床两侧各设置一个五孔插座和带USB插座,可以供台灯使用,手机直接插USB充电也会更方便。电视机旁设置两个五孔插座,外加网络和TV接口组合插座,同客厅布置。如果家里没安装中央空调,那要根据位置预留16A的空调插座。由于我打算安装电动窗帘,所以窗帘旁也预留了插座。另外,可以根据实际情况在各面墙上预留几个插座,这样以后使用电风扇、空净化器等家电会更加方便。另外,衣帽间的插座千万别遗漏了。


厨房区域:厨房是插座安装的重点区域,台面上方建议多装几个插座,毕竟日常生活中可能会有很多厨房小家电需要使用。水槽底下设置了两个插座,我打算安装净水器和厨余垃圾处理器,一个插座完全不够用。燃气灶下面设置了一个插座,是用来给洗碗机使用的。油烟机的插座可以设置在吊顶上面,日常使用也不会去插拔。

玄关区域:在玄关台面上面我设置了一个五孔插座和一个带USB插座,五孔插座是给智能摄像头使用的,带USB插座主要是方便给手机充电的。在玄关的两处墙面上还设置了2个插座,以备不时之需。
卫生间区域:卫生间主要是马桶旁的插座容易被大家疏忽,我这次装修家里每个马桶旁都预留了插座。水槽上方的插座建议加装防水盒,这个插座主要是给电吹风、电动牙刷充电使用的。我打算安装电热水器,所以16A的三孔插座也得安装。

阳台区域:阳台主要的用电设备就是洗衣机,现在有条件的都会上洗烘套装,所以我设置了两个插座。在吊顶下方安装了电动晾衣架专用的插座,另外还在墙面上预留了两个插座,万一夏天在阳台乘凉,还能吹个风扇。
全屋开关插座的购买规格及数量装修公司会给你提供清单,你按清单购买即可,一般多买了都是可以退的,购买前最好和商家确认下多少时间内可以退货。
三、个人选购思路分享

以上就是开关插座的选购、布置的全部内容,开关插座选得好,使用更长久,开关插座布置得合理,那么在日常生活中使用起来会更安逸。

开关插座虽小,但它在全屋装修中占据着主导位置,所以在选购开关插座时不能抠抠搜搜,要舍得在开关插座上花钱,贵真的有贵的道理,价格就是商家和消费者之间的博弈,如果定价离谱,消费者肯定也不会买单了。像上图这款ABB轩璞系列的带USB插座,价格确实不便宜,但真的很好用,它拥有20W Type-C快充口,连快充头都省了,给手机充电真心方便,要是在公共场所也都配置这样的插座,那就没有电量焦虑这回事了。


最后来分享下这次我家装修选购开关插座的思路。其实我也物色了很久,从外观颜值到内部构造,再到价格,我也是经过了精挑细选。几大品牌的各个系列我都仔细研究过,其中很多还拆解过,最终把范围缩小到了ABB的轩璞系列和盈致系列。
轩璞系列:颜值确实没得说,2.5D弧形曲面设计的面板,再加上4.8mm的超薄设计。哑光面板上还覆盖了UV保护膜,让开关插座历久弥新。这个系列的开关插座支架均采用了高强度的锌合金,大大提升了结构强度,带USB插座还支持20W Type-C快充,就是价格略微偏高。
盈致系列:颜值也不错,采用无框大面板设计,1.7°小摆动角设计大大提升了按键舒适度。这款开关插座价格不贵,但拆解后发现内部构造用料很足,极具性价比。如果你对开关插座没什么特别要求,只求好用,那选盈致系列准没错。

犹豫良久之后,本着一份价格一分货、开关插座要舍得花钱的两大原则,我最终还是入手了ABB轩璞系列作为这次装修的全屋开关插座,在颜色方面选择了白色和灰色两种,根据墙面色系来匹配,深色系的房间选用灰色开关插座,浅色系的房间选择白色开关插座,确保装修风格的一致性。
ABB的轩璞系列和盈致系列其实都挺不错的,只是定位不同,可以满足不同消费者的需求,轩璞系列适合追求品质的用户,盈致系列适合追求性价比的用户。当然其他品牌也有不少值得入手的系列,后续我还会继续分享开关插座的干货,关注我不迷路!