125㎡极简风,简单的精致与美好!惊艳了时光,温柔了岁月
福州生活家装饰旗舰店
2023-07-29
本案居住者是一家四口,家里有两个孩子,夫妻都是从事摄影行业。在诉求上:①喜欢现代简约风格;②希望在家也能有一个良好的办公环境;③希望孩子能够有一个舒适的居住及活动空间。

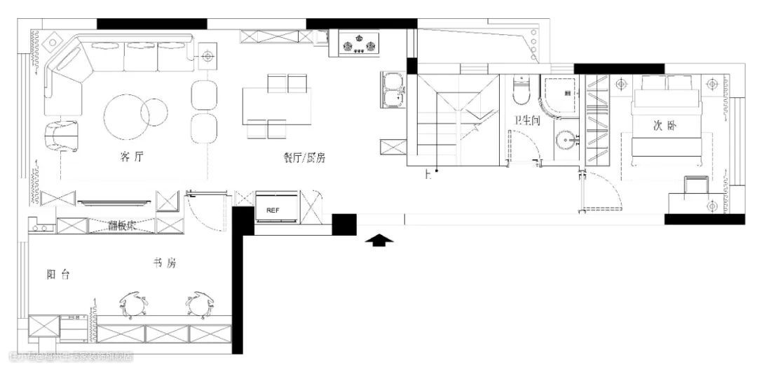
△原始结构图 平面设计图▽


通过原始户型发现,本案为两层复式,单层60多㎡,南北通透,一层为客餐厅厨房一体,比较舒;二层大主卧空间通透,采光好。
设计师在设计方面,①保持客餐厅一体不隔断,空间开阔舒适;②把阳台打通封成落地窗,采光变好,显得客厅通透又精致;③家庭洗衣房+书房,一屋两用,将空间利用率最大化。
客厅






整个客餐厅减法设计,做双眼皮吊顶不积灰;提前开好轨道灯槽,磁吸灯后期内嵌,搭配无主灯增加空间层次感;全屋通铺瓷砖整体性强,空间开阔通透,更和谐美观,营造出高级,独具品味的氛围感。


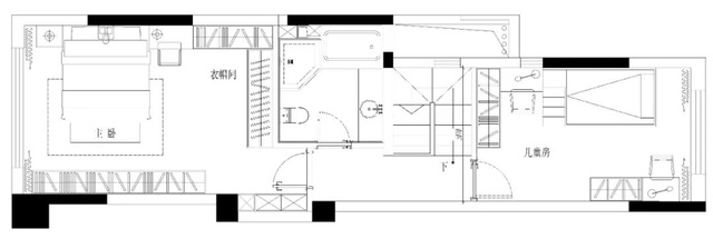
设计师采用黑色石材踏步、黑色不锈钢扶手、灰白色格栅、氛围灯及装饰画,虽然上楼的时间很短,但也要好好的装点空间,给生活一点仪式感,让生活更美好。
厨房&餐厅





打造开放式厨房,将客餐厨连为一体,增加空间延展性及开阔性的同时,也让在烹饪美食的人可随时与客餐厅的人保持互动,既忙碌又温馨,还可享受难得的亲子时光。
办公区&电竞房



因客户夫妻都是摄影师,他们需要独立的安静的办公环境,设计师设计时根据业主的需求,考虑到要劳逸结合,也因空间有限,设计师打造了集办公、休闲娱乐、洗衣房功能为一体的三用空间,将空间利用率最大化的同时,也让业主的生活更便利舒适。
主卧







根据女主人的需求,主卧内设置了衣帽间,以满足日常生活的需求也增加了收纳空间。卧室整体采用灰白色系的定制柜,选用按压式门板、肤感面板,视觉效果显得柔和温馨。搭配多功能床头柜、创意感十足的床头灯及梳妆椅,让空间更显时尚的同时,也让生活更舒适。
次卧


次卧空间配色及风格与整体保持一致,让全屋的空间感更显统一。
儿童房


因为业主的孩子并不大,设计师考虑到以后空间的成长性及多元性,并未对儿童房进行过多的设计,仅仅是满足日常的收纳需求,所以整个空间显得有点过于空旷,但这恰恰满足了现阶段孩子的需求,让他们有一个独立的空间可以尽情的玩耍吵闹。