户型分析-220平大平层户型解析~
苏州东易日盛总部
2023-08-04
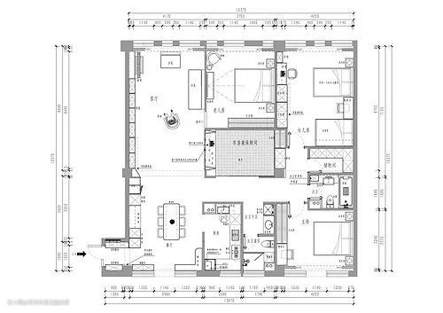
将高雅纯粹的设计理念化为大面积白色与木色的和谐搭配,木质的原始美与现代的时尚感完美结合,为居者带来舒适平和的感受。



- 入户靠墙做鞋帽柜、衣帽柜、穿衣镜和折叠换鞋凳,增加入户功能区。
- 厨房门洞整体向一侧移动,解决入户门对厨房门的问题。厨房做推拉门、U型橱柜,增加厨房收纳空间及操作区。
- 原过道处隔出独立空间做书房。书房靠客厅方向砌半墙,做留窗设计,靠窗打造书桌。
- 两个南向卧室做老人房和女儿房。老人房房门采用隐形门设计,不影响客厅空间的整体性。将女儿房一侧墙体整向内移动,压缩女儿房空间,做独立储物间,原主卫门改到过道方向。
- 次卫干湿区隔断墙体整体向湿区移动,增加干区面积,使干区有足够的空间放置洗衣机、烘干机和浴室柜。