超接地气儿的装修,值得借鉴!
今朝装饰世纪金源店
2023-08-07
这是一套入住后的案例拍摄,虽然看上去没有那么“干净简单”,但正是因为入住后,真实的生活需求才得以体现。
充足的收纳,以及丰富的插座布局满足了各种大小家电,足以体现前期的设计用心。所以,希望大家在阅读时,可以看到设计上的小细节哈。
正文开始
男主有在家办公需求,一个独立、安静的工作空间必不可少;“独立衣帽间”“卫生间干湿分离”“ 各种家用电器妥当安排”则是更注重家务整理的女主人的要求;至于孩子,睡觉、学习、玩耍、储物空间,当然要一应俱全。

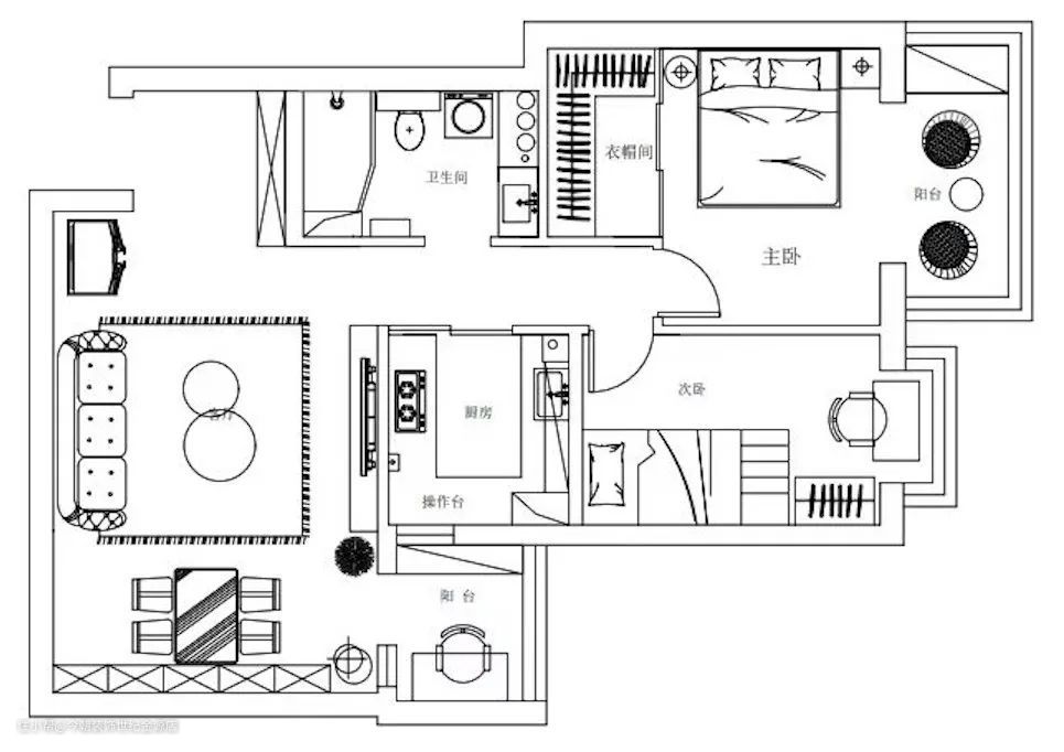
原始户型图△

改造后的户型图△
在本案例中,没有复杂的吊顶设计,而是根据不同空间和作用,应用主灯、明装射灯、筒灯、洗墙灯等多种灯光设计,通过对环境氛围、空间层次的渲染,让家拥有多种情绪表达。

客餐厅并无明显分区,而是利用定制家具的优势让有限面积得到有效利用。如餐厅折叠餐桌可根据使用需要随时抽拉。一侧定制柜集储物、收纳、展示等多功能于一体。


配合通铺地板的卧室和客厅地面,让“家”的温馨感爆棚。

玄关下沉做落尘区
干净又好用
玄关下沉5公分做落尘区——与防盗门齐平,作为连接室内外的过渡区。落尘区既是玄关区又是特殊时期的消杀区,真正做到了室内无菌无障碍,保证了室内相对优良的环境。

入户玄关区选择了丰富多彩的笑脸太阳花图案,给小空间增加趣味性。这里也在暗示,无论进门出门,大家都要保持好心情。

玄关柜分布在落尘区,在这里可以直接完成换鞋服、放物品的动作,防止室内空间秩序被扰乱。
双向放大空间的宝藏设计
只需拆改一扇阳台门
改造前,厨房定制柜呈L型,操作台面较小,厨房阳台也没有得到有效利用。
厨房进口改为推拉门且由中间进入,此外厨房与阳台之间利用半墙封堵。

这样一来,厨房就由一开始的L型优化成U字型,让原本浪费的过道充分利用,储物瞬间翻倍,从而实现厨电自由。

厨房阳台利用半墙封堵后,再安装窗户与厨房独立开来,同时与客餐厅互通,作为男主人独立的办公区,既能在工作时不被打扰,又能和餐厅、客厅互动。

卫生间门洞平移,不仅满足了干湿分离同时也充分利用了空间,与此同时也利用管道区增设了壁龛,从而解决了卫生间一部分置物的功能。


白色作为主色调,绿色点缀,有一种置身于大自然的感觉,干净又清新自然。

爆改“刀把型”卧室
轻松多出一个衣帽间
门的开启位置尤为重要,从设计图可以看出,同样的门装在不同的位置,美观性和实用性截然不同。


原主卧呈现所谓的“刀把”型,改变原有门洞,分一席之地设计独立衣帽间,不仅使得主卧方正,更是增加了过道的采光和通风效果。


儿童房在满足储物之后,还要有基本的学习、娱乐空间。书桌、书架、小黑板统统安排。而儿童高架床单上层床的好处就是,下面空出的面积刚好供孩子娱乐。


在这个温馨的三口之家,更讲究简单实用接地气,有足够的收纳来保持干净清爽的生活感,也有变化丰富的灯光来调节生活氛围,十分惬意。