125平现代奶油风老房改造,打造有格调的舒适空间。
我乐装饰
2023-08-07
项目信息
项目地址 address | 大光路17号
项目面积 area | 125㎡
项目类型 type | 老房翻新
项目设计 design | 周高群
原始格局:
这是一套老房翻新案例,原始户型中,客厅在次卧和餐厅的中间,采光和通风严重不足,室内阴暗,收纳不足。

(原始户型图)
业主需求:
业主希望优化空间格局,在解决客厅光线阴暗和收纳问题的基础上,提升空间的质感。
设计师与业主沟通后,选择了温柔干净的现代奶油风。保留现代简约设计风格的基础上,增加奶油色的使用,打造了一个有格调的温柔空间。

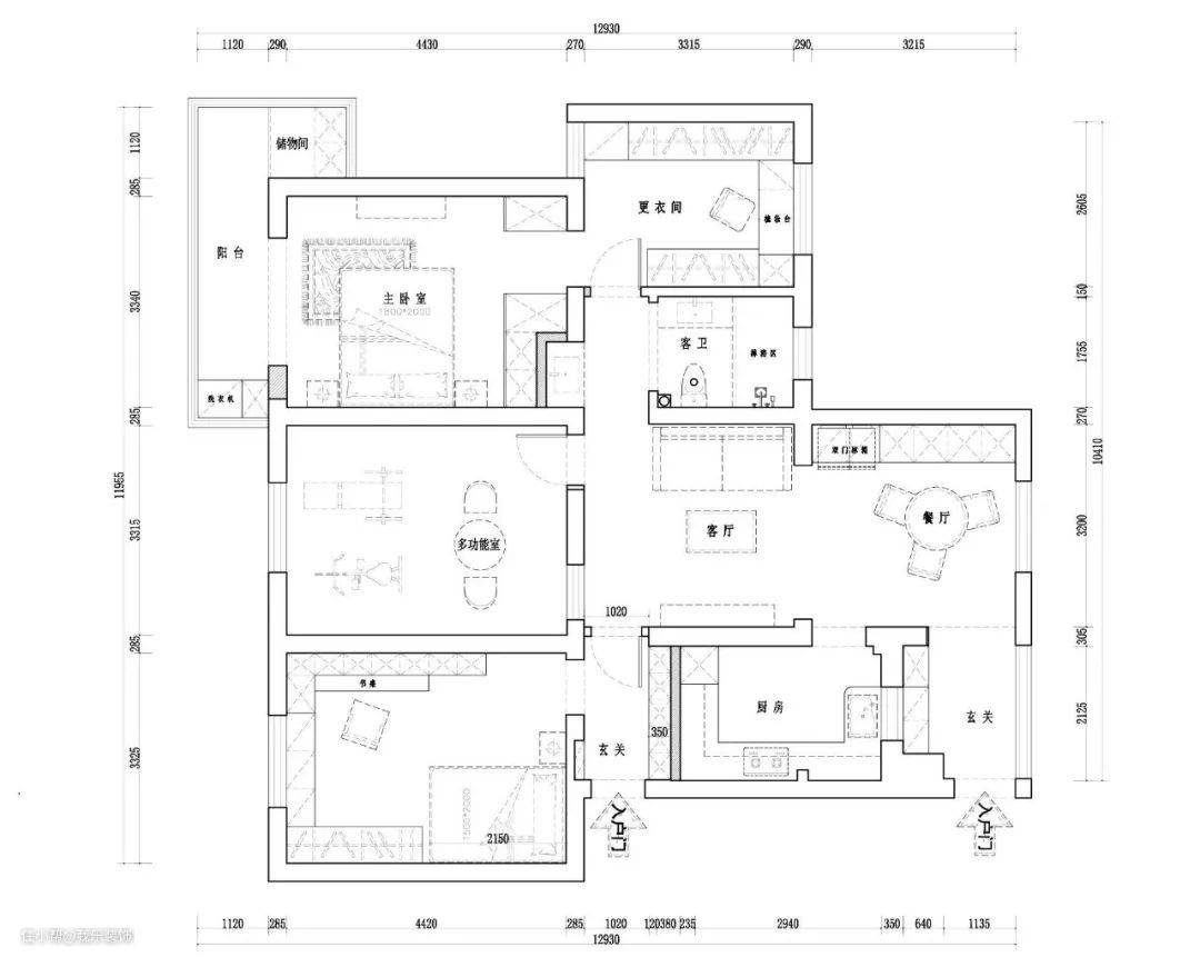
(平面设计图)
01玄 关

玄关做了高中低落差设计,高柜到顶,中间镂空,摆放绿植与杂物。半高处正好与阳台窗户齐平,不阻碍厨房的光线。低处做换鞋凳,底部留空好放鞋。整个空间,层次分明不凌乱,奶白色的柜体干净素雅。
02客餐厅

温柔细腻的配色是奶油风的灵魂。大白墙搭配白色落地窗纱,与浅黄色木地板相呼应,搭配原木色的家具,轻松营造出清爽自然的空间格调。


解决客厅采光问题:
1、将客餐厅打通,将次卧靠客厅的一面墙增加一个窗洞。将三个空间连通起来,南北通透,光线充足,通风性好。
2、增加辅助光源,除了客厅主灯和餐厅吊灯之外,在吊顶上增加射灯,让房间亮起来。
3、通铺浅黄色木地板,这种色调对采光不挑剔,和各种家居风格都能完美搭配。
03主 卧

淡雅温柔的黄色系包裹着整个主卧,阳光照在胡桃色的实木床上,温馨中带着一些复古。米黄色的墙面,暖白的窗帘,浅黄的地板,和谐统一。自带奶呼呼的视觉效果。

主卧和阳台打通,作为生活阳台使用。不仅增加主卧的采光,还可以让视觉效果变得更加敞亮大气。
04儿童房


儿童房以白色为主色调,定制的纯白书桌和书柜的设计,为孩子提供了一个舒适轻松的学习与阅读空间。通顶式衣柜,节省空间又极大的增加了衣物的收纳。
05多功能厅

将次卧设计成多功能厅,把健身房搬回家。平时一家人可以在这里健身运动、休闲读书。一侧还做了吊柜和地柜,增加储物空间。
06厨 房

厨房与客餐厅的风格保持一直,白色的吊柜配暖黄色原木地柜,也是非常经典的风格搭配,简约时尚带着复古。
黑白方格的墙砖,透着文艺范又带着点小清新。