装修设计动线注意这几点,生活幸福感直线飙升!
重庆俏业家装饰
2023-08-28
导语:装修中的动线规划是指在室内空间中合理安排人员活动的路径和流线,以提高居住舒适度和使用便捷性。那如何进行动线规划呢?小编给大家总结了需要注意的几个点,快去自测一下你家动线规划的如何吧!
1、单条动线便捷性
单条动线的受制于户型和家具摆放,例如厨房动线,一般备菜区、烹饪区和传菜区会形成一个三角区域,只有三者间距离恰好时,才能让整个烹饪流程顺畅又省力。

在动线设置上,只要动线是围绕着三角形的三条边,无交叉,那厨房动线就是较为便捷的。

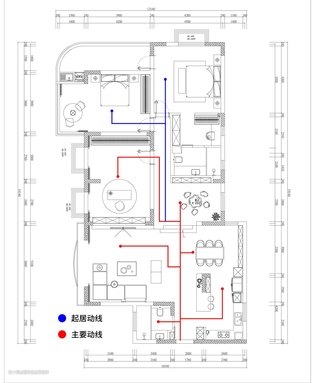
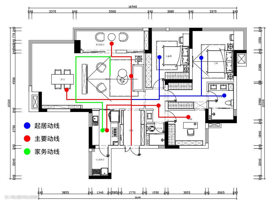
2、主要动线直接、流畅
主要动线指的是从入口到客厅、厨房、卫生间等日常流量大的动线,主要动线尽量避免穿过其他功能区,且动线上减少家具阻碍,避免日常磕碰或是人多时造成拥挤。

3、起居动线与主要动线无交叉
起居动线指的是去往卧室的动线,在设计时注意要与主要动线无交叉。一是主要动线流量大,同时也是日常访客的动线,若有交叉会导致卧室的私密性降低,二是当有人在卧室休息时,容易受到外边人走动的影响,导致休息不佳。

4、整体动线规划保持空间美观性
除了实用性和功能性,也要考虑空间的美观性,保持整体布局的协调和一致性,避免混乱、不协调的空间布局,同时根据居住者的个人需求进行调整。

结语:良好的动线规划可以使空间功能更加高效,减少不必要的交叉和行走,提升室内空间的实用性和美观度。还不清楚如何合理规划动线的宝子们,可以寻求专业设计师的帮助哦,想要了解更多装修知识的可以关注我们。