淮安装修 | 绿地春晓三居室,现代时尚的个性解读
淮安业之峰装饰
2023-11-23
项目 Name / 绿地春晓
面积 Area / 152㎡
户型 Layout / 三室两厅两卫
风格 Style / 现代
设计 Designer / 季晓娟
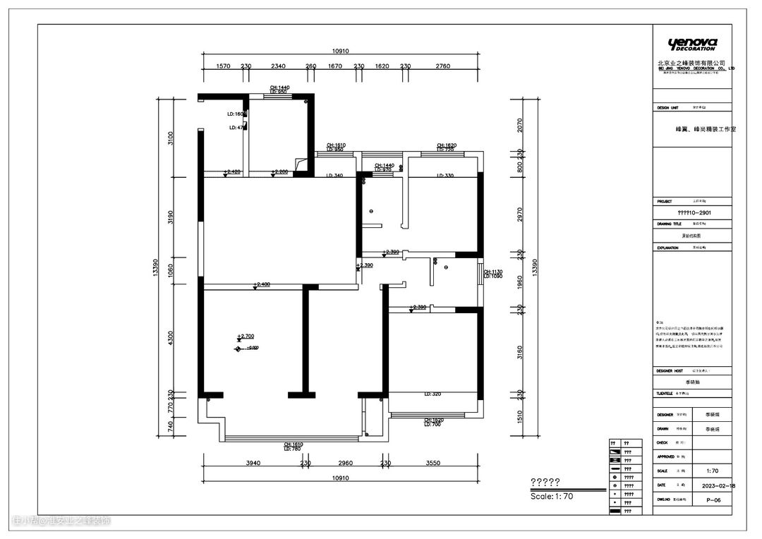
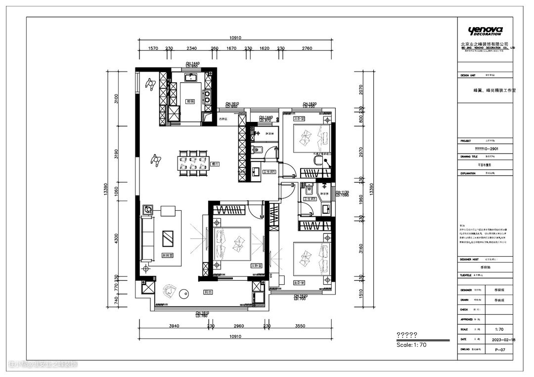
户型设计

▲原始结构图

▲平面布置图
本案整体以现代时尚的风格设计,加之蓝色元素的点缀、串联,突出整体的个性与时尚,同时加入很多细节和心思,平添舒适质感。
客厅

整体采用无主灯的设计,线性灯带由吊顶延伸至沙发背景墙,对称式的硬包处理搭配灰色沙发相得益彰,展现空间中的时尚和宁静。

电视背景做同色处理,同时左右做装饰造型和收纳展示柜,通过切割面的形式呈现不同分区,衬托这个客厅充实且富有生活气息。
餐厅

餐厅布局相对较为独立,餐桌椅居中摆放能保留足够的生活动线通道,而厨房、西餐区以及餐边柜的设置,也营造出舒适的氛围感。
门厅

入户玄关进深较长,因此做了一个超长的定制柜,半开放和半封闭的形式,将生活区和收纳区融为一体,搭配隐藏灯带兼具高颜值和实用性。